Dvosoban stan na prodaju, Nebojšina, 255.000€, 68m²
OBIĐI 3D TURU






































255.000 €
3.750 € / m2
Za ovaj oglas se neko interesovao. Pozovi ranije kako ne bi propustio priliku.
- Stan u zgradi
- Centralno grejanje
- Renovirano
- Prostorije: terasa
- Opremljenost: Prazno - kanalizacija
- Uknjiženo
- Oglas oglašava agencija pod reg. brojem 167
- Kanalizacija
Opis oglasa
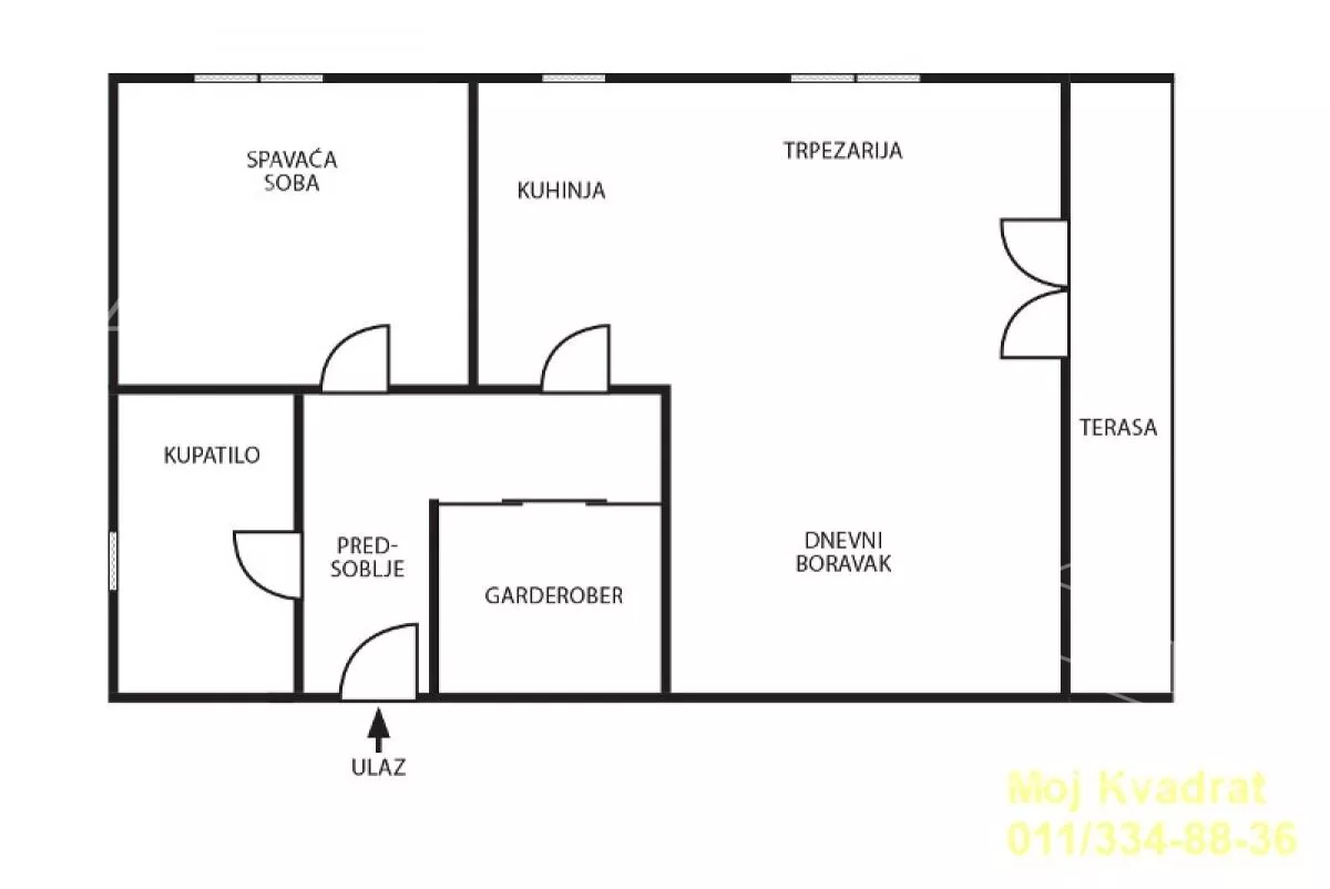
Vračar, Hram Svetog Save - Nebojšina
2.0, 68m2 (terasa 7m2), 4/4, CG sa kalorimetrima
U ponudi za prodaju sređen, dvosoban stan na Vračaru, na četvrtom spratu zgrade bez lifta, koji iznenađuje lakoćom. Nalazi se nadomak Hrama Svetog Save i spaja sve što tražite - otvoren pogled, puno sunca, tišina i skladan raspored. Stan koji se doživi, ne samo vidi!
Sastoji se od prostranog dnevnog boravka sa trpezarijom i kuhinjom (koncept otvorenog prostora), spavaće sobe, kupatila i terase. Takođe, stan poseduje i poseban skriveni ugradni orman.
Prodaje se sa ugradnom kuhinjom i belom tehnikom. Postoji mogućnost dogovora za prodaju sa svim stvarima.
Parking je slobodan i uvek se može naći mesto za automobil.
Uknjižen na 61m2.
Agencijska provizija 2%
Agent: Ivana Zeković 060... (prikaži broj telefona) (licenca br.3830)
*Sačuvaj oglas uz belešku i primaj obaveštenja o njihovom pojeftinjenju ili pojavljivanju sličnih
Prikaz stana na mapi
Parkovi u blizini
- Karađorđev park2 min
- Svetosavski plato6 min
- Park mira Jelena Šantić7 min

Obeležja kulture u blizini
- Spomenik oslobodilaca Beograda 1806. godine1 min
- Spomenik žrtvama bombardovanja Beograda1 min
- Spomenik Internacionalnim brigadama1 min

Škole/Fakulteti/Vrtići u blizini
- Osnovna škola (Privatna osnovna škola Vladislav Petković Dis)6 min
- Srednja škola (Prva škola integrativne medicine Alvita Plus)6 min
- Vrtić (Dečiji vrtić Beli zeka)3 min
- Fakultet (Univerzitet u Beogradu Stomatološki fakultet)5 min

- Bolnica (Klinika za bolesti zuba)3 min
- Klinika (Poliklinika Medikom)4 min
- Teretana (Apurva Body Studio)5 min
- Prodavnica (IDEA)1 min
- Restoran (Restoran Destilerija)1 min
- Kafana (Tatar Bar)4 min
- Taksi stajalište (Taxi stanica)7 min
- Autobuska stanica (Franše d'Eperea)3 min
- Tramvajska stanica (Karađorđev Park)6 min
- Trolejbuska stanica (Katanićeva)12 min
- Banka (Banca Intesa)10 min
- Pošta (Pošta Beograd 120)5 min
Kontakt oglašivača
Za ovaj oglas se neko interesovao. Pozovi ranije kako ne bi propustio priliku.
Krediti OTP banke
Saznaj više
Prikazana rata odnosi se na maksimalni period otplate. Kalkulator je informativnog karaktera.
* Nakon isteka 5 godina, prelazi se na varijabilnu kamatnu stopu





















