Dvosoban stan na prodaju, Sinđelićeva, 234.000€, 58m²
























234.000 €
4.034 € / m2
- Stan u zgradi
- Centralno grejanje
- Prostorije: terasa
- Opremljenost: Prazno - kanalizacija
- Uknjiženo
- Oglas oglašava agencija pod reg. brojem 167
- 1 lift
- Kanalizacija
- Godina izgradnje: 1985.
Opis oglasa
Vračar, Kalenić pijaca - Sinđelićeva
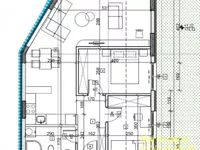
2.0, 58m2 (terasa 10m2), PR/11, CG, lift
U ponudi trostrano orijentisan stan, okrenut ka parku, u zgradi od fasadne cigle. Nalazi se u prizemlju, ali je visina visokog prizemlja. Stan je izvorno dvosoban, ali je adaptibilan u dvoiposoban.
Prostorije: hodnik (iz koga se ulazi u sve prostorije), kupatilo sa prirodnom ventillacijom, spavaća soba, dnevna soba koja ima izlaz na zastakljenu terasu, kuhinja sa trpezarijom.
Delimično je renoviran - zamenjena su ulazna vrata, komarnici su na svim prozorima. U stanu ostaje ugradna kuhinja.
Pogodno za stanovanje i poslovni prostor.
Zgrada je u blizini Kalenić pijace, Bulevar kralja Aleksandra, Vukovog spomenika, fakulteta i svih sadržaja koje centar grada pruža.
Uknjižen bez kvadrature, a mereno ima 58m2.
Agencijska provizija 2%
Agent: Vesna Ćirić 064... (prikaži broj telefona) (licenca br.1777)
*Sačuvaj oglas uz belešku i primaj obaveštenja o njihovom pojeftinjenju ili pojavljivanju sličnih
Prikaz stana na mapi
Parkovi u blizini
- Park Ćirila i Metodija3 min
- Park vojvode Petra Bojovića7 min
- Park Mike Oklopa7 min

Obeležja kulture u blizini
- Spomenik Ćirilu i Metodiju1 min
- Spomenik Vuku Karadžiću2 min
- Spomenik Puškinu2 min

Škole/Fakulteti/Vrtići u blizini
- Osnovna škola (Osnovna škola Ivan Goran Kovačić)4 min
- Srednja škola (Srednja škola Arhimed)2 min
- Vrtić (Dečiji vrtić Montesori zvono)2 min
- Fakultet (Univerzitet u Beogradu Građevinski fakultet)2 min

- Bolnica (Specijalna bolnica za oftalmologiju Miloš Klinika)2 min
- Klinika (Poliklinika Vuk Prima)4 min
- Teretana (Fitness centar Živi zdravo)manje od 1 min
- Prodavnica (IDEA Organic)2 min
- Restoran (Restoran Čuburska kutlača)1 min
- Kafana (Pivnica Oblak u pantalonama)2 min
- Taksi stajalište (Taxi stanica)4 min
- Autobuska stanica (Vukov spomenik)3 min
- Tramvajska stanica (Vukov spomenik)4 min
- Trolejbuska stanica (Podvožnjak)8 min
- Banka (Addiko Bank)manje od 1 min
- Pošta (Pošta Beograd 17)3 min
Kontakt oglašivača
Krediti OTP banke
Saznaj više
Prikazana rata odnosi se na maksimalni period otplate. Kalkulator je informativnog karaktera.
* Nakon isteka 5 godina, prelazi se na varijabilnu kamatnu stopu






















