Dvosoban stan na prodaju, Učiteljsko Naselje, 232.800€, 67m²


232.800 €
3.475 € / m2
- Stan u zgradi
- Podno grejanje
- Novo
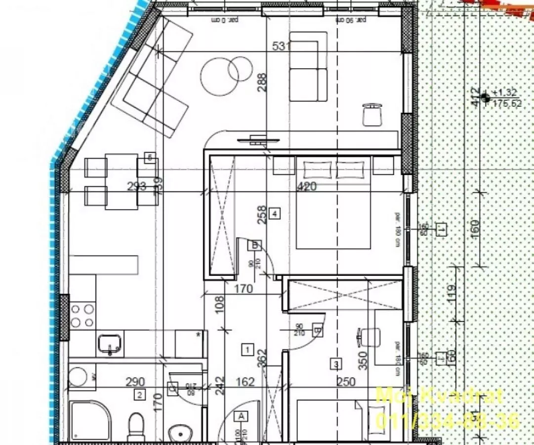
- Prostorije: terasa
- Opremljenost: Prazno - interfon, kanalizacija
- Oglas oglašava agencija pod reg. brojem 167
- 1 garažno mesto
- 1 lift
- Kanalizacija
- Godina izgradnje: 2026.
- 1 telefonska linija
Opis oglasa
Zvezdara - Učiteljsko naselje
2.0, 67m2 (terasa 5m2), PR/5, EG - podno grejanje, lift, telefon, interfon, garaža
Izdvajamo iz ponude stanove različitih struktura jednoiposoban, dvosoban i dvoiposoban na različitim etažama u modernoj novogradnji na jednoj od najtraženijih lokacija u Beogradu, u Učiteljskom naselju.
Zgrada se nalazi u mirnom delu, u blizini pijace, doma zdravlja, šoping centra i svih sadržaja neophodnih za udoban gradski život.
Prilikom gradnje primenjuju se najviši standardi, uz korišćenje vrhunskih materijala koji garantuju dugovečnost i maksimalnu udobnost stanovanja. U ponudi su vrhunska keramika, šestokomorna stolarija, moderan lift, kao i visok kvalitet završne obrade i prijatan izgled ulaza i zajedničkih prostorija.
Svi stanovi imaju ugrađeno etažno podno grejanje, što obezbeđuje niske mesečne troškove i veću energetsku efikasnost. Predstavljaju idealan spoj funkcionalnosti i luksuza, bilo da tražite porodični dom ili sigurnu investiciju za izdavanje.
Cene stanova iskazane su sa uračunatim PDV-om.
Postoji mogućnost kupovine parking mesta u garaži (sistem klackalice) po ceni od 23.000 € + PDV.
Rok završetka decembar 2026. godine.
Građevinska dozvola.
Agencijska provizija 2%.
*Sačuvaj oglas uz belešku i primaj obaveštenja o njihovom pojeftinjenju ili pojavljivanju sličnih
Prikaz stana na mapi
Parkovi u blizini
- Park Šumice22 min
- Park Slavujev potok23 min
- Park Urbani džep24 min

Obeležja kulture u blizini
- Osnovna škola Kralj Petar II Karađorđević7 min
- Vozarev krst8 min
- Pašina česma8 min

Škole/Fakulteti/Vrtići u blizini
- Osnovna škola (Osnovna škola Ćirilo i Metodije)4 min
- Srednja škola (Građevinska tehnička škola Branko Žeželj)6 min
- Vrtić (Dečiji vrtić Žubor)6 min
- Fakultet (Visoka građevinsko-geodetska škola Beograd)8 min

- Bolnica (MedicOne - specijalna bolnica za plastičnu, estetsku i rekonstruktivnu hirurgiju)5 min
- Klinika (Poliklinika Panacea)6 min
- Teretana (Body building i fitness klub Ahilej)6 min
- Prodavnica (Šumadija Market)1 min
- Restoran (Restoran Đerdan)6 min
- Kafana (Kafana Tri krune)11 min
- Taksi stajalište (Taxi stanica)11 min
- Autobuska stanica (Budvanska)7 min
- Tramvajska stanica (Mite Ružića)8 min
- Trolejbuska stanica (Marčanska)2 min
- Banka (OTP banka)10 min
- Pošta (Pošta Beograd 21)5 min
Kontakt oglašivača
Krediti OTP banke
Saznaj više
Prikazana rata odnosi se na maksimalni period otplate. Kalkulator je informativnog karaktera.
* Nakon isteka 5 godina, prelazi se na varijabilnu kamatnu stopu






















