Petosoban stan na prodaju, Voždovačka crkva, 390.000€, 207m²




























390.000 €
1.884 € / m2
- Etažno grejanje
- Uobičajeno stanje
- Prostorije: kupatilo, terasa
- Opremljenost: Prazno - interfon
- Uknjiženo
- Oglas oglašava agencija pod reg. brojem 1418
- 1 garažno mesto
- Zgrada poseduje: tavan
- 1 telefonska linija
Opis oglasa
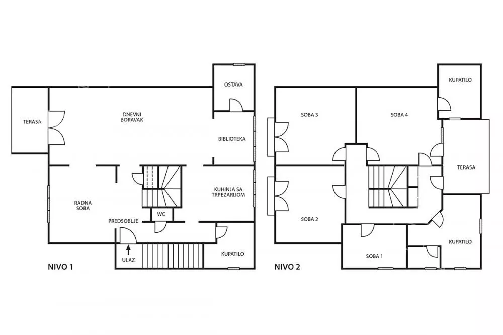
Na prodaju odličan stan u kući na atraktivnoj lokaciji na Voždovac, u neposrednoj blizini crkve.
Stan se nalazi na prvom spratu i prostire se na dva nivoa, sa funkcionalnim i veoma dobro organizovanim rasporedom. Sastoji se od prostrane i svetle dnevne sobe sa kaminom, četiri komforne spavaće sobe, tri kupatila, kao i dve terase koje dodatno doprinose kvalitetu boravka.
Stan je dvostrano orijentisan, što obezbeđuje obilje prirodne svetlosti tokom celog dana. Enterijer odiše toplinom i prijatnom atmosferom, uz detalje poput kamina koji daju poseban šarm prostoru.
Dodatne pogodnosti uključuju garažu, deo dvorišta na korišćenje, kao i zaseban ulaz koji pruža potpunu privatnost i osećaj kuće.
Nekretnina je uknjižena i predstavlja odličan izbor kako za porodično stanovanje, tako i kao investicija.
Agencijska provizija 2%
*Sačuvaj oglas uz belešku i primaj obaveštenja o njihovom pojeftinjenju ili pojavljivanju sličnih
Prikaz stana na mapi
Parkovi u blizini
- Bajronov park5 min
- Park Jove Ilića10 min
- Banjička šuma18 min

Obeležja kulture u blizini
- Osnovna škola Kralj Petar II Karađorđević7 min
- Spomenik Franše Depereu7 min
- Spomenik Internacionalnim brigadama7 min

Škole/Fakulteti/Vrtići u blizini
- Osnovna škola (Osnovna škola Veselin Masleša)8 min
- Srednja škola (Geološka i hidrometeorološka škola Milutin Milanković)8 min
- Vrtić (Dečiji vrtić Dolina čuda)3 min
- Fakultet (Fakultet za projektni i inovacioni menadžment)9 min

- Bolnica (Bel Medic Opšta bolnica)4 min
- Klinika (Poliklinika Voždmedik)13 min
- Teretana (Triangle Gym)3 min
- Prodavnica (Maxi Supermarket)2 min
- Restoran (Restoran Kuhinja)4 min
- Kafana (Robin Hood Pub)9 min
- Taksi stajalište (Taxi stanica)12 min
- Autobuska stanica (Atletska Dvorana)4 min
- Tramvajska stanica (Vitanovačka)2 min
- Trolejbuska stanica (Vojnomedicinska akademija)21 min
- Banka (Banca Intesa)6 min
- Pošta (Pošta Beograd 9)2 min
Kontakt oglašivača
Krediti OTP banke
Saznaj više
Prikazana rata odnosi se na maksimalni period otplate. Kalkulator je informativnog karaktera.
* Nakon isteka 5 godina, prelazi se na varijabilnu kamatnu stopu






















