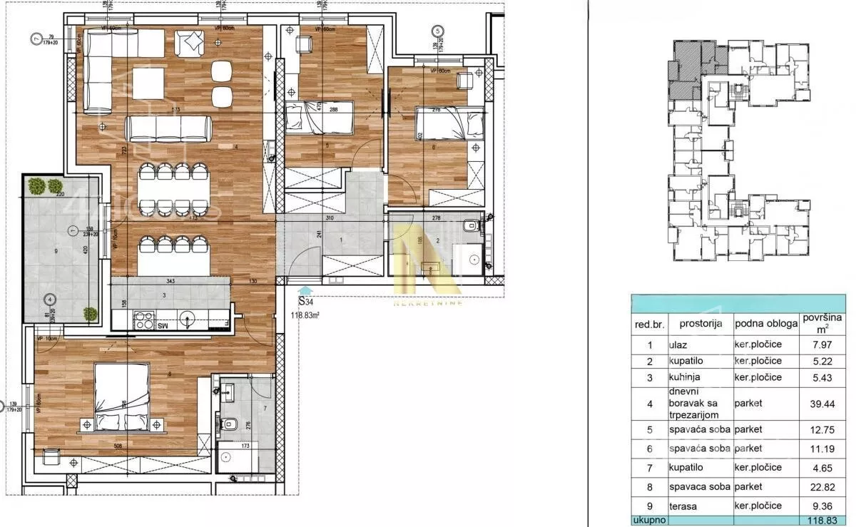
Četvorosoban stan na prodaju, Sajmište, 383.700€, 119m²








383.700 €
3.224 € / m2
- Stan u zgradi
- Centralno grejanje
- U izgradnji
- Prostorije: terasa
- Opremljenost: Prazno - internet, interfon
- Oglas oglašava agencija pod reg. brojem 1405
- 1 lift
- Zgrada poseduje: video nadzor
- Kablovska
- 1 telefonska linija
Opis oglasa
Predstavljamo vam premijum projekat koja se nalazi na atraktivnoj gradskoj lokaciji, u blizini Bulevara Evrope i Futoške ulice, sa mnoštvom sadržaja za ugodan porodični život. U neposrednoj blizini se nalaze osnovna škola, vrtić, odlični supermarketi, dečije igraonice, zelene površine. Sve to je na samo par autobuskih stanica udaljeno od strogog centra grada.
Poseban sadržaj koji se nudi u objektu je recepcija sa stalno zaposlenim licem koje će voditi računa o pristupu zgradi, prijemu pošiljki i dostavama. Visina plafona u visokom parteru i tipskim etažama je 2.70m, dok IV sprat (penthouse galerija) ima visinu od 3m. U svakoj stambenoj jedinici je obezbeđeno podno grejanje, italijanska ili španska keramika prve klase i višeslojni parket. U objektu nije predviđena izgradnja poslovnog i komercijalnog sadržaja, što stanarima garantuje mir i visoku upotrebnu vrednost. Mogućnost opremanja stana.
Mogućnost kupovine garažnog parking mesta uz stan.
Za kupce prve nekretnine moguć povrat PDV-a.
Rok završetka maj 2026. godina.
Za sve dodatne informacije i zakazivanje razgledanja nekretnine obratiti se na broj telefona
066... (prikaži broj telefona)
Katarina Birinji, broj licence 4091, Novi Sad, Bulevar Evrope 44, N-NEKRETNINE, upisan u registar posrednika 1405.
*Sačuvaj oglas uz belešku i primaj obaveštenja o njihovom pojeftinjenju ili pojavljivanju sličnih
Prikaz stana na mapi
Parkovi u blizini
- Železnički park21 min
- Futoški park24 min
- Park Bistrica27 min

Obeležja kulture u blizini
- Jodna Banja11 min
- Spomen ploča Albertu Ajnštajnu i Milevi Marić14 min
- Dvorac Eđšeg15 min

Škole/Fakulteti/Vrtići u blizini
- Osnovna škola (Osnovna škola Petefi Šandor)10 min
- Srednja škola (Škola za dizajn Bogdan Šuput)7 min
- Vrtić (Dečiji vrtić Speak Up)5 min
- Fakultet (Univerzitet u Novom Sadu Medicinski fakultet)9 min

- Bolnica (NS specijalna bolnica za hemodijalizu)4 min
- Klinika (Poliklinika Galetić)7 min
- Teretana (Teretana Classic Gym)10 min
- Prodavnica (Market Crvena jabuka)7 min
- Restoran (Restoran Dva Štapića)5 min
- Kafana (Pab Stribor beer & more)5 min
- Taksi stajalište (Red Taxi)16 min
- Autobuska stanica (Hadži Ruvimova - Ilije Birčanina)9 min
- Banka (OTP banka)4 min
- Pošta (Pošta Novi Sad 21140)6 min
Kontakt oglašivača
Krediti OTP banke
Saznaj više
Prikazana rata odnosi se na maksimalni period otplate. Kalkulator je informativnog karaktera.
* Nakon isteka 5 godina, prelazi se na varijabilnu kamatnu stopu






















