Četvorosoban stan na prodaju, Telep, 353.990€, 115m²




353.990 €
3.078 € / m2
- Stan u zgradi
- Podno grejanje
- U izgradnji
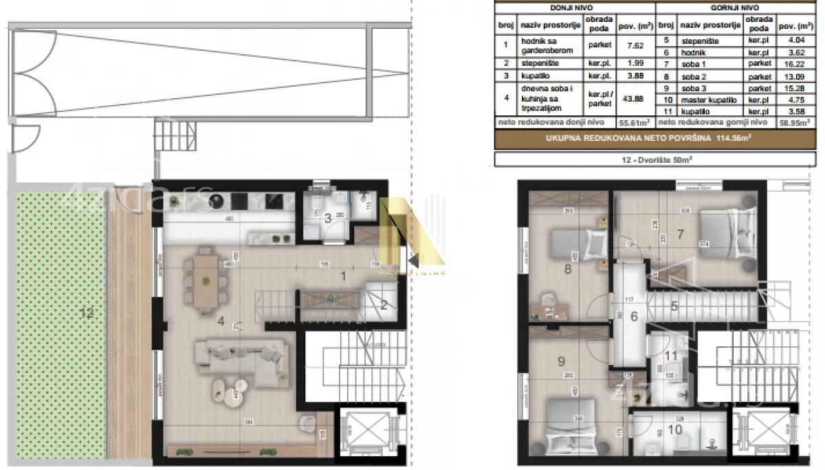
- Prostorije: ostava, terasa
- Opremljenost: Prazno - internet, interfon
- Oglas oglašava agencija pod reg. brojem 1405
- 1 garažno mesto
- 1 lift
- Zgrada poseduje: video nadzor
- Kablovska
- 1 telefonska linija
Opis oglasa
Oglašavamo prodaju komfornog četvorosobnog stana na mirnoj lokaciji, idealnoj za porodično stanovanje.
Ovaj investitor gradi za vas objekte koji se razlikuju od svega što se trenutno nudi na tržištu nekretnina u Novom Sadu i ispunjava sva vaša očekivanja.
KOMFOR i osećaj privatnosti dok uživate u sopstvenom dvorištu od 50m2 i istovremeno bezbednosti( video nadzor čitavog objekta) dok iz garažnog prostora direktno liftom idete do vašeg apartmana naravno utiče na kvalitet življenja.
Podrazumeva se visok nivo gradnje sa pažljivo biranim materijalima u svakom segmentu( sve ugovorom definisano). Alu-stakleni sa podiznokliznim portalima, zidovi u kombinaciji sa prirodnim kamenom, naglašavaju eleganciju 3m visokog životnog prostora i ispunjavaju ga svetlošću.
GREJANJE podno, za svaki apartman posebna kotlarnica i gasni kotao ( objekat po projektu "B" razred energ.efikasnosti).
Postoji mogućnost kupovine ostave i garažnog mesta u suterenu zgrade.
Stan može potpuno biti prilagođen potrebama budućeg vlasnika (do odredjene faze gradnje postoji mogućnost menjanja rasporeda prostorija, izbora podnih i zidnih obloga, unutrašnje stolarije, sistema grejanja i hladjenja, Smart House sistema). U suterenskoj etaži je smešteno 9 garažnih mesta i 4 pripadajuće ostave, odakle liftom stižete direktno do Vašeg stana.
Podno grejanje na gas( odvojeno za svaki stan poseban kotao u pripadajucujoj ostavi gde je i bojler za sanitarnu vodui)
Postoji mogućnos kupovine stana i na stambeni kredit.
Ako tražite stambeni prostor 2min hoda do škole, vrtića, fitnes centra uz istovremeno tišinu i komfor koji pruža kuća, onda je ovo pravi izbor za vas.
U cenu nije uračunat PDV
Mogućnost odbitka PDV-a
Za sve dodatne informacije i zakazivanje razgledanja nekretnine obratiti se na broj telefona
066... (prikaži broj telefona)
, Novi Sad, Bulevar Evrope 44, N-NEKRETNINE, upisan u registar posrednika 1405.
*Sačuvaj oglas uz belešku i primaj obaveštenja o njihovom pojeftinjenju ili pojavljivanju sličnih
Prikaz stana na mapi
Parkovi u blizini
- Park Bistrica28 min
- Futoški park33 min
- Limanski park36 min

Obeležja kulture u blizini
- Jodna Banja12 min
- Dvorac Eđšeg13 min
- Kuća iz 1797. godine18 min

Škole/Fakulteti/Vrtići u blizini
- Osnovna škola (Osnovna škola Jožef Atila)11 min
- Srednja škola (Gimnazija Laza Kostić)5 min
- Vrtić (Dečiji vrtić Zemlja čuda)6 min
- Fakultet (Protestantski teološki fakultet)7 min

- Bolnica (Ginekološka bolnica Ferona)2 min
- Klinika (Poliklinika Consilium)12 min
- Teretana (EMS Studio Maxifit)5 min
- Prodavnica (Supermarket Univerexport)6 min
- Restoran (Caffe restoran Rosetto)7 min
- Kafana (Atos pub)5 min
- Taksi stajalište (Taxi prevoz Novi Sad)20 min
- Autobuska stanica (Feješ Klare - Pravoslavna crkva)3 min
- Banka (Erste Bank Ekspres ekspozitura)6 min
- Pošta (Pošta Novi Sad 21124)7 min
Kontakt oglašivača
Krediti OTP banke
Saznaj više
Prikazana rata odnosi se na maksimalni period otplate. Kalkulator je informativnog karaktera.
* Nakon isteka 5 godina, prelazi se na varijabilnu kamatnu stopu






















