Dvosoban stan na prodaju, Predraga Vasića, 133.000€, 50m²

























133.000 €
2.660 € / m2
Za ovaj oglas se neko interesovao. Pozovi ranije kako ne bi propustio priliku.
- Etažno grejanje
- Uobičajeno stanje
- Prostorije: kupatilo
- Opremljenost: Polunamešteno - interfon
- Uknjiženo
- Oglas oglašava agencija pod reg. brojem 339
- Godina izgradnje: 2009.
- 1 telefonska linija
Opis oglasa
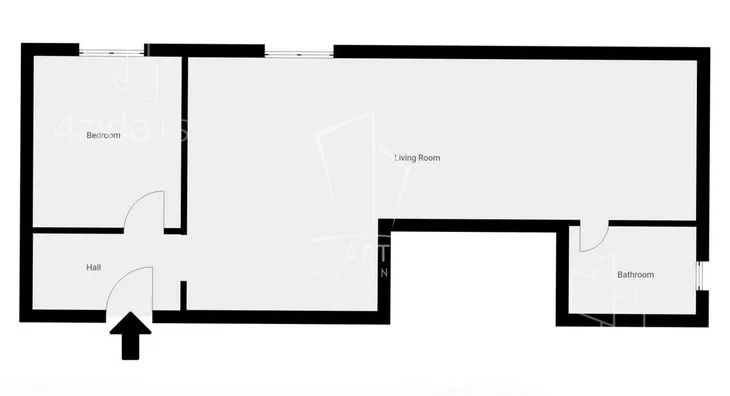
Uknjižen na 50m2, mereno 55m2, 2.0, eg, polunamešten, 3/3 sprat, nema lift.
Grejanje - električni kotao (radijatori).
Stan je u dobrom stanju, izuzetno svetao.
Zgrada iz 2009. god.
U zgradi nema puno stanova.
Prostorije: predsoblje, spavaća soba, dnevna soba sa trpezarijom i kuhinjom, kupatilo.
Prodaje se polunamešten.
Agencijska provizija 2%.
Agent: Vladimir Jovanović br. licence 1773
"Art nekretnine" d.o.o. Beograd.
Reg. br. 339
011... (prikaži broj telefona)
.
*Sačuvaj oglas uz belešku i primaj obaveštenja o njihovom pojeftinjenju ili pojavljivanju sličnih
Prikaz stana na mapi
Parkovi u blizini
- Zvezdarska šuma23 min
- Park Slavujev potok25 min
- Park Urbani džep37 min

Obeležja kulture u blizini
- Pašina česma6 min
- Trećepozivačka česma8 min
- Tripod12 min

Škole/Fakulteti/Vrtići u blizini
- Osnovna škola (Osnovna škola Despot Stefan Lazarević)6 min
- Srednja škola (Sedma beogradska gimnazija)7 min
- Vrtić (Predškolska ustanova Koloseum)5 min
- Fakultet (Visoka građevinsko-geodetska škola Beograd)6 min

- Bolnica (Kovid trijažni centar - Gradski zavod za plućne bolesti i tuberkulozu)9 min
- Klinika (Poliklinika i laboratorija LaboMedica)10 min
- Teretana (Fitness studio Lola)4 min
- Prodavnica (Soulfood market)1 min
- Restoran (Restoran Food & coffee)4 min
- Kafana (Pivnica Krigla)8 min
- Taksi stajalište (Taxi stanica)14 min
- Autobuska stanica (Dušana Radovića)3 min
- Tramvajska stanica (Mite Ružića)11 min
- Trolejbuska stanica (Marčanska)18 min
- Banka (Eurobank Direktna)5 min
- Pošta (Pošta Beograd 74)6 min
Kontakt oglašivača
Za ovaj oglas se neko interesovao. Pozovi ranije kako ne bi propustio priliku.
Krediti OTP banke
Saznaj više
Prikazana rata odnosi se na maksimalni period otplate. Kalkulator je informativnog karaktera.
* Nakon isteka 5 godina, prelazi se na varijabilnu kamatnu stopu





















