Jednosoban stan na prodaju, Bulevar Kralja Aleksandra, 141.000€, 32m²
OBIĐI 3D TURU

















141.000 €
4.406 € / m2
- Etažno grejanje
- Novo
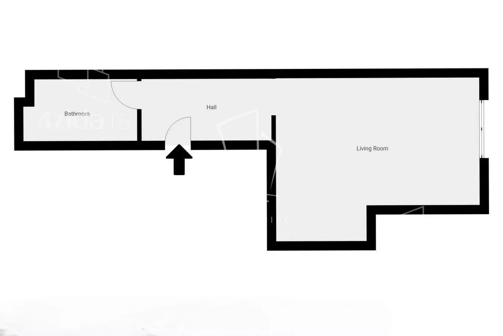
- Prostorije: kupatilo
- Oglas oglašava agencija pod reg. brojem 339
- 1 telefonska linija
Opis oglasa
Stan u novoj zgradi (2023.), renomiranog investitora, na dobroj poziciji blizu okretnice tramvaja na Bulevaru Kralja Aleksandra.
Jednosoban po strukturi, opremljen, svetao i južno orijentisan, sa odličnim pogledom.
Odlična povezanost sa svim delovima grada.
Zgrada je u procesu dobijanja upotrebne dozvole.
Agencijska provizija 2%
Agent: Sandra Brčin, br. licence:5376
Art nekretnine d.o.o. Beograd
Reg. br.339
011... (prikaži broj telefona)
SB08
.
*Sačuvaj oglas uz belešku i primaj obaveštenja o njihovom pojeftinjenju ili pojavljivanju sličnih
Prikaz stana na mapi
Parkovi u blizini
- Park Urbani džep8 min
- Park Slavujev potok10 min
- Park Ćirila i Metodija13 min

Obeležja kulture u blizini
- Spomenik Ćirilu i Metodiju4 min
- Spomenik Puškinu5 min
- Spomenik Vuku Karadžiću5 min

Škole/Fakulteti/Vrtići u blizini
- Osnovna škola (Osnovna škola Ivan Goran Kovačić)6 min
- Srednja škola (Srednja škola Arhimed)6 min
- Vrtić (Dečiji vrtić Plavo mače)8 min
- Fakultet (MiT Akademija za marketing i informatiku)4 min

- Bolnica (Klinika Dr Slobodan Švrakić / Gary Surak MD NaltrexZone)5 min
- Klinika (Poliklinika Panacea)6 min
- Teretana (EMS Studio Maxifit)6 min
- Prodavnica (Trgovinska radnja Stella)2 min
- Restoran (Restoran Wu Ming)2 min
- Kafana (Pab Klopa i pivo)2 min
- Taksi stajalište (Taxi stanica)6 min
- Autobuska stanica (Crveni Krst)6 min
- Tramvajska stanica (Vukov spomenik)15 min
- Trolejbuska stanica (Crveni Krst)5 min
- Banka (UniCredit Bank)4 min
- Pošta (Pošta Beograd 14)4 min
Kontakt oglašivača
Krediti OTP banke
Saznaj više
Prikazana rata odnosi se na maksimalni period otplate. Kalkulator je informativnog karaktera.
* Nakon isteka 5 godina, prelazi se na varijabilnu kamatnu stopu





















