Četvoroiposoban stan na prodaju, Loznička, 650.000€, 130m²




650.000 €
5.000 € / m2
- Novo
- Prostorije: kupatilo, terasa
- Opremljenost: Prazno - internet, interfon, klima
- Oglas oglašava agencija pod reg. brojem 1418
- 1 garažno mesto
- 1 parking mesto
- 1 lift
- Kablovska
- 1 telefonska linija
Opis oglasa
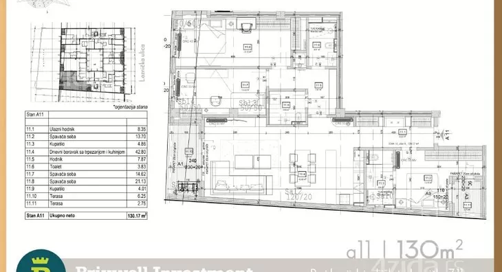
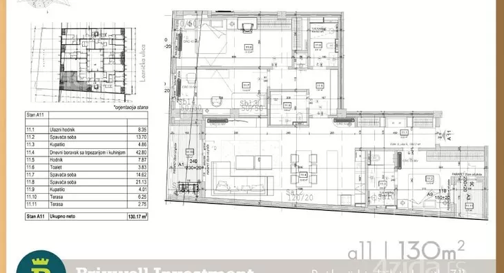
Na prodaju – luksuzan četvorosoban stan u srcu Vračara Bez agencijske provizije za kupca Na prodaju prostran i luksuzan stan površine 131 m², koji se nalazi na 2. spratu novogradnje u okviru ekskluzivnog stambenog kompleksa Loznička 7-9-11, u mirnoj ulici nadomak ulice Mileševske. Stan je orijentisan ka Lozničkoj ulici. Struktura stana: - Prostran dnevni boravak - Tri spavaće sobe - Dva kupatila - Kuhinja - Terasa Cena ne uključuje PDV. Predviđeni rok useljenja: avgust 2025. godine. U izgradnji su korišćeni najkvalitetniji materijali i oprema renomiranih proizvođača: Spoljna stolarija: aluminijum-drvo Unutrašnja stolarija: Bosal Hrastov parket najviše klase Keramika stranog proizvođača (I klasa) Fasada kombinovana sa Fundermaksom, kamenom i staklom Video-nadzor u svakom stanu, kao i na nivou celog objekta Objekat je inspirisan prepoznatljivom savremenom arhitekturom sa fasadom od kvalitetne cigle, prirodnog kamena i stakla, oplemenjen zelenilom. Zgradu karakteriše luksuzan foaje koji deli objekat na dve lamele, dok se u sredini nalazi zatvoreni atrijum vrt površine preko 130 m². Mogućnost kupovine garaže - cena: 40.000 EUR Lokacija: Jedna od najlepših i najtraženijih lokacija na Vračaru – tiha ulica, a u neposrednoj blizini svih važnih sadržaja. Stan koji vredi videti. Za svaku preporuku. Za dodatne informacije i zakazivanje obilaska, kontaktirajte nas. Kontakt: 062... (prikaži broj telefona) mail: [email protected]
*Sačuvaj oglas uz belešku i primaj obaveštenja o njihovom pojeftinjenju ili pojavljivanju sličnih
Prikaz stana na mapi
Parkovi u blizini
- Park Ćirila i Metodija9 min
- Park vojvode Petra Bojovića9 min
- Čuburski park11 min

Obeležja kulture u blizini
- Spomenik Ćirilu i Metodiju8 min
- Spomenik Puškinu9 min
- Spomenik Vuku Karadžiću10 min

Škole/Fakulteti/Vrtići u blizini
- Osnovna škola (Osnovna škola Jovan Miodragović)5 min
- Srednja škola (Srednja škola Arhimed)4 min
- Vrtić (Dečiji vrtić Diznilend)2 min
- Fakultet (Univerzitet u Beogradu Geografski fakultet)4 min

- Bolnica (Specijalna bolnica za oftalmologiju Miloš Klinika)3 min
- Klinika (Poliklinika Panacea)4 min
- Teretana (Fitness studio Be fit)2 min
- Prodavnica (IDEA)2 min
- Restoran (Bar Loznička 11)manje od 1 min
- Kafana (Pab Pivodrom)3 min
- Taksi stajalište (Taxi stanica)5 min
- Autobuska stanica (Pijaca „Kalenić“)7 min
- Tramvajska stanica (Vukov spomenik)10 min
- Trolejbuska stanica (Vojvode Dragomira)7 min
- Banka (Addiko Bank)6 min
- Pošta (Pošta Beograd 34)4 min
Kontakt oglašivača
Stambeni krediti

- Period otplate od
96 -360 meseca
- NKS 4.75%
EKS 5.74%
Fiksna kamatna stopa
- Bez troškova obrade kredita
Za iznos kredita preko 300000 € poseti sajt banke.
Saznaj višestranici kreditnih kalkulatora
Keš krediti
Period otplate
13 meseci