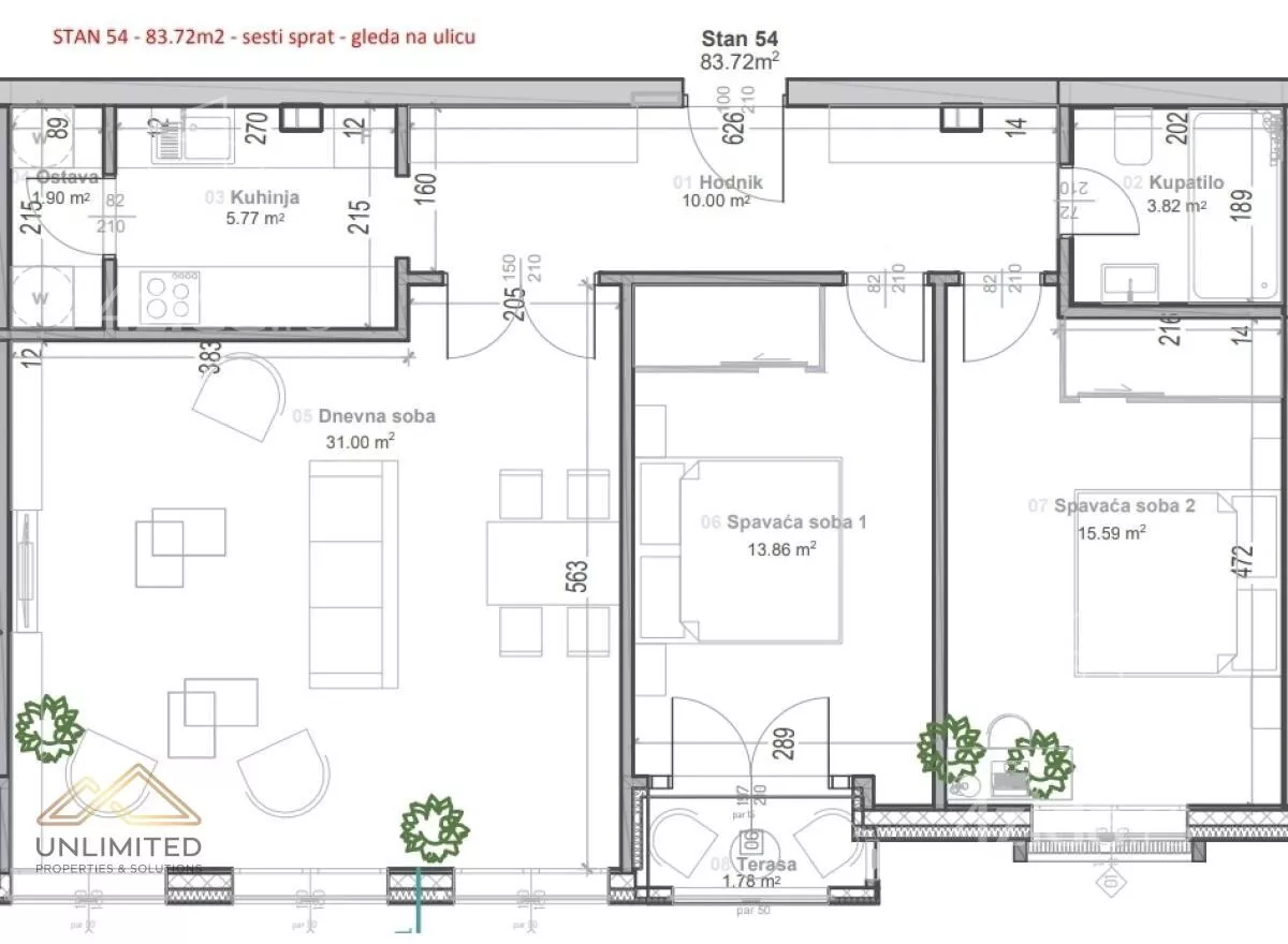
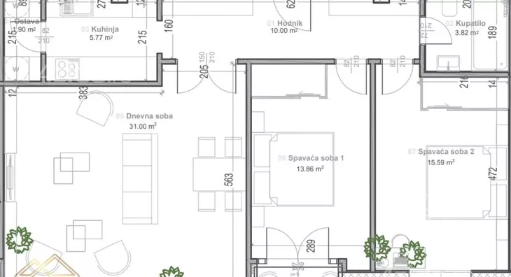
Dvoiposoban stan na prodaju, Vukov Spomenik, 319.000€, 83m²












319.000 €
3.843 € / m2
- Stan u zgradi
- Novo
- Opremljenost: Prazno - klima
- Oglas oglašava agencija pod reg. brojem 1932
- Godina izgradnje: 2025.
Opis oglasa
Otkrijte novu dimenziju stanovanja u objektu koji pomera granice arhitekture i dizajna.
Nakon niza impresivnih objekata koji su postali sinonim za kvalitet i vizuelni identitet, renomirani investitor nastavlja svoj prepoznatljiv manir gradnje. Central Palace nije samo zgrada – to je pečat modernog načina života, projektovan da ostavi snažan utisak već na prvom koraku.
LOKACIJA KOJA PRATI VAŠ RITAM
Smešten nadomak samog centra grada, Central Palace vam nudi savršen balans:
- Blizina zabavnih i rekreativnih sadržaja za ispunjen društveni život.
- Neposredna blizina buduće metro stanice, što garantuje vrhunsku povezanost i siguran rast vrednosti vaše nekretnine.
KVALITET KOJI SE OSETI
Zgrada je u završnoj fazi izgradnje, projektovana sa fokusom na dugovečnost
- Energetska efikasnost: Pametna rešenja koja štede energiju.
- Vrhunska zvučna izolacija: Vaš mir unutar gradske vreve.
Rok izgradnje: Avgust tekuće godine.
ENTERIJER I OPREMLJENOST (Premium nivo)
U završnoj obradi koriste se isključivo materijali vrhunskog kvaliteta:
- Prirodni materijali: Prvoklasni hrastov parket i ekološke boje koje čuvaju vaše zdravlje.
- Bezbednost: Blindirana vrata, video interfon i integrisan alarmni sistem.
- Komfor: Split sistem klima uređaji u svakoj jedinici.
USLOVI PRODAJE
- Cena: Iskazana je bez PDV-a (mogućnost povrata PDV-a za kupce prvog stana).
*Dostupni stanovi veće strukture. - BEZ AGENCIJSKE PROVIZIJE: Kao naši klijenti, dobijate kompletnu uslugu potpuno besplatno:
- Organizacija obilaska lokacije i stanova.
- Profesionalno vođenje pregovora.
- Kompletna pravna pomoć i organizacija solemnizacije predugovora i ugovora kod javnog beležnika.
Ne propustite priliku da postanete vlasnik stana u objektu o kojem će se pričati.
Pozovite nas za više informacija i zakažite svoj termin za obilazak
*Sačuvaj oglas uz belešku i primaj obaveštenja o njihovom pojeftinjenju ili pojavljivanju sličnih
Prikaz stana na mapi
Parkovi u blizini
- Park Starine Novaka6 min
- Park Hadžipopovac6 min
- Spomen park oslobodiocima Beograda7 min

Obeležja kulture u blizini
- Kuća Nevene Zaborski5 min
- Spomenik Puškinu7 min
- Spomenik Oslobodiocima Beograda6 min

Škole/Fakulteti/Vrtići u blizini
- Osnovna škola (Osnovna škola Ivan Goran Kovačić)5 min
- Srednja škola (Elektrotehnička škola Rade Končar)13 min
- Vrtić (Dečiji vrtić Trešnjober)5 min
- Fakultet (Akademija poslovnih strukovnih studija Beograd)8 min

- Bolnica (Oftalmološka bolnica Revida)7 min
- Klinika (Poliklinika Argirović)8 min
- Teretana (Non Stop Fitness)7 min
- Prodavnica (Shop&Go)3 min
- Restoran (Restoran Cvijić)1 min
- Kafana (Kafana Hodač)2 min
- Taksi stajalište (Taxi stanica)6 min
- Autobuska stanica (Braće Ribnikar)4 min
- Tramvajska stanica (Dalmatinska)3 min
- Trolejbuska stanica (Podvožnjak)4 min
- Banka (Raiffeisen Bank)3 min
- Pošta (Pošta Beograd 28)1 min
Kontakt oglašivača
Krediti OTP banke
Saznaj više
Prikazana rata odnosi se na maksimalni period otplate. Kalkulator je informativnog karaktera.
* Nakon isteka 5 godina, prelazi se na varijabilnu kamatnu stopu


