Četvorosoban stan na prodaju, Telep, 262.700€, 101m²










































262.700 €
2.601 € / m2
- Stan u zgradi
- Grejanje na gas
- Luksuzno
- Prostorije: ostava, terasa
- Opremljenost: Prazno - internet, interfon, klima
- U procesu uknjižavanja
- Oglas oglašava agencija pod reg. brojem 1808
- 1 parking mesto
- Zgrada poseduje: video nadzor
- Kablovska
- 1 telefonska linija
Opis oglasa
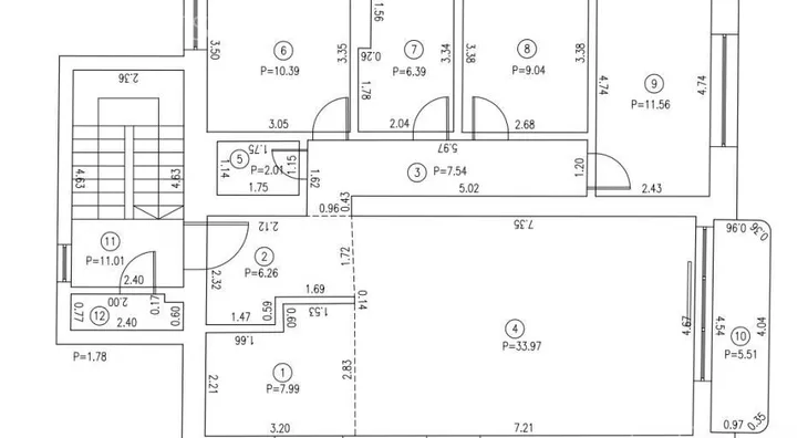
Predstavljamo Vam komforan i moderan četvorosoban stan koji se odlikuje izuzetnim rasporedom i kvalitetnom izradom. Iz ulaznog hodnika, u kome je predviđen prostor za plakar, ulazi se pravo u prostrani dnevni boravak sa kuhinjom, trpezarijom i izlazom na terasu. Terasa je povezana sa dnevnim delom preko velikog staklenog portala, a cela dnevna zona zauzima više od 50 m², što prostoru daje osećaj svetlosti i otvorenosti.
Spavaća zona je odvojena i sastoji se od hodnika koji vodi ka tri spavaće sobe, toaletu i velikom kupatilu. Kupatilo ima prirodnu ventilaciju, luksuznu špansku keramiku, potpuno nove sanitarije i moderan walk-in tuš.
Stan ima grejanje na gas, PVC stolariju sa troslojnim staklom punjenim argonom, kao i termoizolaciju od 10 cm stiropora. Podovi su prekriveni hrastovim parketom velikih dimenzija, a ulazna vrata su sigurnosna i visokog kvaliteta. U cenu stana uključena su dva parking mesta i ostava koja se nalazi odmah pored stana, u hodniku.
Zgrada poseduje video-nadzor, video-interfone i kapiju za parking koja se otvara na daljinsko upravljanje. Ceo objekat je osvetljen dekorativnim noćnim osvetljenjem sa svih strana, što doprinosi sigurnosti i estetici prostora.
Za više informacija kao i za razgledanje stana slobodno nas kontaktirajte.
Za više informacija kao i za razgledanje stana slobodno nas kontaktirajte.
BAK Nekretnine
Kontakt telefon:
065... (prikaži broj telefona)
,
060... (prikaži broj telefona)
,
065... (prikaži broj telefona)
,
065... (prikaži broj telefona)
*Sačuvaj oglas uz belešku i primaj obaveštenja o njihovom pojeftinjenju ili pojavljivanju sličnih
Prikaz stana na mapi
Parkovi u blizini
- Park Bistrica28 min
- Futoški park33 min
- Limanski park36 min

Obeležja kulture u blizini
- Jodna Banja12 min
- Dvorac Eđšeg13 min
- Kuća iz 1797. godine18 min

Škole/Fakulteti/Vrtići u blizini
- Osnovna škola (Osnovna škola Jožef Atila)11 min
- Srednja škola (Gimnazija Laza Kostić)5 min
- Vrtić (Dečiji vrtić Zemlja čuda)6 min
- Fakultet (Protestantski teološki fakultet)7 min

- Bolnica (Ginekološka bolnica Ferona)2 min
- Klinika (Poliklinika Consilium)12 min
- Teretana (EMS Studio Maxifit)5 min
- Prodavnica (Supermarket Univerexport)6 min
- Restoran (Caffe restoran Rosetto)7 min
- Kafana (Atos pub)5 min
- Taksi stajalište (Taxi prevoz Novi Sad)20 min
- Autobuska stanica (Feješ Klare - Pravoslavna crkva)3 min
- Banka (Erste Bank Ekspres ekspozitura)6 min
- Pošta (Pošta Novi Sad 21124)7 min
Kontakt oglašivača
Krediti OTP banke
Saznaj više
Prikazana rata odnosi se na maksimalni period otplate. Kalkulator je informativnog karaktera.
* Nakon isteka 5 godina, prelazi se na varijabilnu kamatnu stopu






















