Četvorosoban stan na prodaju, Bulevar Evrope, 269.400€, 99m²














































269.400 €
2.721 € / m2
Za ovaj oglas se neko interesovao. Pozovi ranije kako ne bi propustio priliku.
- Stan u zgradi
- Grejanje na gas
- Novo
- Prostorije: ostava, terasa
- Oglas oglašava agencija pod reg. brojem 1808
- 1 lift
Opis oglasa
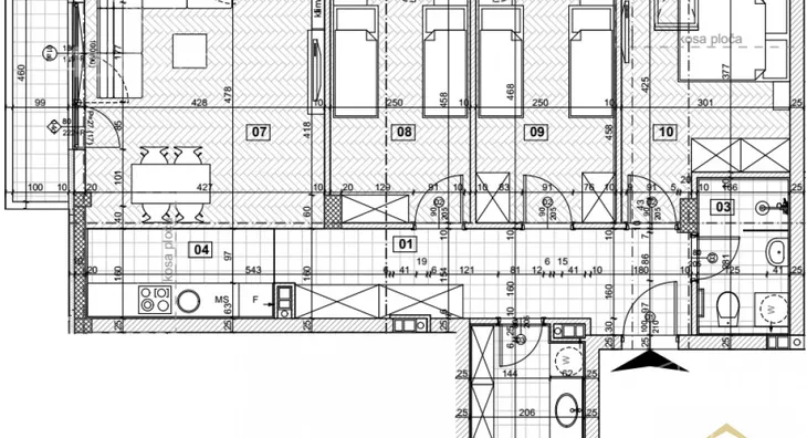
Na Bulevaru Evrope, u izuzetno traženom delu grada, nalazi se odmah useljiv četvorosoban stan površine 99 m², pri čemu je cena stana sa uključenim PDV-om. Prednost ove lokacije je savršena povezanost sa ostatkom grada, uz neposrednu blizinu škola, vrtića, prodavnica, javnog prevoza i svih sadržaja potrebnih za bezbrižnu svakodnevnicu. Stan je smešten u kvalitetno građenoj, modernoj zgradi sa liftom i odiše osećajem prostranosti i funkcionalnosti. Raspored prostorija je izuzetno praktičan i prilagođen većim porodicama ili onima koji žele više prostora za rad i privatnost. Čine ga komforan dnevni boravak, kuhinja, tri spavaće sobe, dva kupatila, hodnik, ostava i terasa koja dodatno doprinosi osećaju svetlosti i otvorenosti prostora. Enterijer je pažljivo završen, sa savremenim materijalima i neutralnim tonovima koji omogućavaju lako uklapanje različitih stilova nameštaja. Grejanje je centralno na gas sa kalorimetrima, što omogućava efikasnu kontrolu potrošnje i racionalne mesečne troškove. Stan je u potpunosti završen i odmah useljiv, bez potrebe za dodatnim ulaganjima. Uz doplatu je moguća kupovina parking ili garažnog mesta, što predstavlja značajnu pogodnost na ovoj lokaciji. Ova nekretnina je idealan izbor za porodice koje traže prostor, kvalitet i mir, ali i za one koji žele dugoročno sigurnu i vrednu investiciju.
Za više informacija kao i za razgledanje stana slobodno nas kontaktirajte.
Kontakt telefoni:
065... (prikaži broj telefona)
,
060... (prikaži broj telefona)
,
065... (prikaži broj telefona)
BAK Nekretnine
*Sačuvaj oglas uz belešku i primaj obaveštenja o njihovom pojeftinjenju ili pojavljivanju sličnih
Prikaz stana na mapi
Parkovi u blizini
- Park Bistrica28 min
- Futoški park33 min
- Limanski park36 min

Obeležja kulture u blizini
- Jodna Banja12 min
- Dvorac Eđšeg13 min
- Kuća iz 1797. godine18 min

Škole/Fakulteti/Vrtići u blizini
- Osnovna škola (Osnovna škola Jožef Atila)11 min
- Srednja škola (Gimnazija Laza Kostić)5 min
- Vrtić (Dečiji vrtić Zemlja čuda)6 min
- Fakultet (Protestantski teološki fakultet)7 min

- Bolnica (Ginekološka bolnica Ferona)2 min
- Klinika (Poliklinika Consilium)12 min
- Teretana (EMS Studio Maxifit)5 min
- Prodavnica (Supermarket Univerexport)6 min
- Restoran (Caffe restoran Rosetto)7 min
- Kafana (Atos pub)5 min
- Taksi stajalište (Taxi prevoz Novi Sad)20 min
- Autobuska stanica (Feješ Klare - Pravoslavna crkva)3 min
- Banka (Erste Bank Ekspres ekspozitura)6 min
- Pošta (Pošta Novi Sad 21124)7 min
Kontakt oglašivača
Za ovaj oglas se neko interesovao. Pozovi ranije kako ne bi propustio priliku.
Krediti OTP banke
Saznaj više
Prikazana rata odnosi se na maksimalni period otplate. Kalkulator je informativnog karaktera.
* Nakon isteka 5 godina, prelazi se na varijabilnu kamatnu stopu






















