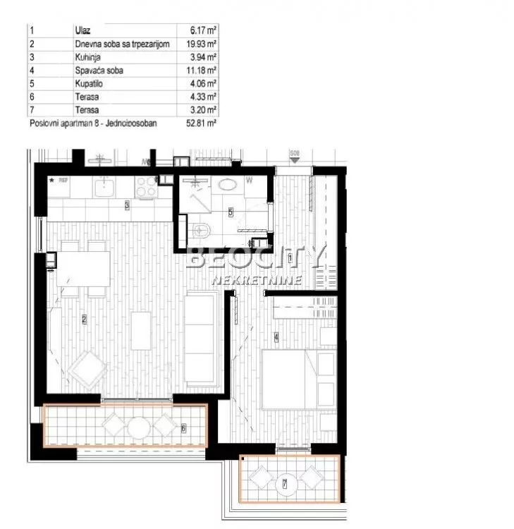
Jednoiposoban stan na prodaju, Autoput za Zagreb, 98.050€, 53m²


98.050 €
1.850 € / m2
- Stan u zgradi
- Grejanje na struju
- Nije uknjiženo
- Oglas oglašava agencija pod reg. brojem 554
Opis oglasa
Agencijski ID: 130498, I/. +PDV 20. Više informacija na: http://www.beocitynekretnine.rs Agencijska provizija 2%. Telefoni: 060... (prikaži broj telefona) • 011... (prikaži broj telefona) . Kontakt van radnog vremena: [email protected]
*Sačuvaj oglas uz belešku i primaj obaveštenja o njihovom pojeftinjenju ili pojavljivanju sličnih
Prikaz stana na mapi
Obeležja kulture u blizini
- Spomenik Nikoli Tesli11 min
- Hangar Starog aerodroma na Novom Beogradu11 min
- Stara osnovna škola14 min

Škole/Fakulteti/Vrtići u blizini
- Osnovna škola (Osnovna škola Gavrilo Princip)8 min
- Srednja škola (Srednja politehnička škola Politehnika)6 min
- Vrtić (Dečiji vrtić Zvrk)8 min
- Fakultet (Visoka tehnička škola strukovnih studija Beograd)9 min

- Bolnica (Kliničko bolnički centar Bežanijska kosa)10 min
- Klinika (Poliklinika Dr Sci. Hadžagić)9 min
- Teretana (Fitness centar Vulkan Gym)9 min
- Prodavnica (Prodavnica Mega Sunce)24 min
- Restoran (Restoran Stari Shanghai)32 min
- Autobuska stanica (Ikarbus)16 min
- Banka (Poštanska štedionica)5 min
- Pošta (Pošta Beograd 124)5 min
Kontakt oglašivača
Krediti OTP banke
Saznaj više
Prikazana rata odnosi se na maksimalni period otplate. Kalkulator je informativnog karaktera.
* Nakon isteka 5 godina, prelazi se na varijabilnu kamatnu stopu






















