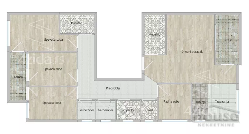
Petosoban stan na prodaju, Sajmište, 480.000€, 149m²
Sajmište, Gradske lokacije, Novi Sad
Prikaži mapuŠifra oglasa: 4zida-1065538Oglas ažuriran: 21.04.2026.






































480.000 €
3.221 € / m2
149 m²
5 soba
1. sprat
- Stan u zgradi
- U izgradnji
- Prostorije: terasa
- Uknjiženo
- Oglas oglašava agencija pod reg. brojem 200
- 1 garažno mesto
- 1 lift
Opis oglasa
Luksuzna kompletno opremljena nekretnina u mini vili modernog stanovanja, sa sopstvenom garažom i dva dodatna parking mesta. Ulica mirna na fantastičnoj lokaciji+++Agencijska oznaka stana 1065538. Cena stana 480.000eu +3% agencijske provizije. Novi Sad, Sajam, 149 m2, petosoban, prvi sprat. Opremljena luksuznim nameštajem petosobna nekretnina dvostrane orijentacije. Stan se pruža preko celog prvog sprata mini vile, građene pre godinu dana. Dnevni boravak izuzetno prostran. Četiri spavaće sobe. Tri kupatila, posebna soba za garderobu, posebna prostorija vešeraja. Uz stan imate i garažu od 18.5 m2, kao i dva parking mesta samo za vas. Podno grejanje se prostire kroz ceo stan kao i sistem grejanja i hlađenja " fun coil". Video nadzor pokriva celu vilu, koja u svom sklopu ima i biciklanu. Dakle imate zasita sve što vam treba za jedan savrmene i udoban način stanovanja, a da ne morate da se bavite ni majstorima niti opremanjem. Nekretnina koju kad vidite, sami zaključujete koje mogućnosti i udobnosti pruža, i sa koliko truda i na kraju novca je i opremljena. Ulica u kojoj se nalazi, je ušuškana i mirna, sa mini vilama visokog kvaliteta, a na 2 minuta hoda ste od Sajma. Iskrena preporuka agencije. Stan uknjižen jedan kroz jedan, mogućnost kupovine putem stambenog kredita.... Kontakt
060... (prikaži broj telefona)
,
021... (prikaži broj telefona)
*Sačuvaj oglas uz belešku i primaj obaveštenja o njihovom pojeftinjenju ili pojavljivanju sličnih
Prikaz stana na mapi
Parkovi u blizini
- Železnički park20 min
- Futoški park24 min
- Park Bistrica26 min

Obeležja kulture u blizini
- Jodna Banja11 min
- Spomen ploča Albertu Ajnštajnu i Milevi Marić14 min
- Dvorac Eđšeg15 min

Škole/Fakulteti/Vrtići u blizini
- Osnovna škola (Osnovna škola Petefi Šandor)10 min
- Srednja škola (Škola za dizajn Bogdan Šuput)7 min
- Vrtić (Dečiji vrtić Speak Up)5 min
- Fakultet (Univerzitet u Novom Sadu Medicinski fakultet)9 min

Zdravlje
- Bolnica (NS specijalna bolnica za hemodijalizu)4 min
- Klinika (Poliklinika Galetić)7 min
- Teretana (Teretana Classic Gym)10 min
Hrana i piće
- Prodavnica (Market Crvena jabuka)7 min
- Restoran (Restoran Knin)1 min
- Kafana (Gregor's Pub)1 min
Prevoz
- Taksi stajalište (Red Taxi)15 min
- Autobuska stanica (Hadži Ruvimova - Ilije Birčanina)9 min
Ostale ustanove
- Banka (OTP banka)4 min
- Pošta (Pošta Novi Sad 21140)6 min
Kontakt oglašivača
Svi oglasi - House nekretnineHOUSE NEKRETNINE

▾Reklama▾
Krediti OTP banke
Bez troškova obrade kredita
NKS 4.50% - EKS 5.74%
Period otplate 96 -360 meseca
Saznaj više
Prikazana rata odnosi se na maksimalni period otplate. Kalkulator je informativnog karaktera.
* Nakon isteka 5 godina, prelazi se na varijabilnu kamatnu stopu
Osiguranje domaćinstva online
Osiguraj svoje domaćinstvo u slučaju požara...

