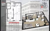
Dvosoban stan na prodaju, Sajmište, 139.400€, 47m²


139.400 €
2.966 € / m2
- Stan u zgradi
- Centralno grejanje
- U izgradnji
- Prostorije: terasa
- Oglas oglašava agencija pod reg. brojem 405
- 1 lift
- Godina izgradnje: 2025.
Opis oglasa
NOVI SAD.SAJAM .DVOSOBAN STAN.PLUS PDV(Svet nekretnine, Novi Sad, Reg. br. 405)
*Sačuvaj oglas uz belešku i primaj obaveštenja o njihovom pojeftinjenju ili pojavljivanju sličnih
Prikaz stana na mapi
Parkovi u blizini
- Železnički park21 min
- Futoški park24 min
- Park Bistrica27 min

Obeležja kulture u blizini
- Jodna Banja11 min
- Spomen ploča Albertu Ajnštajnu i Milevi Marić14 min
- Dvorac Eđšeg15 min

Škole/Fakulteti/Vrtići u blizini
- Osnovna škola (Osnovna škola Petefi Šandor)10 min
- Srednja škola (Škola za dizajn Bogdan Šuput)7 min
- Vrtić (Dečiji vrtić Speak Up)5 min
- Fakultet (Univerzitet u Novom Sadu Medicinski fakultet)9 min

- Bolnica (NS specijalna bolnica za hemodijalizu)4 min
- Klinika (Poliklinika Galetić)7 min
- Teretana (Teretana Classic Gym)10 min
- Prodavnica (Market Crvena jabuka)7 min
- Restoran (Restoran Dva Štapića)5 min
- Kafana (Pab Stribor beer & more)5 min
- Taksi stajalište (Crveni Taxi)16 min
- Autobuska stanica (Hadži Ruvimova - Ilije Birčanina)9 min
- Banka (OTP banka)4 min
- Pošta (Pošta Novi Sad 21140)6 min
Kontakt oglašivača
Stambeni krediti

- Period otplate od
96 -360 meseca
- NKS 4.75%
EKS 5.74%
Fiksna kamatna stopa
- Bez troškova obrade kredita
Za iznos kredita preko 300000 € poseti sajt banke.
Saznaj višestranici kreditnih kalkulatora
Keš krediti
Period otplate
13 meseci




















