Dvoiposoban stan na prodaju, Pantelej, 140.000€, 65m²






140.000 €
2.154 € / m2
- Etažno grejanje
- Novo
- Prostorije: kupatilo, terasa
- Oglas oglašava agencija pod reg. brojem 940
- 1 lift
- 1 telefonska linija
Opis oglasa
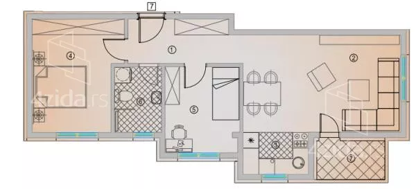
U ponudi je dvoiposoban stan u novogradnji na Panteleju, u blizini Pantelejske crkve. Stan je površine 64,70m2, nalazi se na IV spratu u objektu visoko kvalitetne gradnje. Sastoji se od ulaznog hodnika, dnevne sobe sa kuhinjom, dve spavaće sobe, kupatila i terase. Iznad stana će biti velika natkrivena terasa površine 35m2, sa izlazom direktno iz stana. Zgrada je spratnosti Po+P+4, gradi se od visokokvalitetnih materijala i u skladu sa svim zahtevima savremenog načina života. Zidanje TERMO Blokom ,izolacija 10cm stiropor spolja/10cm mineralna vuna u hodniku, energetski pasoš, na podu će biti postavljen troslojni hrastov parket, granitna keramika u kupatilima, ugradni vodokotlići, tuš paravani u crnoj boji, baterije u crnoj boji, ugradni lavabo sa komodom u kupatilu, protivprovalna ulazna vrata sa protivpožarnom zaštitom, kvalitetna drvena sobna vrata u belo/crno varijanti (bela ploča, crne šarke i brave), PVC stolarija visoke klase, MACO okovi, ClimaGuard dupla solar stakla sa argon punjenjem, roletne sa termo punjenjem, grejanje-hladjenje / Inverter klime , priprema za električni kotao,instalacije u podu i zidu, (radijatori i kotao na zahtev), modularna elektrogalanterija Aling Conel, interfon i video nadzor, bešumni lift marke Kleemann. Postoji mogućnost kupovine parking mesta u ograđenom dvorištu zgrade po ceni od 5000e sa PDV-om. Nalazi se u delu grada koji se poslednjih godina dosta infrastrukturno razvio i u neposrednoj blizini ima sve što je potrebno za Vaš kvalitetan i komforan porodičan život. U cenu je uključen PDV i kupci prvog stana imaju pravo na povraćaj PDV-a u iznosu od 10%. Hvala Vam što ste pogledali oglas. Za više informacija o ovoj ili drugim nekretninama i zakazivanje razgledanja kontaktirajte agenta na broj telefona iz oglasa (poziv, sms, viber) ili putem e-maila. Kompletnu ponudu dostupnih nekretnina možete pronaći na našem sajtu. Agencija Proagent nekretnine je upisana u Registru posrednika pod brojem: 940.
*Sačuvaj oglas uz belešku i primaj obaveštenja o njihovom pojeftinjenju ili pojavljivanju sličnih
Prikaz stana na mapi
Parkovi u blizini
- Park složnih komšija21 min
- Park Svetog Save21 min
- Park heroja NOB-a29 min

Obeležja kulture u blizini
- Ranohrišćanska grobnica6 min
- Ranohrišćanska bazilika7 min
- Zgrada Oficirskog doma10 min

Škole/Fakulteti/Vrtići u blizini
- Osnovna škola (Osnovna škola Njegoš)5 min
- Srednja škola (Gimnazija 9. maj)10 min
- Vrtić (Dečiji vrtić Meca Dobrica)8 min
- Fakultet (Fakultet za pravne i poslovne studije Dr Lazar Vrkatić)8 min

- Bolnica (Bolnica Đorić)7 min
- Klinika (Family Medica poliklinika)7 min
- Teretana (Teretana Šuki)4 min
- Prodavnica (Tis market 20)6 min
- Restoran (Restoran President Lux)8 min
- Kafana (Kafana Stari ambar)6 min
- Taksi stajalište (Duga taksi)19 min
- Autobuska stanica (Vase Pelagića)4 min
- Banka (Poštanska štedionica)4 min
- Pošta (Pošta Niš 3)8 min
Kontakt oglašivača
Krediti OTP banke
Saznaj više
Prikazana rata odnosi se na maksimalni period otplate. Kalkulator je informativnog karaktera.
* Nakon isteka 5 godina, prelazi se na varijabilnu kamatnu stopu


