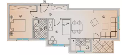
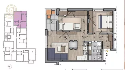
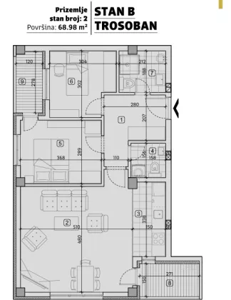
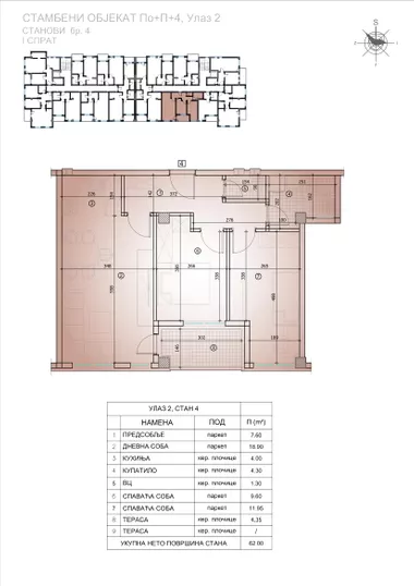
prodaja stanova Pantelej - Niš
Prosečna cena stanova — Pantelej - Niš
Pratimo kretanje cena nekretnina na lokaciji Pantelej. Prosečna cena kvadrata stanova u starogradnji: 1871 €/m²
Podlokacije — Pantelej - Niš
Po tipu nekretnine — Pantelej - Niš
Zanima te samo određeni tip stanova, npr. garsonjere ili dvosobni stanovi?





























































































