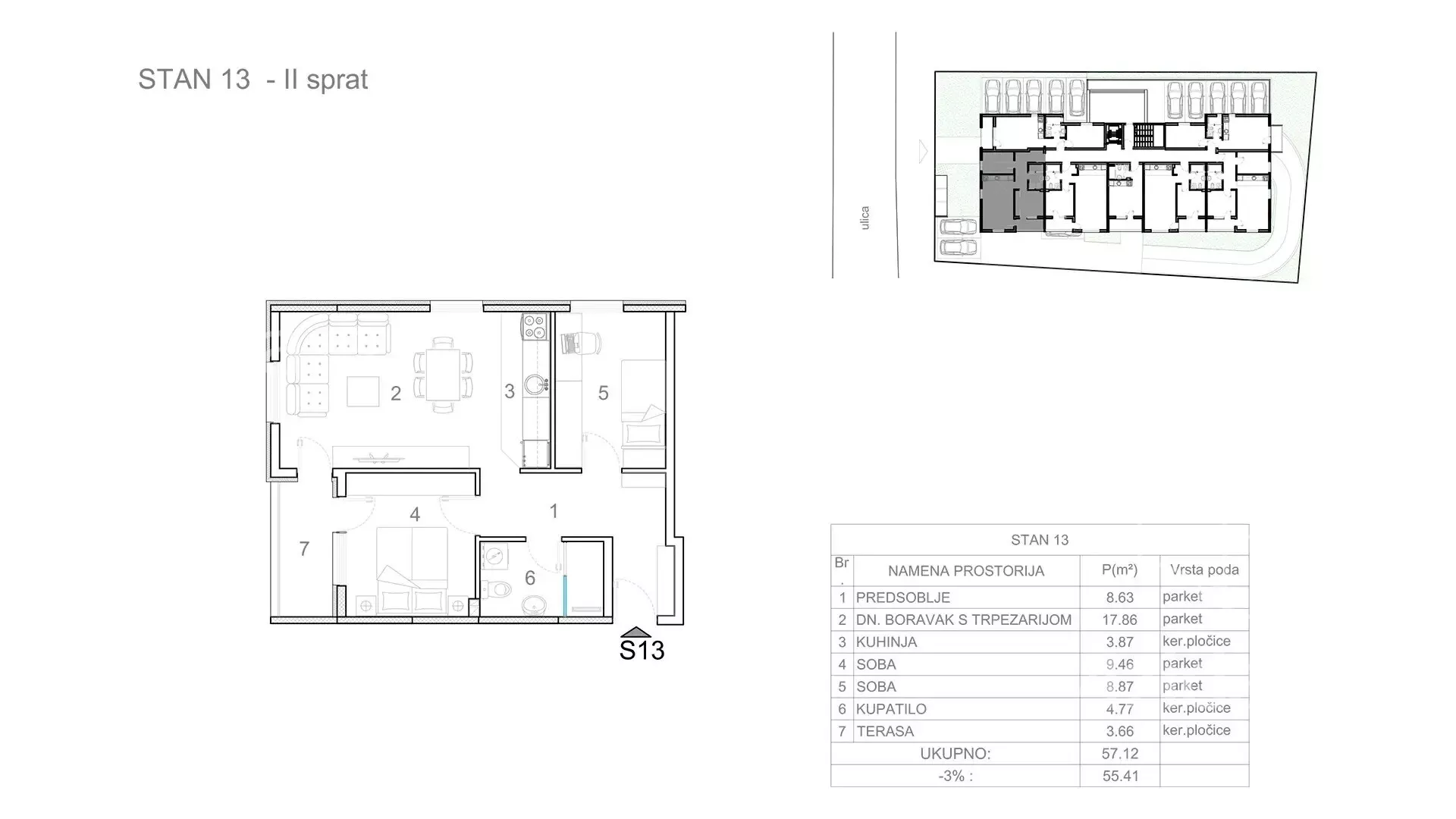
Dvoiposoban stan na prodaju, Pantelej, 99.700€, 56m²














99.700 €
1.780 € / m2
- Stan u zgradi
- Etažno grejanje
- U izgradnji
- Prostorije: kupatilo, toalet, terasa
- Opremljenost: Prazno - internet, klima, ventilacija
- Orijentacija ka: sever, jug, istok, zapad
- Pogled na: ulicu, dvorište
- U procesu uknjižavanja
- Oglas oglašava agencija pod reg. brojem 691
- 1 garažno mesto, garaža u sklopu zgrade
- 1 parking mesto, parking u dvorištu zgrade, javni parking van zone
- 1 lift
- Godina izgradnje: 2026.
- Zgrada poseduje: prilaz za invalide, dvorište, podrum, ventilacija, video nadzor
- Tip interneta: optički
- Kablovska
- 1 telefonska linija
- Autobuske linije: 2
Opis oglasa
Direktna prodaja stanova od investitora. Stambeni objekat u izgradnji, spratnosti Po + P + 6 nalazi se na Panteleju u Nišu. Zgrada poseduje lift, podzemnu garažu i parking
Stanovi raznih struktura i kvadratura : Garsonjere povrsine 25,5m2 ; Jednoiposobni povrsine 39m2, 41m2, 46,5m2 i Dvoiposobni povrsine 55,5m2
Materijali:
Fasada objekta je urađena od kombinacije dekorativne cigle (listele) i demit fasade sa izolacijom od 12 cm.
Stolarija PVC REHAU sa aluminijumskim roletnama i troslojnim staklom.
Lift proizvođača KONE.
Granitna keramika.
Konzolne WC šolje sa ugradnim vodokotlićima.
Montaža nosača i odvod kondezata za klima uređaje.
Etažno grejanje na električni kotao.
Pod troslojni parket.
Zvučna izolacija u podu i zidovima između stanova!
Lokacija objekta je u novom stambenom naselju u Panteleju, koje je okruženo mnogobrojnim prodavnicama, apotekama, kafićima, sedištima kompanija i drugo. Na samo par desetina metara od samog objekta nalazi se autobuska stanica (na bulevaru Svetog Pantelejmona). U blizini zgrade postoji i park sa zelenom površinom i rekvizitima za dečiju igru.
Cena satnova : 1800€/m² sa PDV-om, uz mogućnost povraćaja PDV-a za kupce prve nekretnine.
Za sve informacije stojimo vam na raspolaganju. tel: +38... (prikaži broj telefona) ; 060... (prikaži broj telefona)
Agencija DTS nekretnine je upisana u registru posrednika pod brojem 691
*Sačuvaj oglas uz belešku i primaj obaveštenja o njihovom pojeftinjenju ili pojavljivanju sličnih
Prikaz stana na mapi
Parkovi u blizini
- Park Svetog Save27 min
- Park složnih komšija28 min
- Park heroja NOB-a31 min

Obeležja kulture u blizini
- Ranohrišćanska grobnica5 min
- Ranohrišćanska bazilika6 min
- Zgrada Oficirskog doma9 min

Škole/Fakulteti/Vrtići u blizini
- Osnovna škola (Osnovna škola Stefan Nemanja)6 min
- Srednja škola (Gimnazija 9. maj)9 min
- Vrtić (Dečiji vrtić Mazza)4 min
- Fakultet (Fakultet za pravne i poslovne studije Dr Lazar Vrkatić)9 min

- Bolnica (Bolnica Đorić)7 min
- Klinika (Family Medica poliklinika)8 min
- Teretana (Teretana Šuki)5 min
- Prodavnica (Beni trgovina)5 min
- Restoran (Restoran President Lux)10 min
- Kafana (Kafana Stari ambar)13 min
- Taksi stajalište (Cool taksi)22 min
- Autobuska stanica (Vase Pelagića)6 min
- Banka (Eurobank Direktna)6 min
- Pošta (Pošta Niš 3)6 min
Kontakt oglašivača

Krediti OTP banke
Saznaj više
Prikazana rata odnosi se na maksimalni period otplate. Kalkulator je informativnog karaktera.
* Nakon isteka 5 godina, prelazi se na varijabilnu kamatnu stopu

