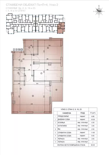
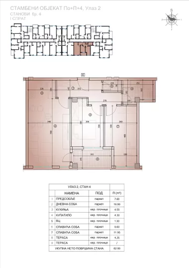
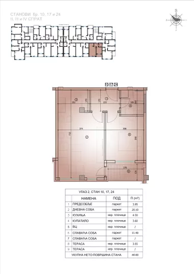
prodaja stanova Palilula - Niš
45 dana
prosečno vreme trajanja oglasa za prodaju stanova, Palilula - Niš
Pogledaj ponudu na 4zida.rs i pronađi dom kakav tebi odgovara.
Ako želiš da sačuvaš trenutnu pretragu i primaš obaveštenja svaki put kada se pojavi novi oglas, možeš to uraditi klikom na sledeće dugme.
Prosečna cena stanova — Palilula - Niš
Pratimo kretanje cena nekretnina na lokaciji Palilula. Prosečna cena kvadrata stanova u starogradnji: 1919 €/m²
Podlokacije — Palilula - Niš
Po tipu nekretnine — Palilula - Niš
Zanima te samo određeni tip stanova, npr. garsonjere ili dvosobni stanovi?




























































































