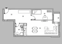
Jednoiposoban stan na prodaju, Aleksandra Bugarskog, 127.080€, 53m²
Mirijevo, Zvezdara opština, Beograd
Prikaži mapuŠifra oglasa: 4zida-2017Oglas ažuriran: pre 15 sati






127.080 €
2.398 € / m2
53 m²
1.5 sobe
2/4 sprata
- Stan u zgradi
- Etažno grejanje
- U izgradnji
- Prostorije: terasa
- Opremljenost: internet
- Uknjiženo
- Oglas oglašava agencija pod reg. brojem 2017
- 1 lift
- Tip interneta: optički
- Kablovska
- 1 telefonska linija
Opis oglasa
Jednoiposoban stan, Mirijevo IV, kvadrature 52.95 m2, po ceni 127.080€ sa PAP, II sprat mogućnost kupovine na kredit.
- Lift
- Parking
- Etažno grejanje
- Demit fasada 15cm
- Sigurnosna ulazna vrata
- Untrašnja vrata od farbanog medijapana
- Keramika prve klase
- PVC prozori s roletnama
- Ugradni Geberit sistem
- Parket troslojni - tarket
- Spratnost Po+Pr+3+Ps
- Visina plafona 2.60
- Godina završetka radova početak 2027. godine
- Mogućnost kupovine na kredit
- Sigurnosne kamere
Agencijska provizija je 2% od kupoprodajne cene.
Kontaktirate nas za više informacija.
066... (prikaži broj telefona)
e-mail: [email protected]
*Sačuvaj oglas uz belešku i primaj obaveštenja o njihovom pojeftinjenju ili pojavljivanju sličnih
Prikaz stana na mapi
Parkovi u blizini
- Zvezdarska šuma37 min
- Park Slavujev potok42 min

Obeležja kulture u blizini
- Pašina česma11 min
- Trećepozivačka česma12 min
- Tripod14 min

Škole/Fakulteti/Vrtići u blizini
- Osnovna škola (Osnovna škola Despot Stefan Lazarević)12 min
- Srednja škola (Sedma beogradska gimnazija)12 min
- Vrtić (Dečiji vrtić Srećica)6 min
- Fakultet (Visoka građevinsko-geodetska škola Beograd)11 min

Zdravlje
- Bolnica (Kliničko bolnički centar Zvezdara)13 min
- Klinika (Klinika Impuls)12 min
- Teretana (Teretana Trio)4 min
Hrana i piće
- Prodavnica (MV Market)3 min
- Restoran (Restoran Stari gurman)9 min
- Kafana (Pivnica Krigla)15 min
Prevoz
- Taksi stajalište (Taxi stanica)11 min
- Autobuska stanica (Mirijevo 3)5 min
- Tramvajska stanica (Koste Trifkovića)27 min
- Trolejbuska stanica (Marčanska)34 min
Ostale ustanove
- Banka (Banca Intesa)5 min
- Pošta (Pošta Beograd 78)9 min
Kontakt oglašivača
▾Reklama▾
Krediti OTP banke
Bez troškova obrade kredita
NKS 4.50% - EKS 5.74%
Period otplate 96 -360 meseca
Saznaj više
Prikazana rata odnosi se na maksimalni period otplate. Kalkulator je informativnog karaktera.
* Nakon isteka 5 godina, prelazi se na varijabilnu kamatnu stopu
Osiguranje domaćinstva online
Osiguraj svoje domaćinstvo u slučaju požara...


