Četvorosoban stan na prodaju, Đevđelijska, 390.000€, 157m²


























390.000 €
2.484 € / m2
- Centralno grejanje
- Prostorije: kupatila (3+), terasa
- Opremljenost: Prazno - klima
- Uknjiženo
- Oglas oglašava agencija pod reg. brojem 497
- 1 lift
- Godina izgradnje: 2010.
- 1 telefonska linija
Opis oglasa
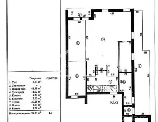
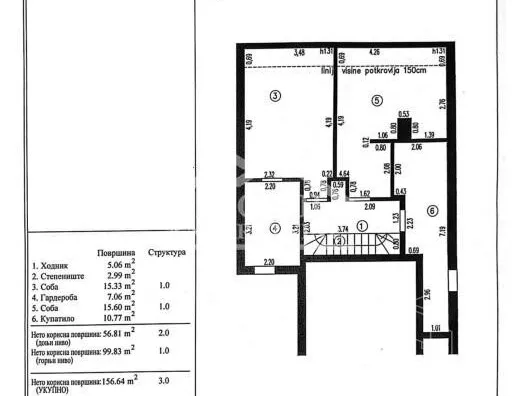
Prodaje se prostran stan od 160 m² na odličnoj lokaciji, na svega 150 m od Bulevara kralja Aleksandra, u modernoj zgradi sa liftom i centralnim grejanjem.
Raspored:
– Donji nivo: dnevni boravak cca 60 m², balkon + zatvorena terasa 21 m², gostinjski toalet, pomoćna prostorija
– Gornji nivo: tri spavaće sobe, garderober, dva kupatila
✔ Uknjižen, bez tereta
✔ Mogućnost kupovine 1–3 uknjižena garažna mesta uz doplatu (privatna garaža)
✔ Podrum uključen
✔ 3 klime, optika, video nadzor
✔ Pogodan za keš i kreditne kupce
Odlična prilika za život ili investiciju.
Agencijska provizija 2% od dogovorene kupoprodajne cene.
Prikaz na mapi je informativnog karaktera i pokazuje približnu lokaciju.
Za više informacija posetite naš sajt https://www.beostilnekretnine.rs / ili
nas posetite - Beograd, Knez Mihailova 23/III
*Sačuvaj oglas uz belešku i primaj obaveštenja o njihovom pojeftinjenju ili pojavljivanju sličnih
Prikaz stana na mapi
Parkovi u blizini
- Park Urbani džep8 min
- Park Slavujev potok9 min
- Park Ćirila i Metodija17 min

Obeležja kulture u blizini
- Trećepozivačka česma6 min
- Vozarev krst8 min
- Spomenik Ćirilu i Metodiju8 min

Škole/Fakulteti/Vrtići u blizini
- Osnovna škola (Osnovna škola Veljko Dugošević)7 min
- Srednja škola (Zubotehnička škola Beograd)6 min
- Vrtić (Dečiji vrtić Simba)8 min
- Fakultet (MiT Akademija za marketing i informatiku)6 min

- Bolnica (Klinika za uvo, grlo i nos - KBC Zvezdara)6 min
- Klinika (Poliklinika Panacea)7 min
- Teretana (Teretana Klub A)3 min
- Prodavnica (Market Eko Bistrica)2 min
- Restoran (Restoran Ćevap)4 min
- Kafana (Pab Klopa i pivo)5 min
- Taksi stajalište (Taxi stanica)9 min
- Autobuska stanica (Crveni Krst)9 min
- Tramvajska stanica (Pijaca Zvezdara)17 min
- Trolejbuska stanica (Živojina Žujovića)6 min
- Banka (UniCredit Bank)6 min
- Pošta (Pošta Beograd 154)5 min
Kontakt oglašivača
Krediti OTP banke
Saznaj više
Prikazana rata odnosi se na maksimalni period otplate. Kalkulator je informativnog karaktera.
* Nakon isteka 5 godina, prelazi se na varijabilnu kamatnu stopu


