Dvoiposoban stan na prodaju, Konjarnik, 210.000€, 73m²
























210.000 €
2.877 € / m2
- Stan u zgradi
- Centralno grejanje
- Uobičajeno stanje
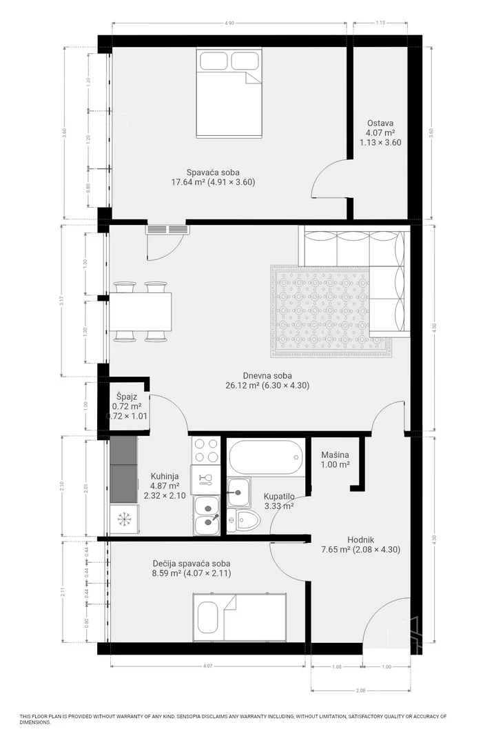
- Prostorije: kupatilo, toalet, ostava
- Opremljenost: Prazno - internet
- Orijentacija ka: sever
- Pogled na: dvorište
- Uknjiženo
- Kupovina direktno od vlasnika
- Javni parking van zone
- 1 lift
- Godina izgradnje: 1974.
- Zgrada poseduje: podrum
- Tip interneta: optički
- Kablovska
- Autobuske linije: 17, 31, 50, 308
- Trolejbuske linije: 19
Opis oglasa
Prodaje se funkcionalna, porodični stan u kvalitetnoj, staroj gradnji. Mir i tišina, okružen zelenilom.
Stan ima odličan raspored. Visina plafona je 2,6 m, što daje dodatni osećaj prostora.
U stanu je kvalitetan hrastov parket (riblja kost), deo stolarije je PVC.
Uz stan ide podrum, kao i zajednička vešernica. Visina od zemlje do prozora je 2,15 m, ispod stana su podrumski prozori.
Lokacija idealna za porodicu: vrtić uz zgradu, dve osnovne škole na manje od 10 min hoda, više srednjih škola u blizini. Odlična povezanost gradskim prevozom (31, 31N, 17, 50, 19, 21, 29, 308, 310, tramvaji 5, 6, 7).
U blizini su TC Konjarnik, Beo i Aviv, Lidl, pijaca, kao i više parkova, sportskih terena i veliki dečiji park ispred zgrade. Abmulanta dom zdravlja Zvezdara udaljen je oko 200 m. Leti stan izuzetno prijatan, zimi stan ušuškan i topao.
Mereno 73 m².
Prodaje vlasnik, bez provizije.
*Sačuvaj oglas uz belešku i primaj obaveštenja o njihovom pojeftinjenju ili pojavljivanju sličnih
Prikaz stana na mapi
Parkovi u blizini
- Park Šumice21 min
- Park Urbani džep28 min
- Park Slavujev potok30 min

Obeležja kulture u blizini
- Pašina česma7 min
- Kuća Flašar11 min
- Osnovna škola Kralj Petar II Karađorđević13 min

Škole/Fakulteti/Vrtići u blizini
- Osnovna škola (Osnovna škola Desanka Maksimović)5 min
- Srednja škola (Arhitektonska tehnička škola)9 min
- Vrtić (Dečiji vrtić Kolibri)3 min
- Fakultet (Visoka građevinsko-geodetska škola Beograd)9 min

- Bolnica (MedicOne - specijalna bolnica za plastičnu, estetsku i rekonstruktivnu hirurgiju)9 min
- Klinika (Poliklinika Equilibrium)11 min
- Teretana (Fitness klub Spirit)4 min
- Prodavnica (Market Bam)3 min
- Restoran (Restoran Đerdan)4 min
- Kafana (Pub Republika)11 min
- Taksi stajalište (Taxi stanica)5 min
- Autobuska stanica (Učiteljsko Naselje)2 min
- Tramvajska stanica (Ustanička)13 min
- Trolejbuska stanica (Učiteljsko Naselje)4 min
- Banka (Eurobank Direktna)3 min
- Pošta (Pošta Beograd 22)5 min
Kontakt oglašivača

Krediti OTP banke
Saznaj više
Prikazana rata odnosi se na maksimalni period otplate. Kalkulator je informativnog karaktera.
* Nakon isteka 5 godina, prelazi se na varijabilnu kamatnu stopu

