Dvoiposoban stan na prodaju, Ledinačka 5, 159.500€, 53m²








































159.500 €
3.009 € / m2
- Stan u zgradi
- Grejanje na struju
- Luksuzno
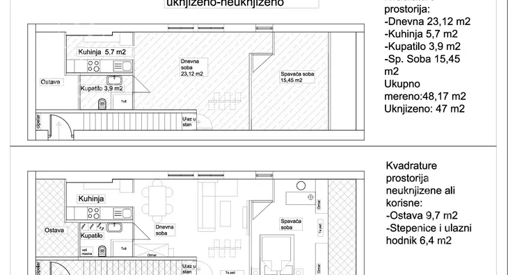
- Prostorije: kupatilo, kuhinja, ostava
- Opremljenost: Namešteno - internet, TV, klima, veš mašina, kuhinjski elementi, sudo mašina, frižider, zamrzivač, mikrotalasna rerna, šporet, rerna, ležaj, plakar, ugradni plakar
- Orijentacija ka: sever
- Pogled na: dvorište
- Uknjiženo
- Hitna prodaja
- Kupovina direktno od vlasnika
- Parking u dvorištu zgrade
- Godina izgradnje: 2023.
- Zgrada poseduje: tavan, podrum
- Tip interneta: kablovska
- Kablovska
- Autobuske linije: 65
Opis oglasa
Prodaje se komplet renoviran i namesten interesantan stan u potkrovlju na 1 spratu ispod stana je stan,nalazi se na Zvezdari Ledinacka ulica pored doma Patris Lumumba nadomak Zvezdarske sume,ispred zgrade je park i autobuska stanica autobusa 65.
Ispred zgrade se nalazi parking na kome parkiraju samo stanari zgrade.
Stan je komplet renoviran u mojoj reziji,imam celokupnu foto dokumtaciju.
Iz struke sam pa smatram da je uredjeno kvalitetno i profesionalno obzirom da sam masu radova uradio ja,obzirom da se bavim nadzorom i izvodjenju iskoristio sam svo znaje koje sam imao.
Uradjena je kompletna rekonstrukcija struje,vode,kanalizacije,oblaganje plafona gipsom izolacijom od 10 cm pored stare postojece od 5 cm znaci sad ima 15 cm i folijom protiv curenja,oblaganje zidova knaufom i izolacijom od 5 cm.
Na podu Tarkett u dnevnoj i galeriji hrast spavaca mahagoni,u kuhinji i kupatilu prvoklasna keramika granitna kupatilo komplet i pod kuhinje ,,Florim,, zid kuhinje ,,Arcana,,
Prozori i balkonska vrata drvena Eurofalc stolarija sa termo staklom.
Sav namestaj radjen po meri,rucno,kuhinja Matis.
Stepenice za galeriju,ograda galerije,postolje za lavabo,radjene od hrastovine i oraha uljene izradjene bez i jednog srafa.
Gazista ulaznog stepenista radjena od drveta starog vise od 50 godina.
Sva nova bela tehnika Candy uglavnom,masom i dalje u garanciji registrovana na sajtovima proizvodjaca zbog produzene garancije,tv hisense 43 inca Smart.
Prodaje se komplet opremljen u dogovoru sa kupcem.
Stan poseduje ulazni hodnik iz zgrade,koji je poseban tako da stvara intimu,iznad vas je samo nebo tako da buke nema ispod stana su dva stana zive fini i porodicni ljudi.
Stan gleda ka dvoristu koje je lepo uredjeno.
Stan izuzetno svetao toliko da danju ne treba vestacko svetlo danju,s obzirom da svaka prostorija ima svoj prozor krovni i pored toga dva zidna i balkonac.
Ima opciju za terasu od cca 20 m2 uz mala ulaganja.
Stan se sastoi od ulaznog hodnika,dnevne sobe,kupatila,kuhinje,spavace sobe,galerije koja je cca 6 m2 moze biti decija soba radna ili mini atelje,kao i ostave iza kuhinje koja se nalazi u najnizem delu krova od 10 m2.
Stan je uknjizen na 47 m2 bez ulaznog hodnika i galerije i ostave.
Stana poseduje podrum.
U stanu je bio stanar dve godine do ovog meseca 600 e mesecno,u toku prodaje stan ce opet biti u najmu tako da posotoji mogucnost da se stan preuzme sa stanarom.
Sve stvari u stanu su stare 2 godine.
Stan se greje na ta pec 6 KW Stiebel Eltron komplet remontovana kupljena od servisera,modernija manja i produktivnija od nasih domacih,sa tajmerom i poseduje inverter Bosh klimu za grejanje i hladjenje 12 BTU.
Ne volim da hvalim stvari ali s obzirom da je komplet renoviran i opremnjen da je jednostavan za najam zbog lokacije i dobre povezanosti sa centrom,s obzirom da je na visini prvog sprata i gleda na dvoriste mislim da je dobra prilika za kupovinu.
Jedino sto bi iz stana odneo su slike.
Komunikacija putem Viber i Watsapp jer zivim u inostranstvu +385 95 350 22 62.
Za sva pitanja sam na raspolaganju,takodje ako je neko zauzet ili voli prepisku putem maila [email protected]
Sretna kupovina.
*Sačuvaj oglas uz belešku i primaj obaveštenja o njihovom pojeftinjenju ili pojavljivanju sličnih
Prikaz stana na mapi
Parkovi u blizini
- Spomen park oslobodiocima Beograda19 min
- Park Slavujev potok21 min
- Zvezdarska šuma23 min

Obeležja kulture u blizini
- Tripod5 min
- Novo groblje Beograd7 min
- Spomenik Oslobodiocima Beograda8 min

Škole/Fakulteti/Vrtići u blizini
- Osnovna škola (Osnovna škola 1300 kaplara)5 min
- Srednja škola (Škola za mašinstvo i umetničke zanate Tehnoart)4 min
- Vrtić (Dečiji vrtić Zora)8 min
- Fakultet (Visoka škola likovnih i primenjenih umetnosti strukovnih studija)6 min

- Bolnica (Opšta bolnica Medical centar)5 min
- Klinika (Poliklinika Panacea)11 min
- Teretana (Fitnes studio Iva)4 min
- Prodavnica (Shorty Market)3 min
- Restoran (Restoran Stara priča)3 min
- Kafana (Kafana Poslednje pijanstvo)8 min
- Taksi stajalište (4MD Taxi)8 min
- Autobuska stanica (Zvezdarskih Jelki)3 min
- Tramvajska stanica (Omladinski Stadion)13 min
- Trolejbuska stanica (Marka Oreškovića)16 min
- Banka (NLB Komercijalna banka)8 min
- Pošta (Pošta Beograd 130)4 min
Kontakt oglašivača

Krediti OTP banke
Saznaj više
Prikazana rata odnosi se na maksimalni period otplate. Kalkulator je informativnog karaktera.
* Nakon isteka 5 godina, prelazi se na varijabilnu kamatnu stopu

