Četvorosoban stan na prodaju, Jurija Gagarina, 505.000€, 103m²
OBIĐI 3D TURU










































505.000 €
4.903 € / m2
Za ovaj oglas se neko interesovao. Pozovi ranije kako ne bi propustio priliku.
- Stan u zgradi
- Centralno grejanje
- Luksuzno
- Opremljenost: Namešteno - interfon
- Uknjiženo
- Oglas oglašava agencija pod reg. brojem 167
- 1 garažno mesto
- 1 lift
- Godina izgradnje: 2009.
- Zgrada poseduje: lođa
Opis oglasa
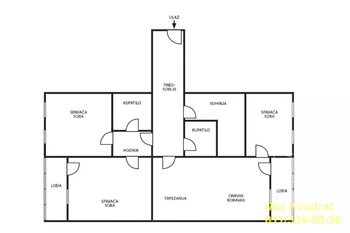
Novi Beograd, Blok 67 - Belville - Jurija Gagarina
4.0, 103m2 (dve lođe 8m2), 4/7, CG, lift, interfon, garaža
U ponudi za prodaju luksuzan, četvorosoban stan, dvostrano orijentisan, sa otvorenim pogledom, u jednom od najtraženijih beogradskih naselja.
Sastoji se od prostranog dnevnog boravka sa izlazom na lođu, tri spavaće sobe od kojih glavna ima izlaz na drugu lođu, kuhinje, dva kupatila i hodnika.
Potpuno je opremljen kvalitetnim nameštajem, a svaka prostorija poseduje ugradne plakare.
Takođe, stan poseduje jedno garažno mesto.
Uknjižen na 101m2, merena površina iznosi 103m2.
Agencijska provizija 2%
*Sačuvaj oglas uz belešku i primaj obaveštenja o njihovom pojeftinjenju ili pojavljivanju sličnih
Prikaz stana na mapi
Parkovi u blizini
- Dečje igralište10 min
- Park Blok 7022 min
- Park Republike Argentine38 min

Obeležja kulture u blizini
- Hangar Starog aerodroma na Novom Beogradu8 min
- Stara osnovna škola9 min
- Česma10 min

Škole/Fakulteti/Vrtići u blizini
- Osnovna škola (Osnovna škola Mladost)6 min
- Srednja škola (Ruska osnovna i srednja škola)4 min
- Vrtić (Predškolska ustanova Meda 2)11 min
- Fakultet (Visoka škola strukovnih studija za informacione tehnologije ITS)6 min

- Bolnica (Puls kardiološki centar)10 min
- Klinika (Poliklinika Solar Medical Center)9 min
- Teretana (Ladies Corner Yoga & Fitness Studio)2 min
- Prodavnica (Shop&Go)3 min
- Restoran (Restoran Burrito Madre)2 min
- Kafana (Green Mill Pub)6 min
- Taksi stajalište (Taxi stanica)2 min
- Autobuska stanica (Naselje Belvil)2 min
- Tramvajska stanica (Blok 23)25 min
- Banka (NLB Komercijalna banka)3 min
- Pošta (Pošta Beograd 132)6 min
Kontakt oglašivača
Za ovaj oglas se neko interesovao. Pozovi ranije kako ne bi propustio priliku.
Krediti OTP banke
Saznaj više
Prikazana rata odnosi se na maksimalni period otplate. Kalkulator je informativnog karaktera.
* Nakon isteka 5 godina, prelazi se na varijabilnu kamatnu stopu





















