Lokal na prodaju, Vojvode Dobrnjca, 489.000€, 99m²




















489.000 €
4.939 € / m2
- Podno grejanje
- Renovirano
- Prostorije: ostava
- Opremljenost: Prazno - internet, klima, kanalizacija
- Oglas oglašava agencija pod reg. brojem 167
- Kanalizacija
- Objekat poseduje: video nadzor
Opis oglasa
Palilula, Botanička bašta - Vojvode Dobrnjca
lokal, 99m2, prizemlje, CG, podno grejanje, tri klime, internert, alarm, sigurnosne kamere, izlog
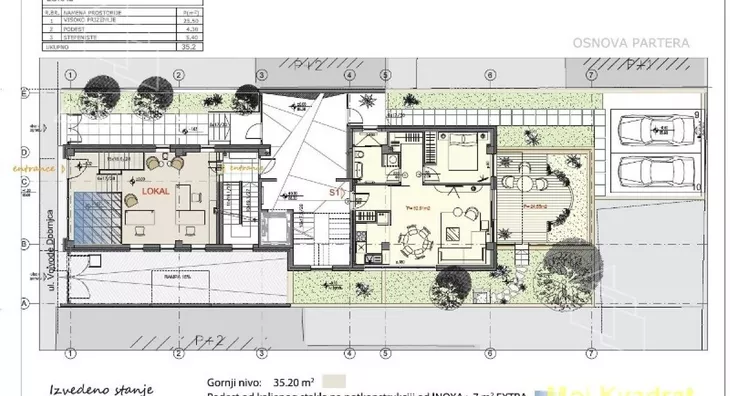
Prodaje se moderan, luksuzan i opremljen lokal ukupne površine 99 m² (92 m² uknjiženo + 7 m² stakleni podest), sa dva ulaza i reprezentativnim izlogom od kaljenog stakla (nosivost 2T). Lokal je na dve etaže, kompletno renoviran, idealan za kancelarije, showroom, salon ili studio.
Enterijer:
• MDF kuhinja sa belom tehnikom
• Luksuzno kupatilo
• Ugradni plakari i garderober sa rasvetom
• Ostava
Grejanje i hlađenje:
• Grejanje na toplovod
• Podno grejanje (lokal + trotoar)
• Tri klima uređaja LG ARTCOOL Stylist Inverter
Tehnika i sigurnost:
• SBB internet, podni izvodi za IT opremu
• BOSE 5.1 audio sistem
• Light design, alarm i sigurnosne kamere
Uknjižen na 92m2.
Agencijska provizija 2%
Agent: Lazar Karadžić 065... (prikaži broj telefona) (licenca br.3343)
*Sačuvaj oglas uz belešku i primaj obaveštenja o njihovom pojeftinjenju ili pojavljivanju sličnih
Prikaz poslovnog prostora na mapi
Parkovi u blizini
- Park Hadžipopovac8 min
- Park Starine Novaka8 min
- Tašmajdan12 min

Obeležja kulture u blizini
- Spomen kuća Uroša Predića5 min
- Prva varoška bolnica5 min
- Spomenik despotu Stefanu Lazareviću6 min

Škole/Fakulteti/Vrtići u blizini
- Osnovna škola (Osnovna škola Vuk Karadžić)3 min
- Srednja škola (Pravno poslovna škola)5 min
- Vrtić (Dečiji vrtić Kindergarden)2 min
- Fakultet (Evropski univerzitet - Fakultet za evropski biznis i marketing)5 min

- Bolnica (Bolnica za estetsku i rekonstruktivnu hirurgiju Orea)6 min
- Klinika (Naša poliklinika Dr Rodoljub Ristić)3 min
- Teretana (Trening centar Boot Camp Academy)2 min
- Prodavnica (IDEA)3 min
- Restoran (Meksički restoran Dobola)3 min
- Kafana (Pivnica Žirafa 23)3 min
- Taksi stajalište (Taxi stanica)8 min
- Autobuska stanica (Cvijićeva)2 min
- Tramvajska stanica (Takovska)4 min
- Trolejbuska stanica (Jaše Prodanovića)3 min
- Banka (Erste Bank Ekspres ekspozitura)3 min
- Pošta (Pošta Beograd 12)5 min
Kontakt oglašivača
Krediti OTP banke
Saznaj više
Prikazana rata odnosi se na maksimalni period otplate. Kalkulator je informativnog karaktera.
* Nakon isteka 5 godina, prelazi se na varijabilnu kamatnu stopu





















