Jednoiposoban stan na prodaju, Adice, 88.000€, 41m²






88.000 €
2.146 € / m2
- Stan u zgradi
- Centralno grejanje
- U izgradnji
- Prostorije: terasa
- Uknjiženo
- Oglas oglašava agencija pod reg. brojem 554
- 1 parking mesto
Opis oglasa
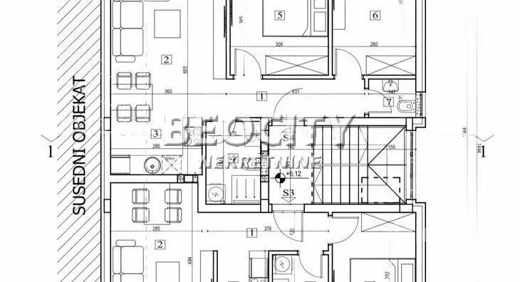
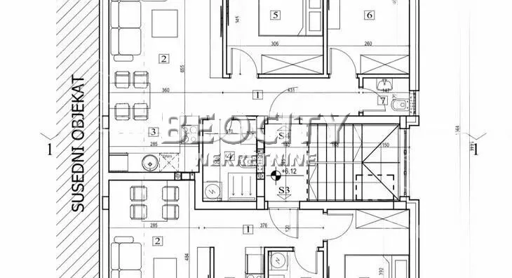
Agencijski ID: 129529, II/II, terasa, uknjižen, u izgradnji, parking. Prodaja - ADICE - stan 41m2 dvosoban. Useljenje decembar ove godine. Moderna vila sa 2 ulaza sa po 4 stana. Celi rejon u velikom prosperitetu. Blizina nove osnovne skole, vrtica, novog Doma zdravlja. Blizina autobuske stanice br 6, koja saobraca do centra Novog Sada, sa polascima na 15 min. Blizina Dunava. Čist vazduh i mir! Vlasnistvo 1/1. Objekat trenutno nema kanalizaciju, ali su radovi na istoj u toku. Odluka za nov stan uvek je dobra odluka. Više informacija na: http://www.beocitynekretnine.rs Agencijska provizija 3%. Telefoni: 021... (prikaži broj telefona) • 060... (prikaži broj telefona) . Kontakt van radnog vremena: [email protected]
*Sačuvaj oglas uz belešku i primaj obaveštenja o njihovom pojeftinjenju ili pojavljivanju sličnih
Prikaz stana na mapi
Parkovi u blizini
- Park Bistrica47 min

Obeležja kulture u blizini
- Dvorac Hadik-Kotek17 min
- Dvorac Eđšeg17 min
- Jodna Banja18 min

Škole/Fakulteti/Vrtići u blizini
- Osnovna škola (Osnovna škola Marija Trandafil)manje od 1 min
- Srednja škola (Privatna medicinska škola Dositej Obradović)8 min
- Vrtić (Dečiji vrtić Anđeo čuvar)6 min
- Fakultet (Protestantski teološki fakultet)10 min

- Bolnica (Ginekološka bolnica Ferona)9 min
- Klinika (Poliklinika Consilium)10 min
- Teretana (Fintess centar Basic Control Academy)9 min
- Prodavnica (Mikromarket)1 min
- Restoran (Restoran Exit West)28 min
- Kafana (Kafanica Kod Dače)45 min
- Taksi stajalište (Taxi prevoz Novi Sad)34 min
- Autobuska stanica (Veternička - Fešter osnovna škola)1 min
- Banka (Erste Bank Ekspres ekspozitura)10 min
- Pošta (Pošta Novi Sad 21142)6 min
Kontakt oglašivača
Krediti OTP banke
Saznaj više
Prikazana rata odnosi se na maksimalni period otplate. Kalkulator je informativnog karaktera.
* Nakon isteka 5 godina, prelazi se na varijabilnu kamatnu stopu





















