Lokal na prodaju, Moravska, 547.000€, 114m²
Beograd, Vračar, Neimar
Prikaži mapuŠifra oglasa: 4zida-2285-6044Oglas ažuriran: pre 1 dan
























547.000 €
4.798 € / m2
Lokal
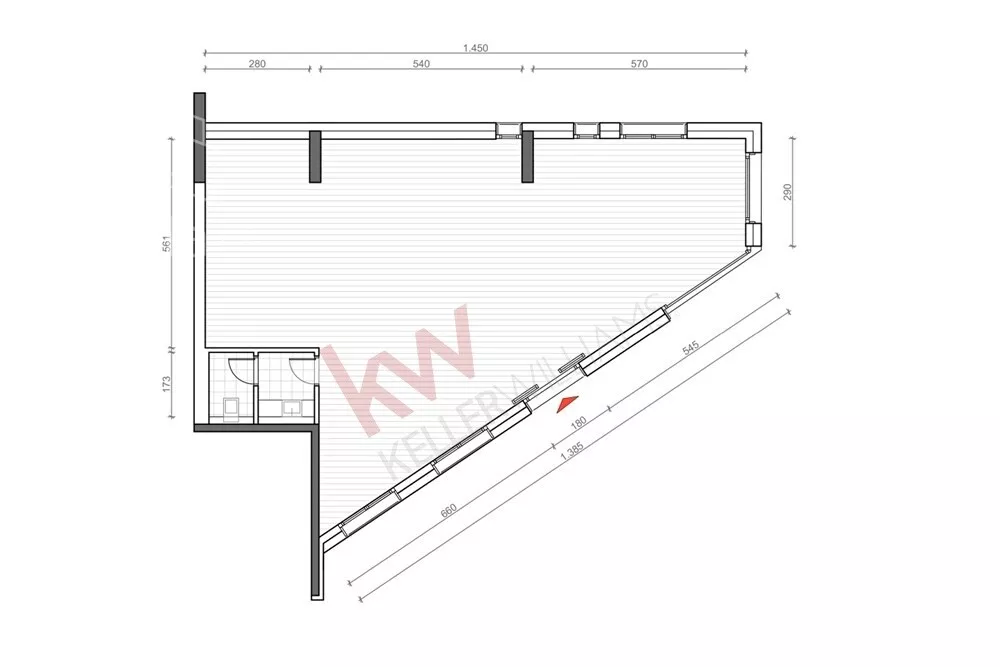
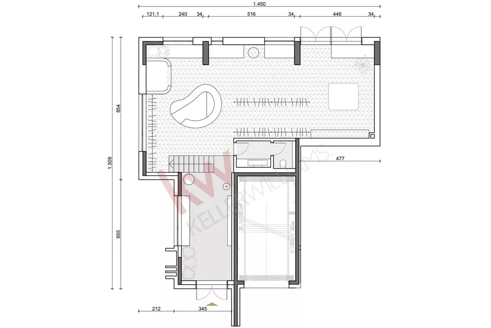
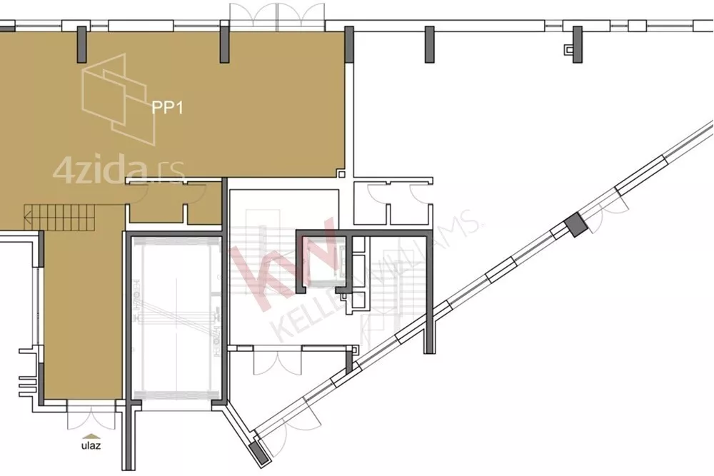
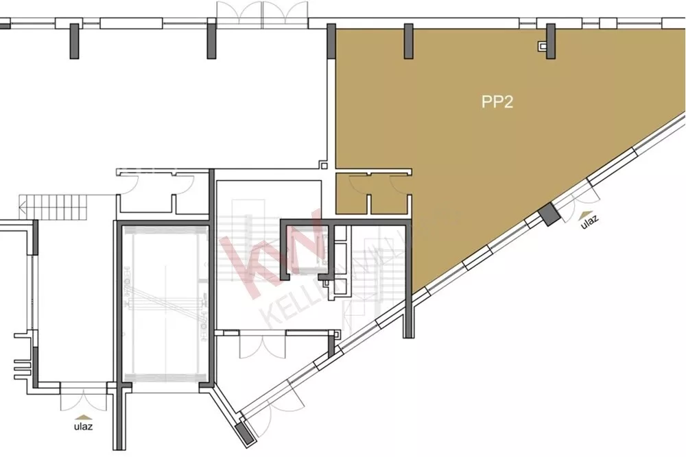
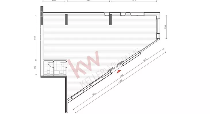
114 m²
Prizemlje/4 sprata
- Centralno grejanje
- U izgradnji
- Prostorije: toaleti (2)
- Opremljenost: klima
- Oglas oglašava agencija pod reg. brojem 1219
- 1 garažno mesto
- 1 lift
- Godina izgradnje: 2026.
- 1 telefonska linija
Opis oglasa
Opština Vračar se prostire na samo tri kvadratna kilometra, ali predstavlja dom za 80 000 stanovnika. Njegove granice čine četiri bulevara: Bulevar kralja Aleksandra, Bulevar Jugoslovenske armije i Južni bulevar.
Vračar poseduje dve gimnazije, četiri pozorišta, hram Svetog Save, Narodnu biblioteku, mnoštvo vrednih spomenika arhitekture, Dom zdravlja, sportski cenar, čuvenu Kalenić pijacu i mnogobrojne kafanske objekte. U blizini se nalazi Neimarski park, izgrađen 1933. godine, koji je prava gradska oaza zelenila. Osim staza za šetanje i klupa za odmor, u parku postoje i dva dečja igrališta sa rekvizitima i česma. Upravo tu, u najmirnijem delu Vračara, pozicionirana je zgrada koja nastavlja istoriju luksuznog graditeljstva na neimarskoj padini, kombinujući je sa zahtevima modernog vremena i dostupnim tehnološkim inovacijama u građevinarstvu. U okviru moderne zgrade, zastupljeni su stanovi različitih struktura, od jednosobnih do četvorosobnih, a poseban ekskluzivitet čine duplex stanovi na poslednjim etažama sa krovnim terasama. Ispod zgrade je podzemna garaža kojom je obezbeđeno dovoljno mesta za parkiranje vozila.
Moderno projektovanje, visok kvalitet upotrebljenih materijala i završne obrade čine ovu zgradu idealnim mestom za urban i udoban život vas i vaše porodice. Ulica je dobro povezana gradskim prevozom sa svim važnim delovima grada. Bilo da živite brzim, savremenim stilom života, ili želite da uživate u kutku mira, ovo mesto je odličan izbor novog doma.
*Sačuvaj oglas uz belešku i primaj obaveštenja o njihovom pojeftinjenju ili pojavljivanju sličnih
Prikaz poslovnog prostora na mapi
Parkovi u blizini
- Park mira Jelena Šantić4 min
- Karađorđev park7 min
- Svetosavski plato11 min

Obeležja kulture u blizini
- Spomenik Internacionalnim brigadama6 min
- Spomenik žrtvama bombardovanja Beograda6 min
- Spomenik Lamartinu6 min

Škole/Fakulteti/Vrtići u blizini
- Osnovna škola (Privatna osnovna škola Vladislav Petković Dis)3 min
- Srednja škola (Gimnazija Vladislav Petković Dis)3 min
- Vrtić (Dečiji vrtić Beli zeka)4 min
- Fakultet (Univerzitet u Beogradu Stomatološki fakultet)6 min

Zdravlje
- Bolnica (Specijalna hirurška bolnica Hirurgija Dr Drašković)4 min
- Klinika (Poliklinika Medikom)4 min
- Teretana (Yoga studio Jesam)3 min
Hrana i piće
- Prodavnica (Shop&Go)3 min
- Restoran (Restoran Kulinarska tajna)manje od 1 min
- Kafana (Tatar Bar)5 min
Prevoz
- Taksi stajalište (Taxi stanica)3 min
- Autobuska stanica (Neimar)3 min
- Tramvajska stanica (Karađorđev Park)11 min
- Trolejbuska stanica (Mačvanska)12 min
Ostale ustanove
- Banka (Banca Intesa)12 min
- Pošta (Pošta Beograd 23)5 min
Kontakt oglašivača
▾Reklama▾
Stambeni krediti

- Period otplate od
96 -360 meseca
- NKS 4.75%
EKS 5.74%
Fiksna kamatna stopa
- Bez troškova obrade kredita
918 € / mesečno
Saznaj višePogledaj detaljnije i menjaj uslove kreditiranja na
stranici kreditnih kalkulatora
stranici kreditnih kalkulatora
Keš krediti
RSDIznos kredita
Period otplate
13 meseci