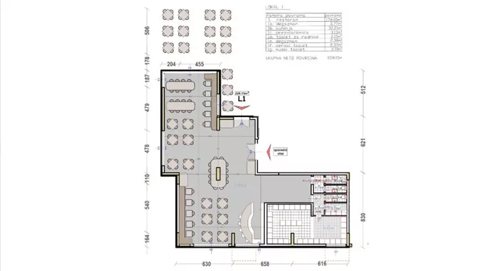
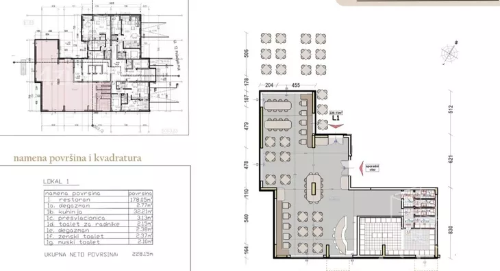
Lokal na prodaju, Trg Kosturnica, 478.800€, 228m²






478.800 €
2.100 € / m2
- Centralno grejanje
- U izgradnji
- Oglas oglašava agencija pod reg. brojem 91
Opis oglasa
AGENCIJA CITY prodaje** izuzetno atraktivan poslovni prosto**r površine 228 m², koji se nalazi u prizemlju moderne stambeno-poslovne zgrade, idealan za restoran, igraonicu ili drugi ugostiteljski sadržaj. Ovaj prostor je idealna prilika za razne delatnosti uključujući klinike, beauty centre, maloprodajne objekte, ugostiteljske objekte kao i razne druge namene takođe i kao odlična investicija za rentiranje. Cena je 2100e/m+ PDV.
Kontakt telefon: 060... (prikaži broj telefona)
*Sačuvaj oglas uz belešku i primaj obaveštenja o njihovom pojeftinjenju ili pojavljivanju sličnih
Prikaz poslovnog prostora na mapi
Parkovi u blizini
- Park minijatura Srbija14 min
- Zabavni park Šarengrad22 min

Obeležja kulture u blizini
- Spomenik kosovskim junacima5 min
- Zgrada Okružnog načelstva6 min
- Spomenik rodoljubima5 min

Škole/Fakulteti/Vrtići u blizini
- Osnovna škola (Osnovna škola Dragomir Marković)2 min
- Srednja škola (Medicinska škola Kruševac)2 min
- Vrtić (Dečiji vrtić Leptirić)5 min
- Fakultet (Visoka škola strukovnih studija za vaspitače)3 min

- Bolnica (Opšta bolnica Kruševac)12 min
- Klinika (Poliklinika Multimedika)5 min
- Teretana (Cafe bar & gym Mr. Hill)40 min
- Prodavnica (Viva 92 diskont)6 min
- Restoran (Restoran El Clasico)3 min
- Kafana (Gradska kafana)8 min
- Autobuska stanica (Rasinski trg)2 min
- Banka (UniCredit Bank)1 min
- Pošta (Pošta Kruševac 4)5 min
Kontakt oglašivača
Krediti OTP banke
Saznaj više
Prikazana rata odnosi se na maksimalni period otplate. Kalkulator je informativnog karaktera.
* Nakon isteka 5 godina, prelazi se na varijabilnu kamatnu stopu

