Kuća na prodaju, Kolubarske bitke, 695.000€, 340m²
OBIĐI 3D TURU












































695.000 €
2.044 € / m2
- Površina: 340 m²
- Površina placa: 4a
- Podno grejanje
- Luksuzno
- Prostorije: ostava, terasa
- Opremljenost: Prazno - interfon
- Uknjiženo
- Oglas oglašava agencija pod reg. brojem 167
- 1 garažno mesto
- 1 parking mesto
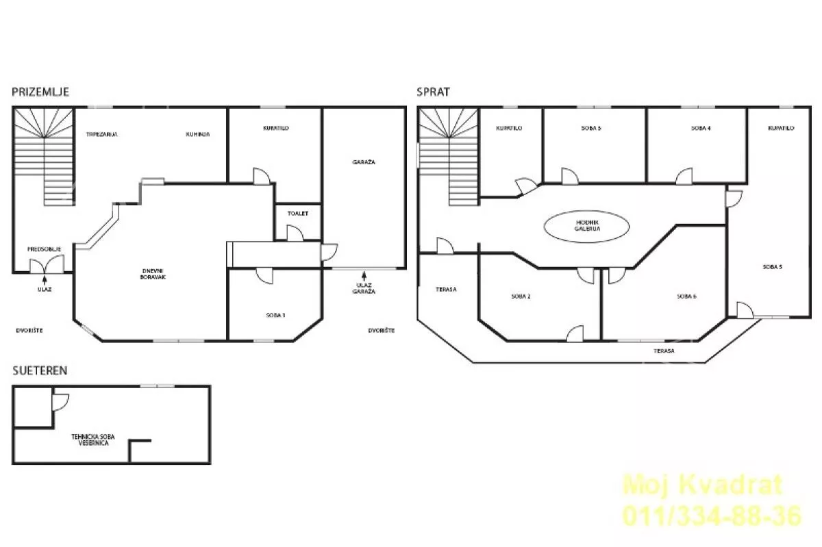
- Objekat poseduje: podrum
Opis oglasa
Zemun, Vojni put II - Kolubarske bitke
kuća, 7.0, 340m2, terasa, PO+PR+1, podno grejanje, interfon, podrum, parking, garaža, struja, voda, asfalt, plac 4a
U ponudi za prodaju odlična sedmosobna kuća koja je pogodna kako za stanovanje, tako i za obavljanje poslovnih aktivnosti (dom za stare, obdanište, ordinacija...).
Podeljena je na tri etaže od kojih je podrumska iskorišćena za tehniku i vešeraj sa ostavom. U prizemlju se nalaze veliki dnevni boravak, kuhinja i trpezarija, spavaća soba i kupatilo sa toaletom. Sprat poseduje pet spavaćih soba i dva kupatila. Iz hodnika i master sobe se izlazi na terasu.
U sklopu kuće nalazi se i prostrana garaža sa kapacitetom za dva vozila, kao i dvorište koje je kompletno obrađeno i sa pripremom za mogući bazen.
Zidovi su urađeni posebnim tehnikama, kuća je ulepšana sa tri unutrašnja vodopada i ogromnim swarovski lusterom i ima odličnu rasvetu. Nameštena je vrlo luksuznim nameštajem i kao takva se i prodaje, sa svom opremom.
Nalazi se na odličnoj lokaciji, u blizini glavnog puta, na asfaltu, sa lakim prilazom u ulici koja je šira od uobičajenih u tom kraju.
Sagrađena kao čvrst objekat komforna je i ugodna za udoban život višečlane porodice.
Uknjižena na 204m2, merena površina iznosi 340m2.
Agencijska provizija 2%
Agent Slobodan Kalaba 065... (prikaži broj telefona) (licenca br.2424)
*Sačuvaj oglas uz belešku i primaj obaveštenja o njihovom pojeftinjenju ili pojavljivanju sličnih
Prikaz kuće na mapi
Parkovi u blizini
- Dečje igralište24 min
- Dečje igralište33 min
- Dečje igralište33 min

Obeležja kulture u blizini
- Ičkova kuća16 min
- Kuća sa sunčanim satom18 min
- Livnica Pantelić18 min

Škole/Fakulteti/Vrtići u blizini
- Osnovna škola (Osnovna škola Sava Šumanović)6 min
- Srednja škola (Srednja politehnička škola Politehnika)7 min
- Vrtić (Dečiji vrtić Radosnica)6 min
- Fakultet (Visoka zdravstvena škola strukovnih studija u Beogradu)9 min

- Bolnica (Hirurška ordinacija Renova)8 min
- Klinika (Poliklinika Dr Sci. Hadžagić)11 min
- Teretana (Teretana Energym)5 min
- Prodavnica (Prodavnica Sunce)3 min
- Restoran (Restoran Stefan)10 min
- Kafana (Kafana Biblioteka kod Majora)24 min
- Taksi stajalište (Taxi stanica)10 min
- Autobuska stanica (Zemun (Novi Grad))7 min
- Banka (Alta Banka Altina)11 min
- Pošta (Pošta Beograd 83)5 min
Kontakt oglašivača
Krediti OTP banke
Saznaj više
Prikazana rata odnosi se na maksimalni period otplate. Kalkulator je informativnog karaktera.
* Nakon isteka 5 godina, prelazi se na varijabilnu kamatnu stopu





















