2-etažna kuća na prodaju, Veselina Čajkanovića, 240.000€, 183m²


















































































240.000 €
1.311 € / m2
Za ovaj oglas se neko interesovao. Pozovi ranije kako ne bi propustio priliku.
- Samostalna kuća
- Etaž: 2
- Površina: 183 m²
- Površina placa: 3.5a
- Grejanje na gas
- Prostorije: kupatilo, terasa
- Opremljenost: internet
- Materijal gradnje: cigla
- Uknjiženo
- Oglas oglašava agencija pod reg. brojem 521
- 1 garažno mesto, garaža u sklopu zgrade
- 3 parking mesta, parking u dvorištu zgrade
- Materijal gradnje: cigla
- Godina izgradnje: 1997.
- Objekat poseduje: dvorište
- Kablovska
- 1 telefonska linija
- Autobuske linije: 18, 26
- Trolejbuske linije: 29
Opis oglasa
1/1 uknjiženo na prodavca, porodična kuća sa dve odvojene stambene jedinice, garažom i velikim potencijalom – mirna lokacija nadomak ulica Vojislava Ilića i Braće Jerković.
Kuća se nalazi u mirnoj ulici sa isključivo porodičnim objektima, što garantuje privatnost i kvalitetan način života. Pozicionirana je na lepoj i uređenoj parceli površine oko 350 m² (Površina placa oko 23m x 15m sa širokim frontom).
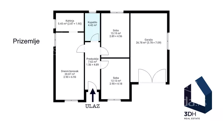
Objekat je građen pre manje od 30 godina i sastoji se od dve etaže – prizemlja i sprata. Zahvaljujući spoljnom stepeništu, kuća je funkcionalno podeljena na dve zasebne stambene jedinice:
• Prizemlje: potpuno funkcionalan stan površine oko 64 m² + garaža 27m2
• Sprat: prostor od 89m2 uknjižene korisne površine (oko 100 m² podne površine) u sivoj fazi, koji pruža odličan potencijal za uređenje po sopstvenim željama uz relativno mala ulaganja
U sklopu kuće nalazi se i prostrana garaža od 27 m², sa kanalom i prirodnim osvetljenjem, idealna za majstore, hobiste ili dodatni radni prostor.
Dvorište je uredno, sa betoniranim prilazom za vozilo.
Opcije grejanja na gas i na čvrsta goriva - veoma ekonomično a efikasno greju čitav objekat.
Lokacija je izuzetno praktična jer se kuća nalazi na svega 2 minuta od ulica Vojislava Ilića i Braće Jerković, autobuske i trolejbuske okretnice, pijace, auto-puta, Lidla, škole, vrtića, obdaništa i svih ostalih sadržaja, komercijalnih i ugostiteljskih objekata koji su dostupni naselju, sa brzom vezom ka svim delovima grada.
Idealna prilika za porodično stanovanje, ali i kao investicija – dve stambene jedinice pružaju i mogućnost kombinacije života i izdavanja.
Ekskluzivno pravo prodaje 3DH REAL ESTATE BEOGRAD, br. u reg. posrednika 521. Provizija koju plaća kupac iznosi 2% prodajne cene nepokretnosti.
*Sačuvaj oglas uz belešku i primaj obaveštenja o njihovom pojeftinjenju ili pojavljivanju sličnih
Prikaz kuće na mapi
Parkovi u blizini
- Park Šumice37 min
- Park Jove Ilića39 min
- Banjička šuma42 min

Obeležja kulture u blizini
- Rodna kuća vojvode Stepe Stepanovića9 min
- Stara mehana u Kumodražu10 min
- Kuća Flašar11 min

Škole/Fakulteti/Vrtići u blizini
- Osnovna škola (Osnovna škola Vladislav Petković Dis)7 min
- Srednja škola (Škola za negu lepote)10 min
- Vrtić (Dečiji vrtić Oblačak)6 min
- Fakultet (Univerzitet Singidunum)10 min

- Bolnica (Klinika za fizikalnu medicinu Saint James)10 min
- Klinika (Poliklinika Equilibrium)11 min
- Teretana (Školica sporta Activity Centar)14 min
- Prodavnica (Šumadija Market)8 min
- Restoran (Restoran Kod baba Živke)8 min
- Kafana (British Pub Rocks)8 min
- Taksi stajalište (Taxi stanica)12 min
- Autobuska stanica (Veselina Čajkanovića)5 min
- Tramvajska stanica (Saobraćajni Fakultet)35 min
- Trolejbuska stanica (Vojislava Ilića)5 min
- Banka (Banca Intesa)7 min
- Pošta (Pošta Beograd 156)14 min
Kontakt oglašivača
Za ovaj oglas se neko interesovao. Pozovi ranije kako ne bi propustio priliku.
Krediti OTP banke
Saznaj više
Prikazana rata odnosi se na maksimalni period otplate. Kalkulator je informativnog karaktera.
* Nakon isteka 5 godina, prelazi se na varijabilnu kamatnu stopu


