2-etažna kuća na prodaju, Margita, 140.000€, 121m²


































140.000 €
1.157 € / m2
Za ovaj oglas se neko interesovao. Pozovi ranije kako ne bi propustio priliku.
- Samostalna kuća
- Etaž: 2
- Površina: 121 m²
- Površina placa: 2.31a
- Grejanje na gas
- Potrebno renoviranje
- Prostorije: kupatilo, toalet, kuhinja, ostava, terasa
- Opremljenost: Polunamešteno - internet, kanalizacija
- Pogled na: ulicu, dvorište
- U procesu uknjižavanja
- Oglas oglašava agencija pod reg. brojem 1473
- Javni parking van zone
- Kanalizacija
- Objekat poseduje: dvorište
- Tip interneta: optički
Opis oglasa
U Pančevu, u kompletno rekonstruisanoj ulici Dimitrija Tucovića, na samo 1km od strogog centra grada, a u neposrednoj blizini svih sadržaja neophodnih za komforan život, nalazi se ova porodična kuća koju smo u prilici da Vam ponudimo. Sazidana na pravilnom, ravnom placu površine 2a31m2, širine fronta 9m, sa svom neophodnom infrastrukturom (struja, voda, kanalizacija, gas), ova kuća Vam nudi odličnu priliku za miran, porodičan život.
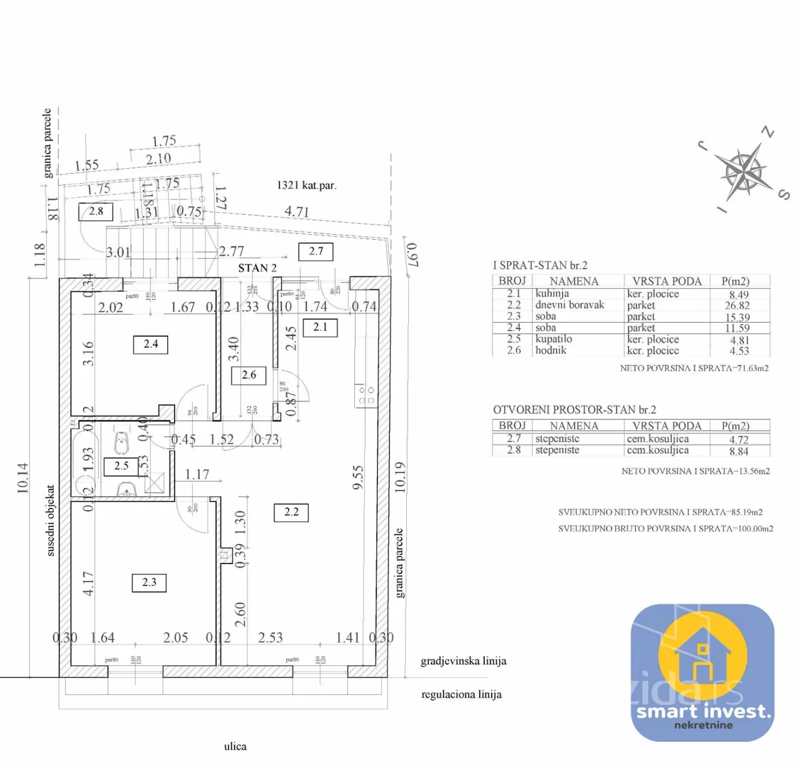
Objekat je spratnosti prizemlje i sprat, a funkcionalno je podeljen na dva stana:
- Prizemlje – stan 1 – jednosoban stan površine 49m2, a sastoji se od:
sobe
kuhinje
kupatila
ostave
- Sprat – stan 2 – trosoban stan površine 72m2, a sastoji se od:
dve odvojene spavaće sobe
dnevnog boravka sa trpezarijom
kuhinje
kupatila
predsoblja
manje terase
Stan u prizemlju je trenutno u funkciji lokala, sa velikim izlogom i vratima ka ulici, što Vam daje mogućnost za obavljanje neke delatnosti. Stepenište i ulaz u stan 2 su sa zadnje strane kuće, gde se stiže prolaskom kroz ajnfort površine 25m2, pa se može koristiti i kao kolski ulaz.
Kuća je u izvornom, pristojno očuvanom stanju, stolarija je drvena, podna obloga je brodski pod, krov je u dobrom stanju (nema prokišnjavanja), zahteva određena ulaganja. Grejanje je na gas, potrebno je uraditi novi razvod i radijatore u kući.
Postupak ozakonjenja je pri kraju, tako da će sve biti uredno uknjiženo, bez tereta i zabeležbi.
Za sve dodatne informacije, stojimo Vam na raspolaganju.
Agencija za nepokretnosti Smart Invest ММ
Broj u registru posrednika: 1473
*Sačuvaj oglas uz belešku i primaj obaveštenja o njihovom pojeftinjenju ili pojavljivanju sličnih
Prikaz kuće na mapi
Parkovi u blizini
- Park na Trgu kralja Petra16 min
- Narodna bašta Pančevo37 min
- Park Barutana41 min

Obeležja kulture u blizini
- Spomen kompleks Stratište10 min
- Spomenik vojvodi Stevanu Šupljikcu11 min
- Zgrada Stare bolnice12 min

Škole/Fakulteti/Vrtići u blizini
- Osnovna škola (Osnovna škola Vasa Živković)6 min
- Srednja škola (Gimnazija Uroš Predić)6 min
- Vrtić (Dečiji vrtić Crvenkapa)2 min
- Fakultet (Stomatološki fakultet Pančevo)15 min

- Bolnica (Bolnica za očne bolesti Pančevo)10 min
- Klinika (Poliklinika MD)8 min
- Teretana (Be Fit Fitness Club)6 min
- Prodavnica (Gomex market)7 min
- Restoran (Restoran Citadela)4 min
- Kafana (Kafana Crni leptir)16 min
- Taksi stajalište (Taxi stanica)21 min
- Autobuska stanica (Preobraženjska Crkva)2 min
- Banka (Eurobank Direktna)5 min
- Pošta (Pošta Pančevo 6)6 min
Kontakt oglašivača
Za ovaj oglas se neko interesovao. Pozovi ranije kako ne bi propustio priliku.
Krediti OTP banke
Saznaj više
Prikazana rata odnosi se na maksimalni period otplate. Kalkulator je informativnog karaktera.
* Nakon isteka 5 godina, prelazi se na varijabilnu kamatnu stopu


