Kuća na prodaju, Milovana Jankovića, 430.000€, 250m²
OBIĐI 3D TURU










































430.000 €
1.720 € / m2
- Površina: 250 m²
- Grejanje na gas
- Prostorije: terasa
- Opremljenost: Prazno - interfon, kanalizacija
- Uknjiženo
- Oglas oglašava agencija pod reg. brojem 167
- 1 garažno mesto
- 1 parking mesto
- Kanalizacija
- Objekat poseduje: lođa
Opis oglasa
Voždovac, Braće Jerković - Milovana Jankovića
kuća, 250m2 (terase i lođa 36m2 + garaža 18m2), NPR+VPR+I+II+PTK, EG/GAS, interfon, parking, garaža, struja, voda, kanalizacija, asfalt, plac 1.5 ari
U neposrednoj blizini TC Stadion, u oazi zelenila, mira i tišine u ponudi je vertikala kuće (kuće u nizu-"generalice"), lamela sa fasadnom crvenom ciglom, parking mestom ispod garaže, garaža, dva nezavisna ulaza u objekat i pripadajućim dvorištem od 1.5 ar.
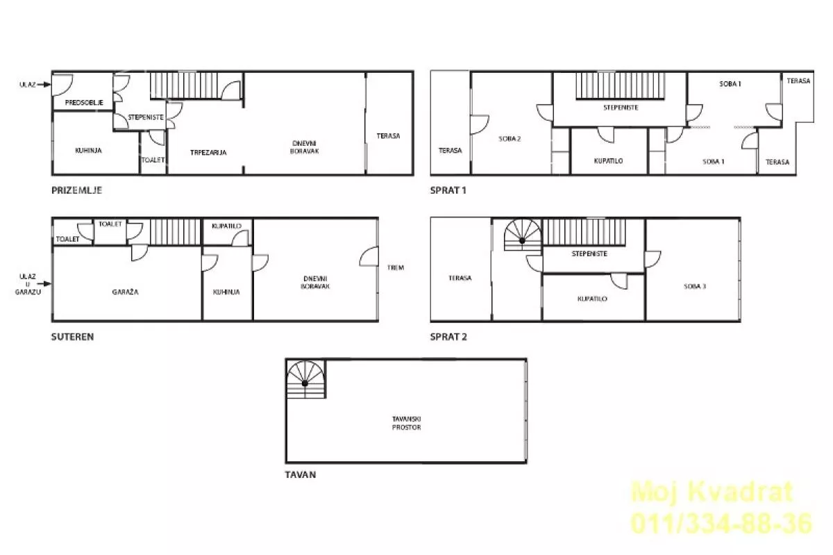
Sastoji se od pet etaža:
NPR - garaža (uknjižena 18m2), parking mesto, garsonjera (18m2 koja nije ušla u knjižni deo kvadrature ali je izvorno deo kuće, poseduje zaseban ulaz iz dvorišta i moguće je izdavati kao poseban prostor), ostava sa kotlarnicom i izlaz na dvorište;
VPR - ulazni deo kuhinja, trpezarija, dnevna soba, kupatilo i lođa (oko 10m2);
I sprat - tri spavaće sobe (svaka ima terasu), kupatilo;
II sprat - spavaća soba, kupatilo i lođa od 20m2;
PTK - 40m2 koje je moguće organizovati za razne namene obzirom da je izvedena sva potrebna instalacija (ne ulazi u knjižni deo kvadrature ali je pripremljena sva dokumentacija za ozakonjenje).
Grejanje i hlađenje je izvedeno preko toplotnih pumpi, i postoji mogućnost priključka na gas i izvod se nalazi u dvorištu objekta.
Kuća je uknjižena na 156m2, garaža na 18m2 i plac na 150m2.
Agencijska provizija 2%.
Agent Slavoljub Saša Dinčić: 060... (prikaži broj telefona) (licenca br. 2912)
*Sačuvaj oglas uz belešku i primaj obaveštenja o njihovom pojeftinjenju ili pojavljivanju sličnih
Prikaz kuće na mapi
Parkovi u blizini
- Park Jove Ilića19 min
- Banjička šuma23 min
- Bajronov park27 min

Obeležja kulture u blizini
- Kuća Flašar12 min
- Spomenik oslobodilaca Beograda 1806. godine12 min
- Spomenik Internacionalnim brigadama13 min

Škole/Fakulteti/Vrtići u blizini
- Osnovna škola (Osnovna škola Branislav Nušić)7 min
- Srednja škola (Škola za negu lepote)8 min
- Vrtić (Dečiji vrtić Zvončica)8 min
- Fakultet (Univerzitet u Beogradu Saobraćajni fakultet)7 min

- Bolnica (Opšta bolnica St Medica)6 min
- Klinika (Poliklinika Voždmedik)7 min
- Teretana (Maximum Effect Fitness & Gym)8 min
- Prodavnica (Maxi Supermarket)6 min
- Restoran (Restoran i pivnica Kod Papka)6 min
- Kafana (Naše kafanče)5 min
- Taksi stajalište (Taxi stanica)6 min
- Autobuska stanica (Meštrovićeva)6 min
- Tramvajska stanica (Visoka Škola elektrotehnike)17 min
- Trolejbuska stanica (Medaković 2)19 min
- Banka (Addiko Bank)9 min
- Pošta (Pošta Beograd 48)10 min
Kontakt oglašivača
Krediti OTP banke
Saznaj više
Prikazana rata odnosi se na maksimalni period otplate. Kalkulator je informativnog karaktera.
* Nakon isteka 5 godina, prelazi se na varijabilnu kamatnu stopu





















