Dvoiposoban stan na prodaju, Železnik, 82.800€, 36m²












82.800 €
2.300 € / m2
Za ovaj oglas se neko interesovao. Pozovi ranije kako ne bi propustio priliku.
- Stan u zgradi
- Podno grejanje
- Novo
- Prostorije: terasa
- Opremljenost: Prazno - interfon
- Oglas oglašava agencija pod reg. brojem 1152
Opis oglasa
Na prodaju stan u okviru novog stambenog kompleksa u Železniku, smeštenog u mirnom i porodičnom delu naselja.
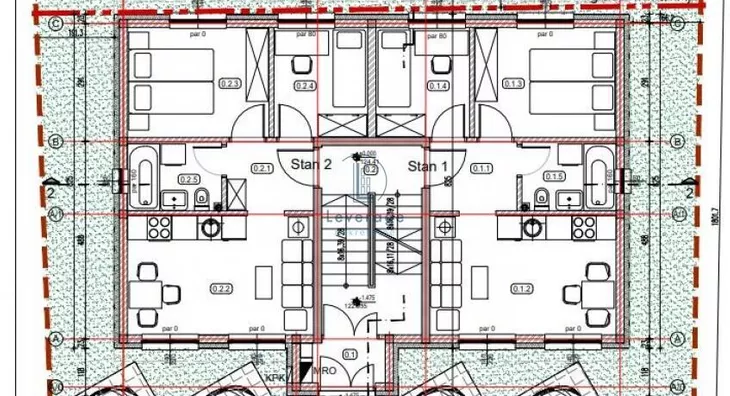
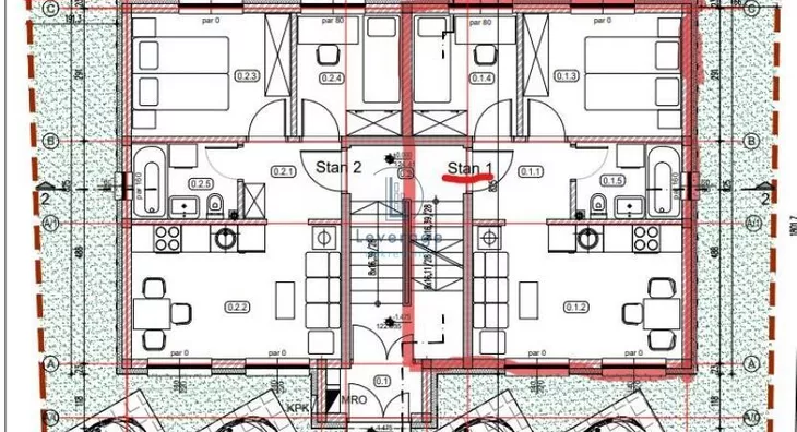
Struktura stana:
36 m²
Dve spavaće sobe
Funkcionalan raspored prostorija
Svetao i moderno projektovan prostor
Uz stan je moguće kupiti:
Parking mesto
Ostava
Objekat je trenutno u izgradnji, a završetak radova planiran je u toku ove godine.
Cena u trenutnoj fazi izgradnje iznosi 2. 300 €/m² + PDV.
Cena je izražena bez PDV-a. Kupac prve nekretnine ima pravo na povrat PDV-a.
Cena se odnosi isključivo na stan, dok se parking mesto i ostava kupuju posebno, po dogovoru.
Idealna prilika kako za rešavanje stambenog pitanja, tako i kao investicija.
Agencijska provizija iznosi 2% od kupoprodajne cene.
Kontaktirajte nas za više informacija.
*Sačuvaj oglas uz belešku i primaj obaveštenja o njihovom pojeftinjenju ili pojavljivanju sličnih
Prikaz stana na mapi
Obeležja kulture u blizini
- Česma izvor Bele vode12 min
- Zgrada Stare vage u Železniku14 min
- Stara mehana Panića u Železniku14 min

Škole/Fakulteti/Vrtići u blizini
- Osnovna škola (Osnovna škola Stefan Dečanski)11 min
- Srednja škola (Tehnička škola Železnik)7 min
- Vrtić (Dečiji vrtić Plavi čuperak)10 min
- Fakultet (Visoka sportska i zdravstvena škola)17 min

- Bolnica (Specijalna bolnica za internu medicinu Nova Vita)15 min
- Klinika (Poliklinika Vaša kuća zdravlja)15 min
- Teretana (Green fitness - fitness klub)11 min
- Prodavnica (Šumadija Market)9 min
- Restoran (Restoran Moć Govora)13 min
- Kafana (Pub Inferno)16 min
- Taksi stajalište (Taxi stanica)14 min
- Autobuska stanica (Milorada Ćirića)2 min
- Banka (OTP banka)4 min
- Pošta (Pošta Beograd 121)4 min
Kontakt oglašivača
Za ovaj oglas se neko interesovao. Pozovi ranije kako ne bi propustio priliku.
Krediti OTP banke
Saznaj više
Prikazana rata odnosi se na maksimalni period otplate. Kalkulator je informativnog karaktera.
* Nakon isteka 5 godina, prelazi se na varijabilnu kamatnu stopu


