Trosoban stan na prodaju, Zahumska, 321.250€, 63m²






321.250 €
5.099 € / m2
- Centralno grejanje
- Renovirano
- Prostorije: kupatilo, terasa
- Opremljenost: Prazno - internet, interfon, klima
- Nije uknjiženo
- Oglas oglašava agencija pod reg. brojem 1447
- 1 garažno mesto
- 1 parking mesto
- Kablovska
- 1 telefonska linija
Opis oglasa
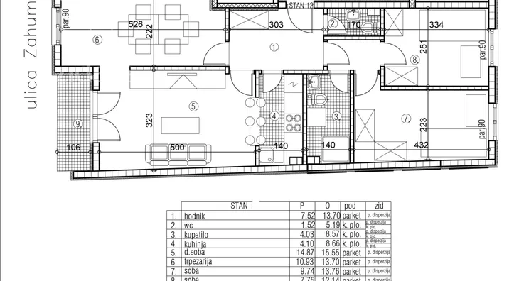
Trosoban stan, na II/V. Visok kvalitet gradnje, fasada kamena vuna, na uličnoj strani fundermaks, prozori drvo-aluminijum sa alu roletnama, sa elektro podizačima. Ulazna vrata Bosal, unutrasnja stolarija farbana, keramika I klase (špansko-italijanska), hrastov parket I klase, stepenište granitno, grejanje cg po potrosnji, lift Kleemann. Parking mesto u garaži sa auto liftom, klackalica. Cena 35.000eur + PDV. Sukcesivno plaćanje. Mogućnost povraćaja PDv-a. U zgradi postoje stanovi različitih struktura i kvadratura. Rok useljenja kraj aprila 2026. godine. Agencijska provizija 2% ,
*Sačuvaj oglas uz belešku i primaj obaveštenja o njihovom pojeftinjenju ili pojavljivanju sličnih
Prikaz stana na mapi
Parkovi u blizini
- Park Ćirila i Metodija6 min
- Park Mike Oklopa10 min
- Park vojvode Petra Bojovića10 min

Obeležja kulture u blizini
- Spomenik Ćirilu i Metodiju4 min
- Spomenik Vuku Karadžiću4 min
- Spomenik Puškinu4 min

Škole/Fakulteti/Vrtići u blizini
- Osnovna škola (Osnovna škola Ivan Goran Kovačić)6 min
- Srednja škola (Srednja škola Arhimed)6 min
- Vrtić (Dečiji vrtić Cvrčak)manje od 1 min
- Fakultet (Univerzitet u Beogradu Građevinski fakultet)5 min

- Bolnica (Specijalna bolnica za oftalmologiju Miloš Klinika)6 min
- Klinika (Poliklinika Vuk Prima)7 min
- Teretana (Fitness studio Centar X)3 min
- Prodavnica (Rasina Market)2 min
- Restoran (Restoran Depo 23)manje od 1 min
- Kafana (Pivnica Oblak u pantalonama)2 min
- Taksi stajalište (Taxi stanica)6 min
- Autobuska stanica (Vukov spomenik)5 min
- Tramvajska stanica (Vukov spomenik)6 min
- Trolejbuska stanica (Podvožnjak)6 min
- Banka (Banca Intesa)3 min
- Pošta (Pošta Beograd 14)4 min
Kontakt oglašivača
Krediti OTP banke
Saznaj više
Prikazana rata odnosi se na maksimalni period otplate. Kalkulator je informativnog karaktera.
* Nakon isteka 5 godina, prelazi se na varijabilnu kamatnu stopu


