Dvoiposoban stan na prodaju, Slobodana Jovanovića, 200.000€, 67m²






































200.000 €
2.985 € / m2
- Centralno grejanje
- Uobičajeno stanje
- Uknjiženo
- Oglas oglašava agencija pod reg. brojem 759
- Zgrada poseduje: lođa
Opis oglasa
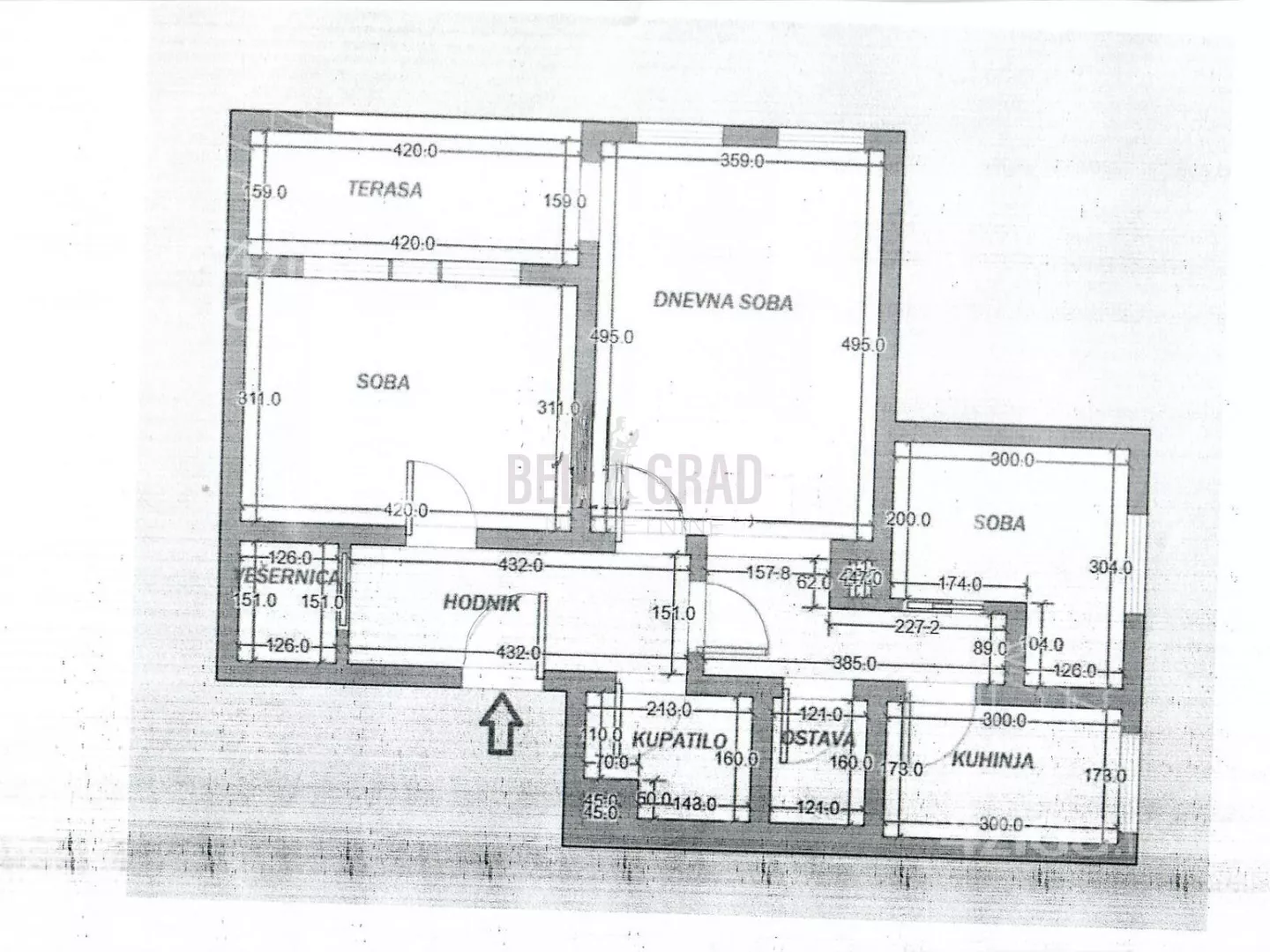
Višnjička banja, Slobodana Jovanovića, Energoprojektove zgrade, crvena fasadna cigla, dvoiposoban, 67m2, sprat 1/4, grejanje CG, lođa, uknjižen. Stan se nalazi u poznatom kompleksu od crvene fasadne cigle koje je osamdesetih godina projektovao i gradio Energoprojekt. Dvostrano je orijentisan i odlično osvetljen. Pozicioniran je na prvom spratu, u četvorospratnici sa urednim ulazom i dobrim prilazom. U okruženju zgrade postoje velike zelene površine, parkovi i prostor za parkiranje. Lokacija je odlično povezana sa centrom grada. Do Trga Republike, linijom 35, potrebno je samo 20 minuta. Prostorije: predsoblje, dnevni boravak sa trpezarijom, dve spavaće sobe, kuhinja, kupatilo, perionica, ostava, velika lođa. Agencijska provizija 2%
*Sačuvaj oglas uz belešku i primaj obaveštenja o njihovom pojeftinjenju ili pojavljivanju sličnih
Prikaz stana na mapi
Parkovi u blizini
- Zvezdarska šuma43 min
- Supernatural park50 min

Obeležja kulture u blizini
- Tripod14 min
- Spomenik Oslobodiocima Beograda17 min
- Kuća Milutina Milankovića18 min

Škole/Fakulteti/Vrtići u blizini
- Osnovna škola (Osnovna škola Milena Pavlović Barili)5 min
- Srednja škola (Srednja tehnička PTT škola)10 min
- Vrtić (Dečiji vrtić Čupko)3 min
- Fakultet (Univerzitet u Beogradu Pravoslavni bogoslovski fakultet)14 min

- Bolnica (Opšta bolnica Medical centar)13 min
- Klinika (Klinika Impuls)6 min
- Teretana (AB Fitness)2 min
- Prodavnica (TSV Diskont)1 min
- Restoran (Restoran Etno bašta)14 min
- Kafana (Local Pub 2)29 min
- Taksi stajalište (Taxi stanica)7 min
- Autobuska stanica (Toplana)3 min
- Tramvajska stanica (Omladinski Stadion)48 min
- Banka (UniCredit Bank)10 min
- Pošta (Pošta Beograd 110)1 min
Kontakt oglašivača
Krediti OTP banke
Saznaj više
Prikazana rata odnosi se na maksimalni period otplate. Kalkulator je informativnog karaktera.
* Nakon isteka 5 godina, prelazi se na varijabilnu kamatnu stopu


