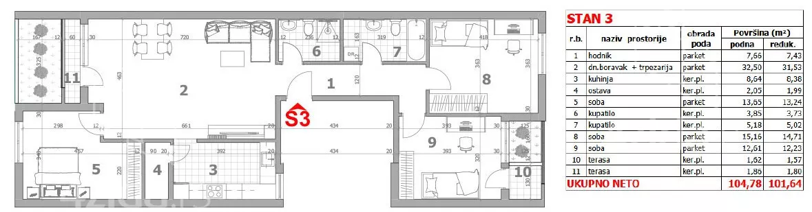
Četvorosoban stan na prodaju, Veternik, 162.300€, 101m²


162.300 €
1.607 € / m2
- Stan u zgradi
- Etažno grejanje
- U izgradnji
- Prostorije: terasa
- Oglas oglašava agencija pod reg. brojem 405
- Godina izgradnje: 2025.
Opis oglasa
NOVI SAD.VETERNIK.ČETVOROSOBAN STAN.PLUS PDV (Svet nekretnine, Novi Sad, Reg. br. 405)
*Sačuvaj oglas uz belešku i primaj obaveštenja o njihovom pojeftinjenju ili pojavljivanju sličnih
Prikaz stana na mapi
Parkovi u blizini
- Park Bistrica47 min

Obeležja kulture u blizini
- Mađarska reformatorska crkva sa zgradom parohijskog doma13 min
- Dvorac Hadik-Kotek14 min
- Jodna Banja19 min

Škole/Fakulteti/Vrtići u blizini
- Osnovna škola (Osnovna škola Mihajlo Pupin)5 min
- Srednja škola (Privatna medicinska škola Dositej Obradović)8 min
- Vrtić (Dečiji vrtić Zlatno sunce)10 min
- Fakultet (Protestantski teološki fakultet)13 min

- Bolnica (Opšta bolnica New Hospital)10 min
- Klinika (Poliklinika Consilium)13 min
- Teretana (Fitness studio Top Form)8 min
- Prodavnica (TSV Diskont)3 min
- Restoran (Restoran Na kraj sela)31 min
- Kafana (Pivoteka 77)50 min
- Taksi stajalište (Taxi prevoz Novi Sad)48 min
- Autobuska stanica (Veternik - Stadion)1 min
- Banka (Poštanska štedionica)5 min
- Pošta (Pošta Veternik 21203)4 min
Kontakt oglašivača
Stambeni krediti

- Period otplate od
96 -360 meseca
- NKS 4.75%
EKS 5.74%
Fiksna kamatna stopa
- Bez troškova obrade kredita
stranici kreditnih kalkulatora
Keš krediti
Period otplate
13 meseci




















