Jednoiposoban stan na prodaju, Vašarište, 82.500€, 45m²






82.500 €
1.833 € / m2
- Stan u zgradi
- Grejanje na gas
- U izgradnji
- Prostorije: kupatilo, terasa
- U procesu uknjižavanja
- Oglas oglašava agencija pod reg. brojem 1918
- 1 garažno mesto, garaža u sklopu zgrade
- 1 lift
Opis oglasa
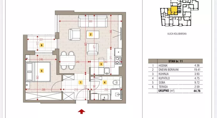
Prodaje se jednoiposoban stan u izgradnji na mirnoj lokaciji u blizini Velikog parka, Studentskog doma, srednjih škola i Kliničkog centra. Odličan kvalitet gradnje i završnih radova, grejanje podno, na gas. Planiran rok za izgradnju je april 2027.godine. Cena stana je bez uračunatog poreza a kupac prve nekretnine se može osloboditi poreza na prenos apsolutnih prava od 2,5%. Stan se nalazi na visokom prizemlju i odličan je i kao investicija za izdavanje a i za porodično stanovanje.
*Sačuvaj oglas uz belešku i primaj obaveštenja o njihovom pojeftinjenju ili pojavljivanju sličnih
Prikaz stana na mapi
Kontakt oglašivača
Krediti OTP banke
Saznaj više
Prikazana rata odnosi se na maksimalni period otplate. Kalkulator je informativnog karaktera.
* Nakon isteka 5 godina, prelazi se na varijabilnu kamatnu stopu


