Četvorosoban stan na prodaju, Ustanička, 598.000€, 155m²
















































598.000 €
3.858 € / m2
- Penthaus
- Novo
- Prostorije: kuhinja, terasa
- Opremljenost: Namešteno - interfon, TV, veš mašina, sudo mašina, frižider, rerna, ležaj, plakar, kanalizacija
- Uknjiženo
- Oglas oglašava agencija pod reg. brojem 1152
- 1 garažno mesto
- 1 lift
- Kanalizacija
Opis oglasa
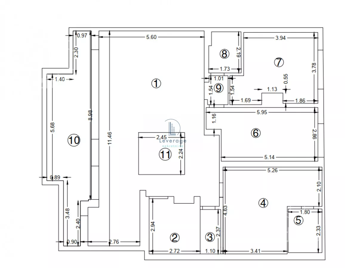
Na prodaju ekskluzivan penthaus površine 155 m2, grejne površine 126 m2, projektovan za vrhunski komfor i privatnost. Stan je četvorosoban po strukturi i izuzetno funkcionalnog rasporeda. Dnevni deo je prostran i svetao, dok je spavaći deo organizovan kao poseban blok koji pruža maksimalan mir.
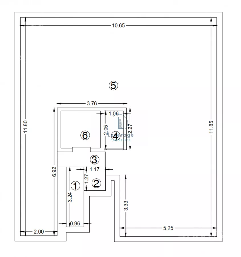
Posebna pogodnost ovog penthausa je privatan izlaz iz lifta direktno u stan, kao i na terasu. Terasa je površine 111.74 m2 i poseduje toalet i sve instalacije za kuhinju, idealno za lounge zonu, uz ugradne grejače za grejanje na terasi za korišćenje tokom cele godine.
Visina plafona je 2.75 m, a stan je opremljen italijanskom keramikom vrhunskog kvaliteta, elegantni Ševron parket, ugrađena je troslojna stolarija za maksimalnu zvučnu i termoizolaciju, grejanje i hlađenje je obezbeđeno toplotnim pumpama sa fan coil sistemom za grejanje i hlađenje, kao i podno grejanje. Instaliran je video-nadzor i alarmni sistem kako u stanu, tako i u garaži.
Stan se prodaje sa celokupnim nameštajem uz doplatu. Ovaj penthaus predstavlja savršen spoj luksuza, privatnosti i savremenih tehničkih rešenja, uz retku pogodnost privatnog izlaza iz lifta i savršenu funkcionalnost terase. Idealan je za kupce koji traže nekretninu najvišeg standarda sa jedinstvenim konceptom stanovanja.
Uz stan se prodaju i 3 garažna mesta površine 14 m2 po ceni od 75.000 eur.
Agencijska provizija iznosi 2% od kupoprodajne cene.
Kontaktirajte nas za više informacija.
*Sačuvaj oglas uz belešku i primaj obaveštenja o njihovom pojeftinjenju ili pojavljivanju sličnih
Prikaz stana na mapi
Parkovi u blizini
- Park Šumice10 min
- Park Urbani džep20 min
- Park Slavujev potok24 min

Obeležja kulture u blizini
- Pašina česma7 min
- Kuća Flašar9 min
- Osnovna škola Kralj Petar II Karađorđević10 min

Škole/Fakulteti/Vrtići u blizini
- Osnovna škola (Osnovna škola Janko Veselinović)2 min
- Srednja škola (Arhitektonska tehnička škola)5 min
- Vrtić (Dečiji vrtić 1001 radost)4 min
- Fakultet (Visoka građevinsko-geodetska škola Beograd)6 min

- Bolnica (MedicOne - specijalna bolnica za plastičnu, estetsku i rekonstruktivnu hirurgiju)6 min
- Klinika (Poliklinika Equilibrium)8 min
- Teretana (Sfinga Gym & Spa)5 min
- Prodavnica (Candy shop - prodaja testenina, kolača i slatkiša)4 min
- Restoran (Restoran Mića)6 min
- Kafana (Pivnica Berza piva)5 min
- Taksi stajalište (Taxi stanica)3 min
- Autobuska stanica (Hotel Srbija)2 min
- Tramvajska stanica (Pijaca Zvezdara)17 min
- Trolejbuska stanica (Rimska)6 min
- Banka (Narodna banka Srbije)2 min
- Pošta (Pošta Beograd 151)5 min
Kontakt oglašivača
Krediti OTP banke
Saznaj više
Prikazana rata odnosi se na maksimalni period otplate. Kalkulator je informativnog karaktera.
* Nakon isteka 5 godina, prelazi se na varijabilnu kamatnu stopu


