Dvosoban stan na prodaju, Učiteljsko Naselje, 117.810€, 33m²




117.810 €
3.570 € / m2
- Podno grejanje
- Renovirano
- Prostorije: kupatilo, terasa
- Opremljenost: Prazno - internet, interfon
- Oglas oglašava agencija pod reg. brojem 1347
- 1 lift
- Kablovska
- 1 telefonska linija
Opis oglasa
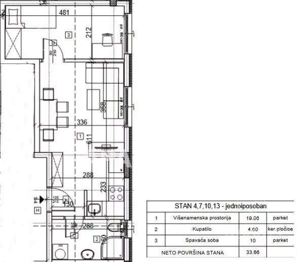
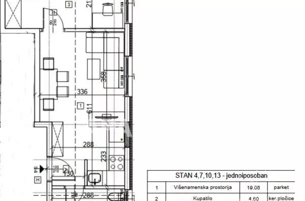
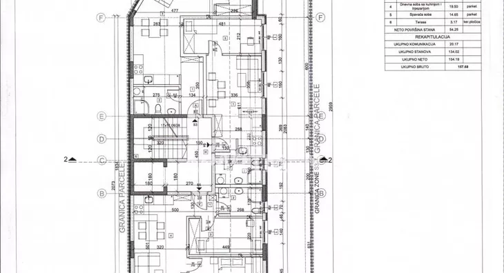
Lepa, kvalitetna petospratna zgrada u početnoj fazi izgradnje, sa liftom, odličnog kvaliteta gradnje, nalazi se na Opštini Zvezdara u “Učiteljskom naselju” u blizini TC “Aviv park”, u mirnom stambenom naselju u okruženju novoizgrađenih zgrada i pretežno privatnih kuća. Ulica je mirna, bez većeg prometa, a u neposrednoj blizini se nalaze svi relevantni objekti za nesmetano funkcionisanje života. Pristup ulazu u zgradu je sa ulice, takođe u obezbeđenu garažu. Stan ukupne projektovane kvadrature 33.66m2 koji je predmet prodaje nalazi se na trećem spratu, po strukturi jednoiposoban. Sastoji se iz dnevnog boravka spojenog sa trpezarijom i kuhinjom, zasebne spavaće sobe i kupatila. Grejanje je podno snabdeveno preko sopstvenog kotla na struju, takođe grejanje i hlađenje putem ugrađenog inverter klima uređaja. Spoljna stolarija PVC, sigurnosna vrata, podovi su pokriveni keramikom zbog podnog grejanja, odlična keramika i sanitarije. Dostupni stanovi identične kvadrature na svim spratovima. U zgradi su dostupna garažna mesta za prometovanje. Izražena cena stana je cena sa uračunatim PDV-om. Stan se prodaje BEZ PROVIZIJE za kupca. Za više informacija otvoreni smo za Vaš poziv. Kontakt telefon 060... (prikaži broj telefona) . Hvala Vam na pregledu oglasa. Broj agencije u Registru posrednika 1347. Mapa je informativnog karaktera, ne prikazuje tačnu lokaciju nekretnine. Agencijska provizija 2%
*Sačuvaj oglas uz belešku i primaj obaveštenja o njihovom pojeftinjenju ili pojavljivanju sličnih
Prikaz stana na mapi
Parkovi u blizini
- Dečje igralište31 min
- Park Jelovac32 min
- Park Kalvarija32 min

Obeležja kulture u blizini
- Hangar Starog aerodroma na Novom Beogradu7 min
- Spomenik Žambilu Zambajevu10 min
- Stara osnovna škola10 min

Škole/Fakulteti/Vrtići u blizini
- Osnovna škola (Savremena osnovna škola)6 min
- Srednja škola (Privatni srednjoškolski obrazovni centar Smartanac)9 min
- Vrtić (Dečiji vrtić Veseli brodić)5 min
- Fakultet (Visoka tehnička škola strukovnih studija Beograd)8 min

- Bolnica (Opšta bolnica Euromedik)6 min
- Klinika (Poliklinika Dr Sci. Hadžagić)6 min
- Teretana (Teretana Gymnastics)4 min
- Prodavnica (Market Korpa)4 min
- Restoran (Restoran Recept)8 min
- Kafana (Pub Senat)13 min
- Taksi stajalište (Taxi stanica)6 min
- Autobuska stanica (Tošin Bunar)1 min
- Tramvajska stanica (Sava Centar)34 min
- Banka (Halkbank)4 min
- Pošta (Pošta Beograd 71)4 min
Kontakt oglašivača
Krediti OTP banke
Saznaj više
Prikazana rata odnosi se na maksimalni period otplate. Kalkulator je informativnog karaktera.
* Nakon isteka 5 godina, prelazi se na varijabilnu kamatnu stopu


