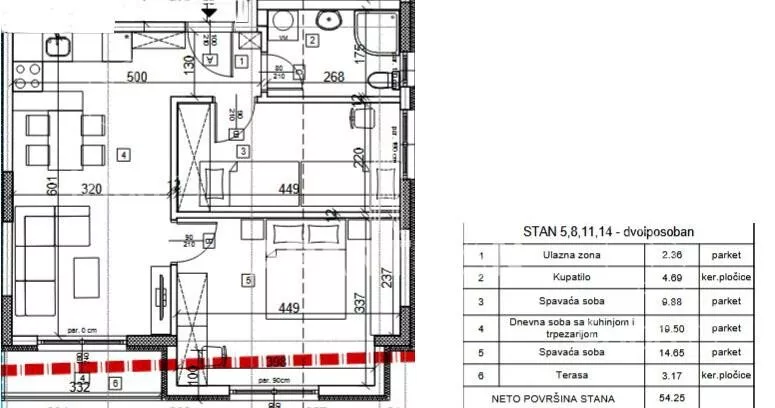
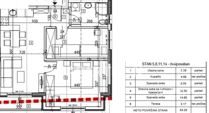
Dvoiposoban stan na prodaju, Učiteljsko Naselje, 179.025€, 54m²




179.025 €
3.315 € / m2
- Podno grejanje
- Renovirano
- Prostorije: kupatilo
- Opremljenost: Prazno - internet, interfon
- Oglas oglašava agencija pod reg. brojem 1347
- 1 lift
- Kablovska
- 1 telefonska linija
Opis oglasa
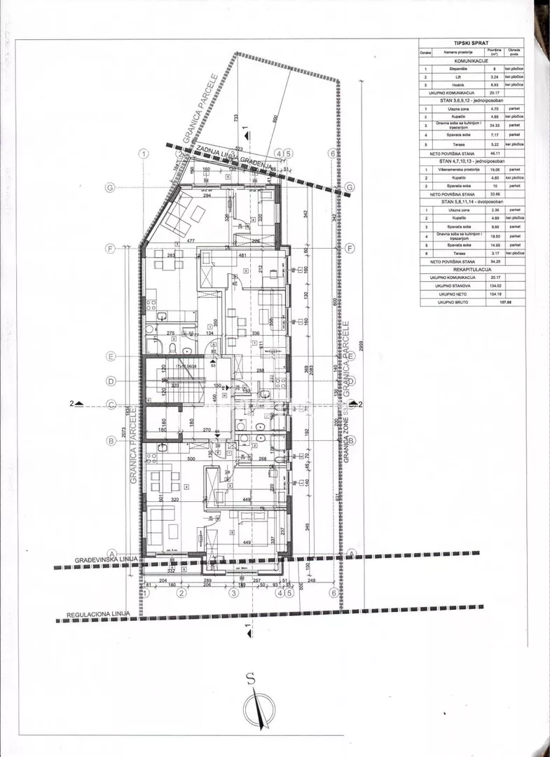
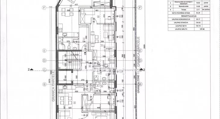
Lepa, kvalitetna petospratna zgrada u početnoj fazi izgradnje, sa liftom, odličnog kvaliteta gradnje, nalazi se na Opštini Zvezdara u “Učiteljskom naselju” u blizini TC “Aviv park”, u mirnom stambenom naselju u okruženju novoizgrađenih zgrada i pretežno privatnih kuća. Ulica je mirna, bez većeg prometa, a u neposrednoj blizini se nalaze svi relevantni objekti za nesmetano funkcionisanje života. Pristup ulazu u zgradu je sa ulice, takođe u obezbeđenu garažu. Stan ukupne projektovane kvadrature 54.25m2 koji je predmet prodaje nalazi se na trećem spratu, po strukturi dvoiposoban. Sastoji se iz ulaznog hodnika, dnevnog boravka spojenog sa trpezarijom i kuhinjom, dve zasebne spavaće sobe, kupatila i terase. Grejanje je podno snabdeveno preko sopstvenog kotla na struju, takođe grejanje i hlađenje putem ugrađenog inverter klima uređaja. Spoljna stolarija PVC, sigurnosna vrata, podovi su pokriveni keramikom zbog podnog grejanja, odlična keramika i sanitarije. Dostupni stanovi identične kvadrature na svim spratovima. U zgradi su dostupna garažna mesta za prometovanje. Izražena cena stana je cena sa uračunatim PDV-om. Stan se prodaje BEZ PROVIZIJE za kupca. Za više informacija otvoreni smo za Vaš poziv. Kontakt telefon 060... (prikaži broj telefona) . Hvala Vam na pregledu oglasa. Broj agencije u Registru posrednika 1347. Mapa je informativnog karaktera, ne prikazuje tačnu lokaciju nekretnine. Agencijska provizija 2%
*Sačuvaj oglas uz belešku i primaj obaveštenja o njihovom pojeftinjenju ili pojavljivanju sličnih
Prikaz stana na mapi
Parkovi u blizini
- Park Šumice20 min
- Park Slavujev potok25 min
- Park Urbani džep27 min

Obeležja kulture u blizini
- Pašina česma5 min
- Trećepozivačka česma11 min
- Kuća Flašar13 min

Škole/Fakulteti/Vrtići u blizini
- Osnovna škola (Osnovna škola Ćirilo i Metodije)5 min
- Srednja škola (Građevinska tehnička škola Branko Žeželj)5 min
- Vrtić (Dečiji vrtić Žubor)4 min
- Fakultet (Visoka građevinsko-geodetska škola Beograd)5 min

- Bolnica (MedicOne - specijalna bolnica za plastičnu, estetsku i rekonstruktivnu hirurgiju)9 min
- Klinika (Poliklinika i laboratorija LaboMedica)10 min
- Teretana (Body building i fitness klub Ahilej)4 min
- Prodavnica (Maxi Supermarket)3 min
- Restoran (Restoran Đerdan)3 min
- Kafana (Pivnica Žirafa 23)12 min
- Taksi stajalište (Taxi stanica)5 min
- Autobuska stanica (Učiteljsko Naselje)4 min
- Tramvajska stanica (Dr Velizara Kosanovića)13 min
- Trolejbuska stanica (Učiteljsko Naselje)3 min
- Banka (Poštanska štedionica)6 min
- Pošta (Pošta Beograd 21)3 min
Kontakt oglašivača
Krediti OTP banke
Saznaj više
Prikazana rata odnosi se na maksimalni period otplate. Kalkulator je informativnog karaktera.
* Nakon isteka 5 godina, prelazi se na varijabilnu kamatnu stopu


