Dvoiposoban stan na prodaju, Vojvođanska, 220.704€, 67m²








220.704 €
3.294 € / m2
- Stan u zgradi
- Centralno grejanje
- U izgradnji
- U procesu uknjižavanja
- Oglas oglašava agencija pod reg. brojem 52
Opis oglasa
Stan se nalazi u objektu u izgradnji pod nazivom "V Park 2" i predstavlja nastavak stambeno-poslovnog kompleksa koji je završen 2023. u Vojvođanskoj ulici na Novom Beogradu. Ulica je prostrana, sa po tri trake u oba smera, sa brzim pristupom autoputu, a brojne autobuske linije značajno olakšavaju povezanost sa ostalim delovima grada.
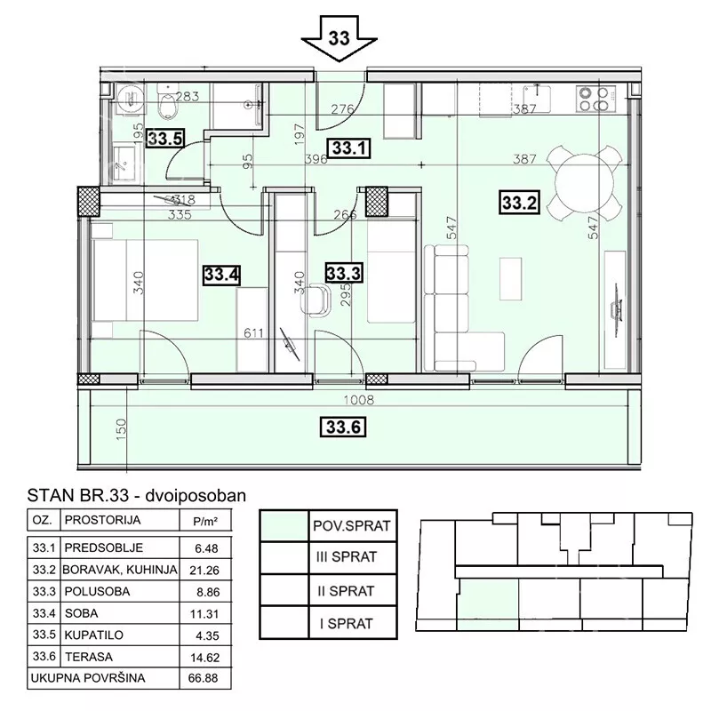
Ovaj dvoiposobni stan je jedini preostali stan u Lameli 1 koja je orijentisana prema Vojvođanskoj ulici sa 36 stanova ukupno. Cena je 3300 eur/m2 + PDV (kupci prvog stana imaju mogućnost povraćaja PDV-a u skladu sa zakonom)
Objekat ima zajedničku podzemnu garažu sa zasebnim ulazima za nivo -1 i -2 i sa ukupno 90 klasičnih parking mesta minimum dimenzija 2.5x5 metara. Cena parking mesta je 20.000,00€ + PDV.
U neposrednoj blizini nalaze se OŠ, dečiji vrtić, benzinska stanica, 2 LIDL marketa, marketi Sunce i Aman, Crkva Svetog Đorđa i mnoštvo parkova i zelenih površina, što vam daje mogućnost lakše svakodnevne životne organizacije. Veoma blizu su i pijaca 44 Blok, šoping centri Immo centar i Delta City, kao i poslovni kompleks Airport city, Savski kej i sportski centar “11 april”, dom zdravlja blok 44 i КBC Bežanijska kosa.
Pouzdan investitor sa velikim brojem izgrađenih objekata, visok kvalitet gradnje, poštovanje rokova i uredna dokumentacija su preporuka za kupca.
Završetak izgradnje objekta - decembar 2026. godine.
Direktna prodaja, bez provizije za kupca!
*Sačuvaj oglas uz belešku i primaj obaveštenja o njihovom pojeftinjenju ili pojavljivanju sličnih
Prikaz stana na mapi
Parkovi u blizini
- Park Republike Argentine7 min
- Park Blok 7025 min
- Dečje igralište35 min

Obeležja kulture u blizini
- Hangar Starog aerodroma na Novom Beogradu6 min
- Česma8 min
- Stara osnovna škola5 min

Škole/Fakulteti/Vrtići u blizini
- Osnovna škola (Osnovna škola Milan Rakić)5 min
- Srednja škola (Srednja škola Kosta Cukić)7 min
- Vrtić (Dečiji vrtić Ljubičica)5 min
- Fakultet (Fakultet za pravo, bezbednost i menadžment Konstantin Veliki)9 min

- Bolnica (Opšta bolnica Avala)7 min
- Klinika (Poliklinika As Medicus Biorezonanca)5 min
- Teretana (Arena No1 Fitness centar)14 min
- Prodavnica (Market Batos)3 min
- Restoran (Kafana Stara Bežanija)6 min
- Kafana (Kafana Balkan Ekspres)10 min
- Taksi stajalište (Taxi stanica)15 min
- Autobuska stanica (Dušana Vukasovića)2 min
- Banka (Poštanska štedionica)6 min
- Pošta (Pošta Beograd 94)7 min
Kontakt oglašivača
Krediti OTP banke
Saznaj više
Prikazana rata odnosi se na maksimalni period otplate. Kalkulator je informativnog karaktera.
* Nakon isteka 5 godina, prelazi se na varijabilnu kamatnu stopu


