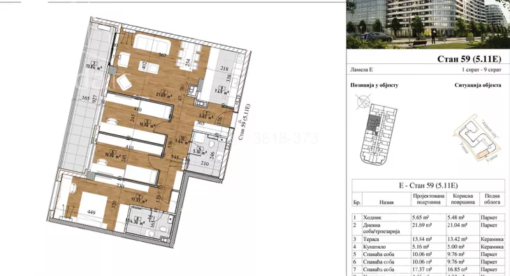
Četvorosoban stan na prodaju, Tošin bunar, 336.152€, 98m²
















336.152 €
3.430 € / m2
- Stan u zgradi
- Novo
- Prostorije: terasa
- Opremljenost: interfon, kanalizacija
- Oglas oglašava agencija pod reg. brojem 6
- 1 lift
- Kanalizacija
Opis oglasa
Pupinova palata na Novom Beogradu oslikava idealan spoj materijalizacije premium kvaliteta i najsavremenije tehnologije. Atraktivan izgled i moderan dizajn ovog objekta izuzetno doprinose funkcionalnosti i maksimalnoj iskorišćenosti prostora i lokacije. Odlično poslovno okruženje, koje podrazumeva blizinu nekih od najvećih biznis parkova, Pupinovu palatu čini optimalnim izborom za poslovni prostor.
Pored velikog biznis potencijala, Pupinova palata na Novom Beogradu nudi komforan i funkcionalan životni prostor, stanove namenjene svima onima koji teže sadržajnom i kvalitetnom životu u atraktivnom i dinamičnom delu prestonice.
Objekat se nalazi 50m od Airport City u neposrednoj blizini Delta City.
Cena bez PDV-a
*Sačuvaj oglas uz belešku i primaj obaveštenja o njihovom pojeftinjenju ili pojavljivanju sličnih
Prikaz stana na mapi
Parkovi u blizini
- Dečje igralište27 min
- Park Kalvarija34 min
- Park Jelovac34 min

Obeležja kulture u blizini
- Hangar Starog aerodroma na Novom Beogradu6 min
- Stara osnovna škola9 min
- Spomenik Žambilu Zambajevu13 min

Škole/Fakulteti/Vrtići u blizini
- Osnovna škola (Savremena osnovna škola)5 min
- Srednja škola (Tehnička škola Novi Beograd)7 min
- Vrtić (Dečiji vrtić Mladenac)5 min
- Fakultet (Univerzitet u Beogradu Fakultet dramskih umetnosti)9 min

- Bolnica (Opšta bolnica Avala)6 min
- Klinika (Poliklinika Dr Sci. Hadžagić)8 min
- Teretana (Fitness centar Maximus Fitness)4 min
- Prodavnica (Market Venera)3 min
- Restoran (Restoran Recept)3 min
- Kafana (Pub Senat)15 min
- Taksi stajalište (NBA Taxi)9 min
- Autobuska stanica (Milutina Milankovića)3 min
- Tramvajska stanica (Blok 23)41 min
- Banka (OTP banka)6 min
- Pošta (Pošta Beograd 99)7 min
Kontakt oglašivača
Stambeni krediti

- Period otplate od
96 -360 meseca
- NKS 4.75%
EKS 5.74%
Fiksna kamatna stopa
- Bez troškova obrade kredita
stranici kreditnih kalkulatora
Keš krediti
Period otplate
13 meseci
