Trosoban stan na prodaju, Telep, 313.500€, 127m²










































313.500 €
2.469 € / m2
- Stan u zgradi
- Podno grejanje
- U izgradnji
- Prostorije: terasa
- Opremljenost: Prazno - internet, interfon, klima
- Oglas oglašava agencija pod reg. brojem 1405
- 1 parking mesto
- Zgrada poseduje: video nadzor
- Kablovska
- 1 telefonska linija
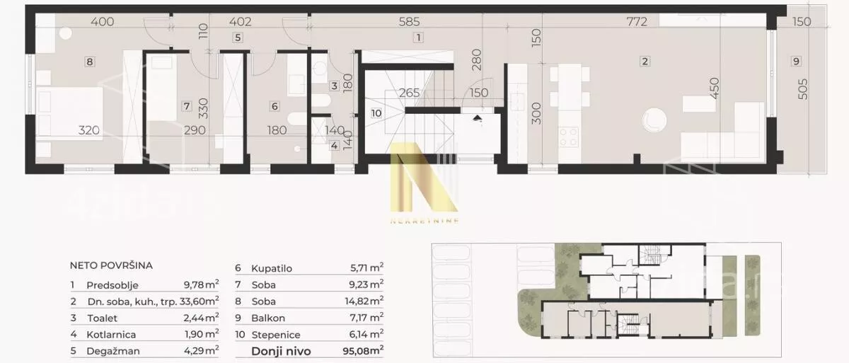
Opis oglasa
Objekat u svom sastavu ima 6 prostranih stanova, raspoređenih u 2 odvojena ulaza. U dvorištu se nalazi 8 parking mesta namenjenih isključivo stanarima. Građena od kvalitetnih materijala, sa modernim dizajnom i pažnjom na detalje, nudi spoj komfora, estetike i praktičnosti u mirnom okruženju.
Uz stan se dobija 1 parking mesta i krovna terasa, koja nije ušla u kvadraturu stana.
Lokacija idealna za porodično stanovanje, ako tražite stambeni prostor 2min hoda do škole, vrtića, fitnes centra uz istovremeno tišinu i komfor koji pruža kuća, onda je ovo pravi izbor za vas.
-spoljna stolarija PVC sa trostrukim staklom, ALU termoizolovana roletna, sa komarnicima.
-unutrašnja stolarija-vrata visine 220cm, magnetna brava. Sigurnosna ulazna vrata, keramičke pločice I klase, višeslojni parket-tarket velikih dimenzija.
-sanitarije: "LAUFEN", "VILLEROY BOCH", konzole wc šolje, ugradni wc kotlići "GEBERIT", "GROHE", konzolni umivaonici.
-2 klima uređaja u svakom stanu.
-podno grejanje, gasni priključak za svaki stan posebno, gasni kondenzacioni kombinovani kotao.
-elektro-galanterija: "ALING CONEL EXPERIENCE"
-fasadni zid-termo(klima) blok i demit fasada ukupne debljine 32cm.
Izražena cena je sa uračunatim PDV-om. Za kupce prve nekretnine moguć povrat PDV-a.
Rok završetka oktobar 2026. godina.
Za sve dodatne informacije i zakazivanje razgledanja nekretnine obratiti se na broj telefona
066... (prikaži broj telefona)
Katarina Birinji, broj licence 4091, Novi Sad, Bulevar Evrope 44, N-NEKRETNINE, upisan u registar posrednika 1405.
*Sačuvaj oglas uz belešku i primaj obaveštenja o njihovom pojeftinjenju ili pojavljivanju sličnih
Prikaz stana na mapi
Parkovi u blizini
- Park Bistrica27 min
- Futoški park31 min
- Limanski park35 min

Obeležja kulture u blizini
- Jodna Banja12 min
- Dvorac Eđšeg13 min
- Kuća iz 1797. godine18 min

Škole/Fakulteti/Vrtići u blizini
- Osnovna škola (Osnovna škola Jožef Atila)9 min
- Srednja škola (Gimnazija Laza Kostić)5 min
- Vrtić (Dečiji vrtić Zemlja čuda)6 min
- Fakultet (Protestantski teološki fakultet)7 min

- Bolnica (Ginekološka bolnica Ferona)2 min
- Klinika (Poliklinika Consilium)12 min
- Teretana (EMS Studio Maxifit)5 min
- Prodavnica (Lole dućan)5 min
- Restoran (Caffe restoran Rosetto)7 min
- Kafana (Atos pub)5 min
- Taksi stajalište (Taxi prevoz Novi Sad)18 min
- Autobuska stanica (Feješ Klare - Pravoslavna crkva)3 min
- Banka (Erste Bank Ekspres ekspozitura)6 min
- Pošta (Pošta Novi Sad 21124)7 min
Kontakt oglašivača
Krediti OTP banke
Saznaj više
Prikazana rata odnosi se na maksimalni period otplate. Kalkulator je informativnog karaktera.
* Nakon isteka 5 godina, prelazi se na varijabilnu kamatnu stopu






















