Dvosoban stan na prodaju, Kotorska 2, 115.950€, 41m²






















115.950 €
2.828 € / m2
- Stan u zgradi
- Grejanje na gas
- U izgradnji
- Prostorije: kupatilo, terasa
- Pogled na: ulicu
- U procesu uknjižavanja
- Kupovina direktno od vlasnika
- Javni parking van zone
- 1 lift
- Godina izgradnje: 2026.
- Autobuske linije: 12
Opis oglasa
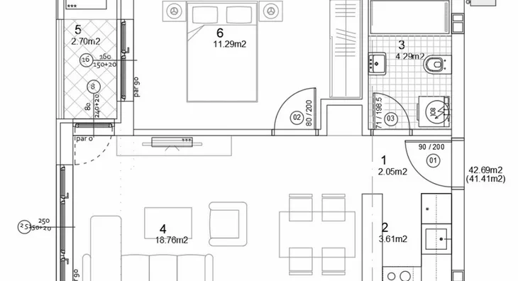
Prodaje se dvosoban stan od 41,41 m², na Telepu u blizini Limana, u ul.Kotorska br.2. na prvom ulazu, prvi sprat, sa pogledom na ulicu.
Stan je u zavrsnim unutrasnjim radovima, useljiv u maju 2026. godine.Grejanje je na gas, sa malim rezijama.
Stan se prodaje u izgradnji, tako da se za lica prve nekretnine, vrsi povrat PDV-a.
Stan ne prodaje agencija, nema nikakve provizije prilikom kupovine.
U zgradi se moze kupiti parking mesto ili garaza u suterenu, gde se ide liftom iz garaze.
Cena:115950 eura
2800 eu/m²
Tel. 063... (prikaži broj telefona) .
*Sačuvaj oglas uz belešku i primaj obaveštenja o njihovom pojeftinjenju ili pojavljivanju sličnih
Prikaz stana na mapi
Parkovi u blizini
- Futoški park33 min
- Limanski park33 min
- Park Bistrica35 min

Obeležja kulture u blizini
- Dvorac Eđšeg8 min
- Galerija Matice srpske8 min
- Jodna Banja9 min

Škole/Fakulteti/Vrtići u blizini
- Osnovna škola (Osnovna škola Jožef Atila)12 min
- Srednja škola (Gimnazija Laza Kostić)4 min
- Vrtić (Dečiji vrtić Dunavski cvet)10 min
- Fakultet (Protestantski teološki fakultet)4 min

- Bolnica (Ginekološka bolnica Ferona)13 min
- Klinika (Poliklinika HealthMedic)4 min
- Teretana (Fitness club Total Gym)18 min
- Prodavnica (Kimi-Tex - voće i povrće)6 min
- Restoran (Restoran Vonamor)12 min
- Kafana (Atos pub)13 min
- Taksi stajalište (Gradski Taxi)21 min
- Autobuska stanica (Feješ Klare - Kotorska)7 min
- Banka (Banca Intesa)4 min
- Pošta (Pošta Novi Sad 21124)7 min
Kontakt oglašivača

Krediti OTP banke
Saznaj više
Prikazana rata odnosi se na maksimalni period otplate. Kalkulator je informativnog karaktera.
* Nakon isteka 5 godina, prelazi se na varijabilnu kamatnu stopu

