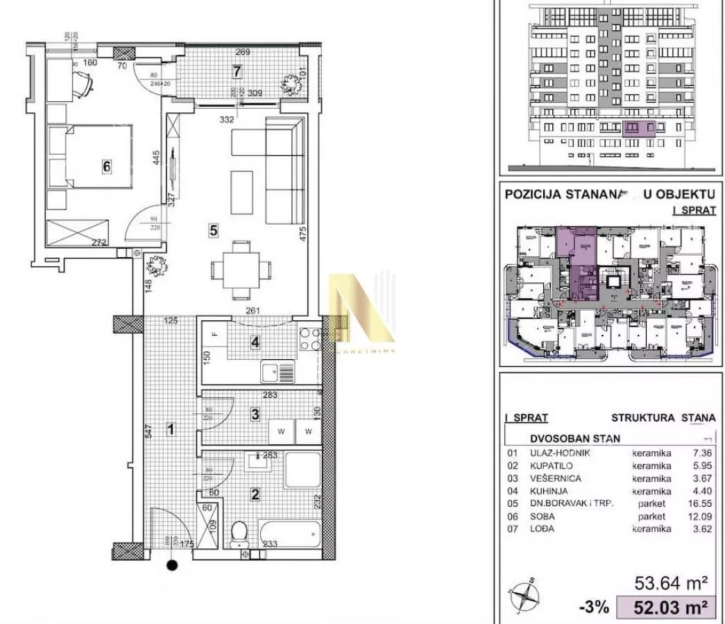
Dvosoban stan na prodaju, Telep, 148.800€, 53m²














148.800 €
2.808 € / m2
- Stan u zgradi
- Grejanje na gas
- U izgradnji
- Prostorije: terasa
- Opremljenost: Prazno - internet, interfon
- Oglas oglašava agencija pod reg. brojem 1405
- 1 garažno mesto
- 1 lift
- Zgrada poseduje: video nadzor
- Kablovska
- 1 telefonska linija
Opis oglasa
U severnom delu Telepa nastaje savremeni stambeni objekat koji spaja mir porodičnog okruženja sa svim prednostima razvijene gradske infrastrukture. Ova atraktivna gradska adresa objedinjuje mir i privatnost porodičnog okruženja sa neposrednom blizinom svih važnih urbanih sadržaja. Direktan izlaz na Bulevar patrijarha Pavla i Futošku ulicu omogućava brz pristup prodavnicama, restoranima i uslugama, kao i jednostavnu povezanost sa ostatkom grada.
U krugu od svega nekoliko stotina metara nalaze se obrazovne, zdravstvene i administrativne ustanove, što ovu lokaciju čini izuzetno pogodnom za porodičan život.
U ponudi su stanovi različitih struktura i kvadratura, od 41 m² do 212 m², pažljivo projektovani kako bi odgovorili potrebama savremenih porodica – bilo da tražite funkcionalan manji stan ili komforan porodični dom.
Projekat se gradi u skladu sa savremenim evropskim standardima, uz pažljivo odabrane, visokokvalitetne materijale koji garantuju sigurnost, stabilnost i dug vek trajanja objekta. Poseban akcenat stavljen je na kvalitet izvođenja i dugoročnu vrednost investicije.
Arhitektonsko rešenje objedinjuje modernu estetiku i funkcionalno organizovan prostor, sa stanovima osmišljenim tako da pruže maksimalnu udobnost u svakodnevnom životu. Kvalitetna termo i zvučna izolacija, pažljivo birani podovi i savremeni prozorski sistemi doprinose visokom nivou komfora i energetske efikasnosti.
Fasada: Kombinacija termoizolacionog (demit) sistema, dekorativnih listela i segmenata ventilisane fasade.
Zidovi: termo blokovi sa naprednom izolacijom, zidovi između stanova sa visokom izolacijom od buke.
Podovi: tarkett hrastov troslojni parket. Grejanje na gas sa kalorimetrima.
Za kupce prve nekretnine moguć povrat PDV-a.
Rok završetka decembar 2027. godina.
Za sve dodatne informacije i zakazivanje razgledanja nekretnine obratiti se na broj telefona
066... (prikaži broj telefona)
Katarina Birinji, broj licence 4091, Novi Sad, Bulevar Evrope 44, N-NEKRETNINE, upisan u registar posrednika 1405.
*Sačuvaj oglas uz belešku i primaj obaveštenja o njihovom pojeftinjenju ili pojavljivanju sličnih
Prikaz stana na mapi
Parkovi u blizini
- Park Bistrica27 min
- Futoški park31 min
- Limanski park35 min

Obeležja kulture u blizini
- Jodna Banja12 min
- Dvorac Eđšeg13 min
- Kuća iz 1797. godine18 min

Škole/Fakulteti/Vrtići u blizini
- Osnovna škola (Osnovna škola Jožef Atila)9 min
- Srednja škola (Gimnazija Laza Kostić)5 min
- Vrtić (Dečiji vrtić Zemlja čuda)6 min
- Fakultet (Protestantski teološki fakultet)7 min

- Bolnica (Ginekološka bolnica Ferona)2 min
- Klinika (Poliklinika Consilium)12 min
- Teretana (EMS Studio Maxifit)5 min
- Prodavnica (Lole dućan)5 min
- Restoran (Caffe restoran Rosetto)7 min
- Kafana (Atos pub)5 min
- Taksi stajalište (Taxi prevoz Novi Sad)18 min
- Autobuska stanica (Feješ Klare - Pravoslavna crkva)3 min
- Banka (Erste Bank Ekspres ekspozitura)6 min
- Pošta (Pošta Novi Sad 21124)7 min
Kontakt oglašivača
Krediti OTP banke
Saznaj više
Prikazana rata odnosi se na maksimalni period otplate. Kalkulator je informativnog karaktera.
* Nakon isteka 5 godina, prelazi se na varijabilnu kamatnu stopu






















