Dvosoban stan na prodaju, Telep, 146.340€, 46m²








146.340 €
3.181 € / m2
- Grejanje na gas
- Novo
- Prostorije: kupatilo, terasa
- Opremljenost: Prazno - interfon
- Oglas oglašava agencija pod reg. brojem 1960
- 1 lift
Opis oglasa
Ramonda Residence – savršen jednoiposoban stan u zgradi nove generacije
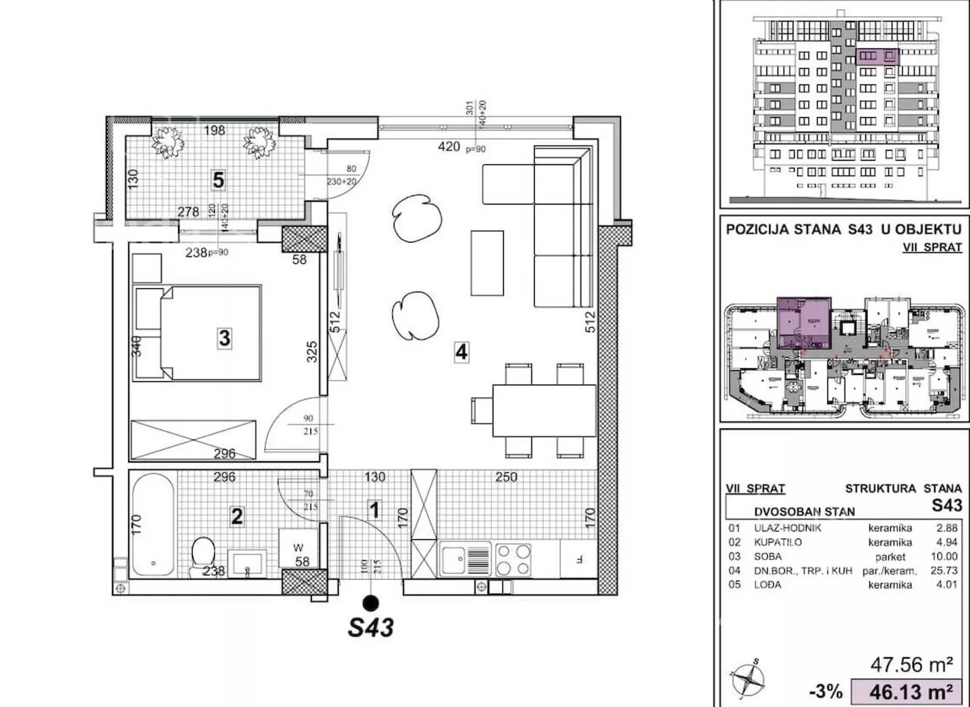
U ponudi je jednoiposoban stan projektovane površine 46.13 m², smešten na 7. spratu ekskluzivnog stambeno‑poslovnog objekta Ramonda Residence na Somborskom bulevaru. Projekat predstavlja novu generaciju urbanog stanovanja, sa arhitekturom inspirisanom prirodnim, skulpturalnim formama i naglaskom na kvalitet, dugotrajnost i funkcionalnost.
O stanu
Stan broj 43 odlikuje se odličnim rasporedom bez izgubljenih kvadrata, jasno odvojenim dnevnim i noćnim delom i obiljem prirodne svetlosti. Idealan je za život, ali i kao investicija u perspektivnom delu grada.
Karakteristike stana:
- Površina 46.13 m2
- sprat u zgradi sa 8 spratova
- Funkcionalan raspored
- Kvalitetna stolarija i završna obrada
- Grejanje na gas sa kalorimetrima (kontrola potrošnje i niži troškovi)
Lokacija – Severni Telep
Ramonda Residence se nalazi u severnom delu Telepa, jednoj od najbrže rastućih i najtraženijih lokacija u Novom Sadu. Okruženje pruža mir porodičnog naselja, dok blizina Bulevara patrijarha Pavla i Futoške ulice omogućava brzu povezanost sa svim važnim gradskim sadržajima.
U neposrednoj blizini nalaze se obrazovne i zdravstvene ustanove, prodavnice, restorani i uslužne delatnosti, što lokaciju čini pogodnom za porodičan život i atraktivnom za ulaganje.
Opremljenost objekta
Objekat će biti izveden u skladu sa savremenim evropskim standardima gradnje:
- Energetski pasoš
- Kvalitetna stolarija
- Prvoklasna keramika i sanitarije
- Sigurnosna vrata
- Lift
- Garažna mesta u suterenu (20.000€ + PDV)
Rokovi i dodatne pogodnosti
- Planirani završetak radova: decembar 2027.
- POPUST OD 100€/m2 ZA KEŠ KUPCE
Kontakt
Za sve informacije o projektu i dostupnim stanovima:
060/5488‑604 (Viber, WhatsApp, Telegram)
[email protected]
*Sačuvaj oglas uz belešku i primaj obaveštenja o njihovom pojeftinjenju ili pojavljivanju sličnih
Prikaz stana na mapi
Parkovi u blizini
- Park Bistrica27 min
- Futoški park31 min
- Limanski park35 min

Obeležja kulture u blizini
- Jodna Banja12 min
- Dvorac Eđšeg13 min
- Kuća iz 1797. godine18 min

Škole/Fakulteti/Vrtići u blizini
- Osnovna škola (Osnovna škola Jožef Atila)9 min
- Srednja škola (Gimnazija Laza Kostić)5 min
- Vrtić (Dečiji vrtić Zemlja čuda)6 min
- Fakultet (Protestantski teološki fakultet)7 min

- Bolnica (Ginekološka bolnica Ferona)2 min
- Klinika (Poliklinika Consilium)12 min
- Teretana (EMS Studio Maxifit)5 min
- Prodavnica (Lole dućan)5 min
- Restoran (Caffe restoran Rosetto)7 min
- Kafana (Atos pub)5 min
- Taksi stajalište (Taxi prevoz Novi Sad)18 min
- Autobuska stanica (Feješ Klare - Pravoslavna crkva)3 min
- Banka (Erste Bank Ekspres ekspozitura)6 min
- Pošta (Pošta Novi Sad 21124)7 min
Kontakt oglašivača
Krediti OTP banke
Saznaj više
Prikazana rata odnosi se na maksimalni period otplate. Kalkulator je informativnog karaktera.
* Nakon isteka 5 godina, prelazi se na varijabilnu kamatnu stopu


