Dvosoban stan na prodaju, Jerneja Kopitara, 96.017€, 36m²


















96.017 €
2.667 € / m2
- Stan u zgradi
- Grejanje na gas
- U izgradnji
- Prostorije: kupatilo, terasa
- Nije uknjiženo
- Oglas oglašava agencija pod reg. brojem 2082
- 1 garažno mesto, garaža u sklopu zgrade
- Godina izgradnje: 2027.
- Zgrada poseduje: dvorište, video nadzor
Opis oglasa
Prostor kreiran za porodičnu harmoniju.
Smešten na atraktivnom Telepu, Duet Residence donosi savremenu arhitekturu i pažljivo projektovane porodične stanove. Uz dodatne sadržaje, među kojima se ističe hobi kutak u suterenu, stanarima je obezbeđen prostor za aktivnosti, opuštanje i druženje. Duet Residence je stvoren za one koji žele udobnost, funkcionalnost i prijatan porodični ambijent.
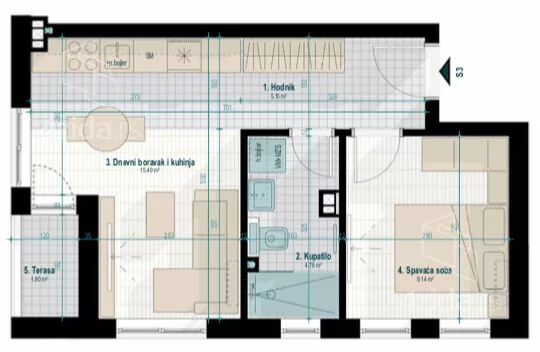
Struktura stana
- Hodnik: 5.15 m²
- Kupatilo: 4.78 m²
- Dnevni boravak i kuhinja: 15.49 m²
- Spavaća soba: 9.14 m²
- Terasa: 1.80 m²
Kvalitet gradnje i završne obrade
- Grejanje: Grejanje je na gas, kalorimetri u hodnicima etaže, plaćanje po utrošku. Radijatori jednocevni.
- Podovi: Podovi u kupatilima i na terasama obloženi su uvoznom keramikom prve klase iz EU, dok su u sobama i hodnicima postavljeni visokokvalitetni višeslojni hrastov parket (laminirani troslojni parket).
- Prozori i vrata: Fasadna stolarija - šestokomorna PVC stolarija sa dvoslojnim niskoemisionim staklima. Inostrani profili sa vakum staklima. Ral sistem ugradnje. Prozori su isprojektovani tako da se dobije što više svetlosti.
- Keramika: Keramičke pločice renomiranih brendova evropske proizvodjnje, specijalizovane za rezidencijalne prostorije. Na terasama je ugrađena protivklizna keramika odgovarajuća za spoljnu upotrebu.
- Sanitarije (kupatilo): Ugrađene su uvozne sanitarije proizvedene u Evropskoj uniji, kombinacija paravana i tuš kabina sa kanalicom.
- Dodatna oprema: Pripreme za klima uređaje biće instalirane u svakom stanu. Obe lamele biće potpuno pokrivene video nadzorom. Uz svaki stan se dobija ostava u suterenu (2/3 m2).
- Dodatne informacije o projektu: U suterenu će se nalaziti biciklana i hobi kutak namenjem svim stanarima (prostorija za druženje, sport i razonodu). Prilaz objekatima otvoren na sve tri strane sa dodatnim sadržajima i zelenim površinama.
Prednosti lokacije
- Predškolska ustanova "Radosno detinjstvo" - 300 m
- Gimnazija "Laza Kostić" - 650 m
- Farmaceutski fakultet - 400 m
- Studentski dom "Evropa" - 400 m
- Wellness&SPA - 350 m
- Lidl megamarket - 700 m
- Ribarsko ostrvo - 1,5 km
*Sačuvaj oglas uz belešku i primaj obaveštenja o njihovom pojeftinjenju ili pojavljivanju sličnih
Prikaz stana na mapi
Parkovi u blizini
- Limanski park26 min
- Futoški park29 min
- Park Bistrica39 min

Obeležja kulture u blizini
- Dvorac Eđšeg11 min
- Jodna Banja12 min
- Kuća Jovana Jovanovića Zmaja15 min

Škole/Fakulteti/Vrtići u blizini
- Osnovna škola (Osnovna škola Jožef Atila)5 min
- Srednja škola (Gimnazija Laza Kostić)7 min
- Vrtić (Dečiji vrtić Lane)6 min
- Fakultet (Protestantski teološki fakultet)6 min

- Bolnica (Opšta bolnica sa porodilištem Gea)11 min
- Klinika (Poliklinika HealthMedic)6 min
- Teretana (Teretana Čeličana 021)9 min
- Prodavnica (Dućan Rakić)3 min
- Restoran (Restoran Vonamor)8 min
- Kafana (Bratis Pub)11 min
- Taksi stajalište (Gradski Taxi)15 min
- Autobuska stanica (Heroja Pinkija - Laze Lazarevića)5 min
- Banka (Banca Intesa)6 min
- Pošta (Pošta Novi Sad 21124)14 min
Kontakt oglašivača
Krediti OTP banke
Saznaj više
Prikazana rata odnosi se na maksimalni period otplate. Kalkulator je informativnog karaktera.
* Nakon isteka 5 godina, prelazi se na varijabilnu kamatnu stopu


