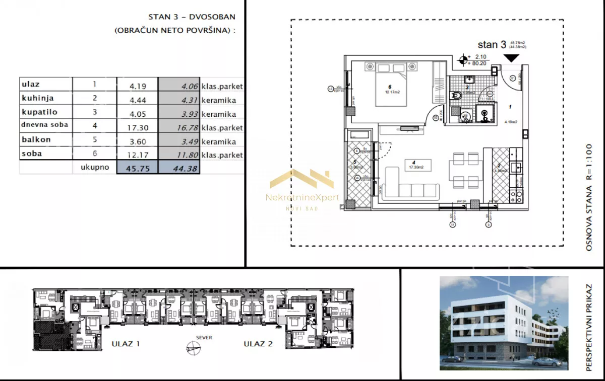
Dvosoban stan na prodaju, Telep, 125.417€, 44m²




125.417 €
2.850 € / m2
- Stan u zgradi
- Grejanje na gas
- U izgradnji
- Prostorije: terasa
- Opremljenost: Prazno - internet, interfon
- Oglas oglašava agencija pod reg. brojem 1734
- 1 lift
- Godina izgradnje: 2025.
- Kablovska
- 1 telefonska linija
Opis oglasa
Agencijska oznaka 2606
Predstavljamo vam moderan stan u novogradnji na Telepu, smešten u mirnom delu grada, nadomak Dunava.
Stan se nalazi na visokom prizemlju, sa visinom plafona od čak 3 metra, što prostoru daje dodatnu prostranost, svetlinu i osećaj komfora.
Lokacija je idealna za kvalitetan život u prijatnom okruženju, uz odličnu povezanost sa svim delovima grada.
U neposrednoj blizini nalaze se marketi, vrtići, škole i autobuska stanica, što ovu nekretninu čini izuzetno praktičnom za svakodnevni život, ali i odličnom za izdavanje.
Kvalitet gradnje:
Objekat se odlikuje:
✔️ kvalitetnom i savremenom gradnjom
✔️ pažljivo odabranim materijalima
✔️ odličnim rasporedom prostorija
✔️ maksimalnom iskorišćenošću prostora
Završetak radova i useljenje planirani su za 2 meseca, što ovu ponudu čini idealnom kako za kupce koji traže brz ulazak u stan, tako i za investitore.
Odlična prilika za sve koji traže kvalitet, funkcionalnost i sigurnu investiciju.
Za sve dodatne informacije i zakazivanje gledanja – slobodno nas kontaktirajte!
Reg.pos. 1734
*Sačuvaj oglas uz belešku i primaj obaveštenja o njihovom pojeftinjenju ili pojavljivanju sličnih
Prikaz stana na mapi
Parkovi u blizini
- Park Bistrica28 min
- Futoški park33 min
- Limanski park36 min

Obeležja kulture u blizini
- Dvorac Eđšeg12 min
- Jodna Banja12 min
- Galerija Matice srpske16 min

Škole/Fakulteti/Vrtići u blizini
- Osnovna škola (Osnovna škola Jožef Atila)5 min
- Srednja škola (Gimnazija Laza Kostić)5 min
- Vrtić (Dečiji vrtić Zemlja čuda)6 min
- Fakultet (Protestantski teološki fakultet)7 min

- Bolnica (Ginekološka bolnica Ferona)2 min
- Klinika (Poliklinika Consilium)12 min
- Teretana (Fitness club Ozzy Gym)5 min
- Prodavnica (Supermarket Univerexport)6 min
- Restoran (Caffe restoran Rosetto)7 min
- Kafana (Atos pub)5 min
- Taksi stajalište (Taxi prevoz Novi Sad)20 min
- Autobuska stanica (Feješ Klare - Pravoslavna crkva)3 min
- Banka (Erste Bank Ekspres ekspozitura)5 min
- Pošta (Pošta Novi Sad 21124)7 min
Kontakt oglašivača
Krediti OTP banke
Saznaj više
Prikazana rata odnosi se na maksimalni period otplate. Kalkulator je informativnog karaktera.
* Nakon isteka 5 godina, prelazi se na varijabilnu kamatnu stopu






















