Četvorosoban stan na prodaju, Telep, 265.300€, 101m²


























265.300 €
2.627 € / m2
- Stan u zgradi
- U izgradnji
- Prostorije: terasa
- Uknjiženo
- Oglas oglašava agencija pod reg. brojem 1497
Opis oglasa
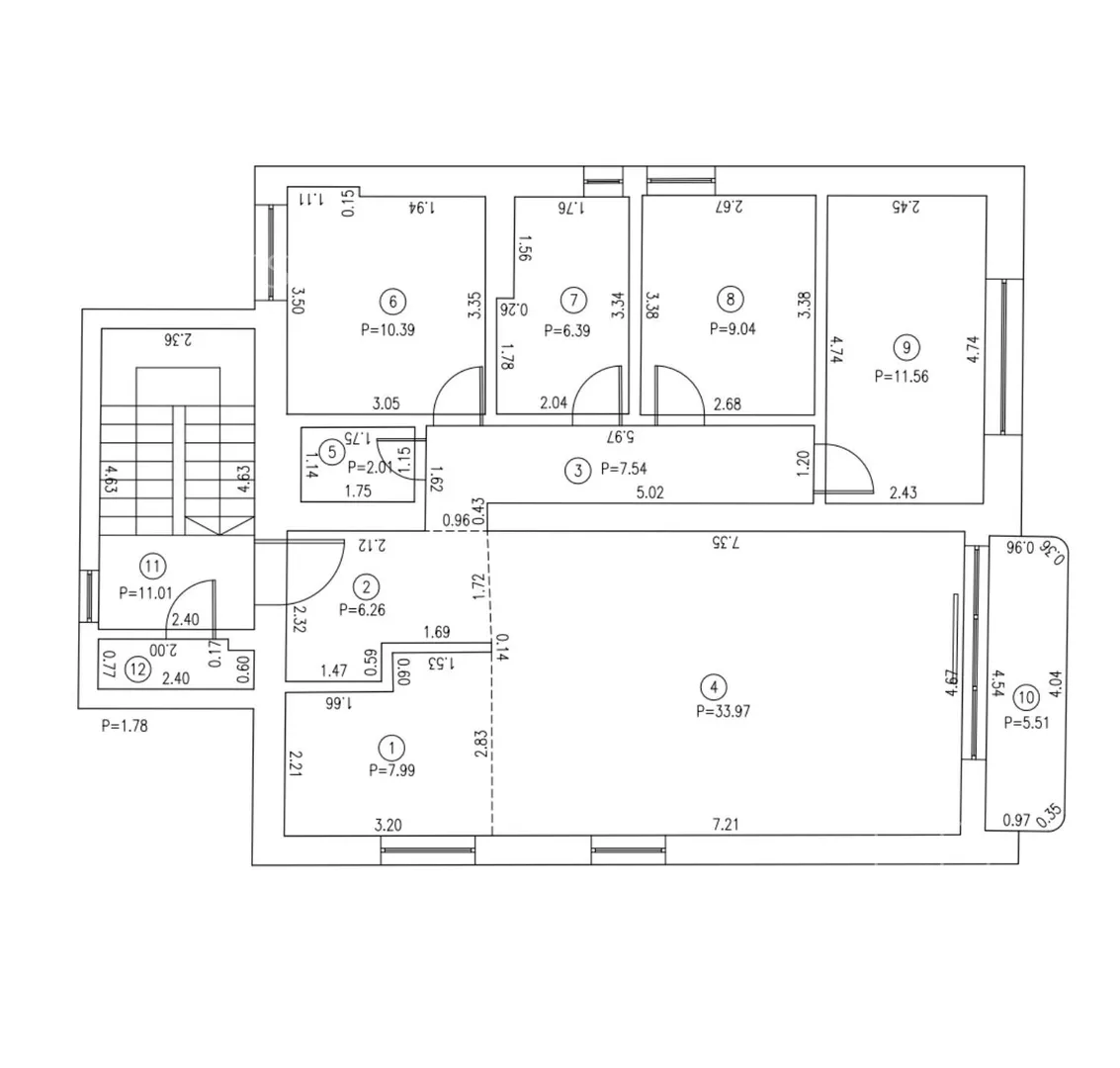
Novi Sad - Telep, prodaje se nov odmah useljiv četvorosoban stan od 101m2, dva parking mesta...
Iz ulaznog hodnika sa prostorom za plakar se ulazi pravo u veliki dnevni boravak sa kuhinjom, trpezarijom i terasom, na koju se pristupa preko velikog staklenog portala. Ova dnevna zona stana ima nešto više od 50 m².
Stan ima odvojenu noćnu zonu sa hodnikom iz kog se ulazi u 3 spavaće sobe, toalet i veliko kupatilo sa prirodnom ventilacijom, luksuznom španskom keramikom, svim novim sanitarijama i walk in tušem.
Grejanje je na gas, stolarija je PVC sa troslojnim staklom punjenim argonom, termoizolacija je od stiropora debljine 10 cm, pod je od hrastovog parketa velikih dimenzija a ulazna vrata su visokokvalitetna i sigurnosna.
U ceni stana su dva parking mesta i ostava u hodniku odmah pored stana.
Objekat ima videonadzor, kao i video interfone, kapija za parking se otvara na daljinski, a objekat sa svih strana ima noćno dekorativno osveljenje.
Za više informacija pozovite 060... (prikaži broj telefona) Peđa
*Sačuvaj oglas uz belešku i primaj obaveštenja o njihovom pojeftinjenju ili pojavljivanju sličnih
Prikaz stana na mapi
Parkovi u blizini
- Park Bistrica28 min
- Futoški park33 min
- Limanski park36 min

Obeležja kulture u blizini
- Jodna Banja12 min
- Dvorac Eđšeg13 min
- Kuća iz 1797. godine18 min

Škole/Fakulteti/Vrtići u blizini
- Osnovna škola (Osnovna škola Jožef Atila)11 min
- Srednja škola (Gimnazija Laza Kostić)5 min
- Vrtić (Dečiji vrtić Zemlja čuda)6 min
- Fakultet (Protestantski teološki fakultet)7 min

- Bolnica (Ginekološka bolnica Ferona)2 min
- Klinika (Poliklinika Consilium)12 min
- Teretana (EMS Studio Maxifit)5 min
- Prodavnica (Supermarket Univerexport)6 min
- Restoran (Caffe restoran Rosetto)7 min
- Kafana (Atos pub)5 min
- Taksi stajalište (Taxi prevoz Novi Sad)20 min
- Autobuska stanica (Feješ Klare - Pravoslavna crkva)3 min
- Banka (Erste Bank Ekspres ekspozitura)6 min
- Pošta (Pošta Novi Sad 21124)7 min
Kontakt oglašivača
Krediti OTP banke
Saznaj više
Prikazana rata odnosi se na maksimalni period otplate. Kalkulator je informativnog karaktera.
* Nakon isteka 5 godina, prelazi se na varijabilnu kamatnu stopu


