Četvorosoban stan na prodaju, Telep, 265.250€, 96m²
















































265.250 €
2.763 € / m2
- Stan u zgradi
- U izgradnji
- Prostorije: terasa
- Uknjiženo
- Oglas oglašava agencija pod reg. brojem 174
- Godina izgradnje: 2025.
Opis oglasa
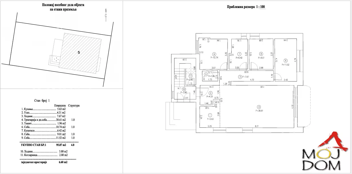
Na Telepu, u jednom od najpoželjnijih delova Novog Sada, prodaje se potpuno nov, moderan četvorosoban stan koji odiše komforom i kvalitetom stan se knjiži na 96m2 dok sa terasom poseduje 101m2. Prostran dnevni boravak zamišljen je kao srce doma – povezuje veliku kuhinju, trpezarijski deo i prijatan prostor za odmor, dok ga veliki portali sa troslojnim staklima obasjavaju prirodnim svetlom tokom celog dana.
Stan ima dva funkcionalno raspoređena kupatila, prostranu terasu idealnu za porodična druženja, kao i dodatnu ostavu koja pruža praktičnost svakodnevnom životu. Sve sobe su osmišljene tako da budu svetle i komforne, sa velikim portalnim prozorima, a raspored sa izdvojenim hodnikom omogućava potpunu privatnost svake prostorije.
U gradnji su korišćeni vrhunski materijali – hrastov parket plemenite topline i keramika modernog dizajna visokog kvaliteta, što stanu daje poseban pečat elegancije i dugotrajnosti. Uz stan dolaze i dva pripadajuća parking mesta, što ovu nekretninu čini još vrednijom.
Ovo je dom koji pruža savršen balans udobnosti, stila i praktičnosti – idealan za porodičan život u blizini škola, marketa i svih sadržaja neophodnih za svakodnevicu.
Za više informacija pozovite:
063... (prikaži broj telefona)
,
063... (prikaži broj telefona)
Šifra oglasa:1031167
Moj Dom nekretnine, Novi Sad, Reg. br. 174Ž
For sale – A brand new, modern four-room apartment in Telep, one of the most desirable neighborhoods in Novi Sad. The apartment is registered at 96 m², while with the terrace it offers a total of 101 m². The spacious living room is designed as the heart of the home – seamlessly connecting the large kitchen, dining area, and a cozy lounge space, while the floor-to-ceiling portals with triple-glass windows fill the interior with natural light throughout the day.
The apartment features two functionally arranged bathrooms, a large terrace perfect for family gatherings, as well as an additional storage room that adds everyday practicality. All rooms are designed to be bright and comfortable, with wide portal windows, while the layout with a separate hallway ensures complete privacy for each room.
High-quality materials were used in construction – oak parquet with a warm finish and modern, premium ceramics – giving the apartment a unique touch of elegance and durability. Two dedicated parking spaces are included in the price, adding even more value to this property.
This is a home that offers the perfect balance of comfort, style, and functionality – ideal for family living, close to schools, supermarkets, and all amenities needed for everyday life.
For more information, call:
063... (prikaži broj telefona)
,
063... (prikaži broj telefona)
Ad ID: 1031167
Moj Dom Real Estate, Novi Sad, Reg. no. 174
Продаётся – совершенно новая, современная четырёхкомнатная квартира в Телепе, одном из самых престижных районов Нового Сада. Квартира зарегистрирована на 96 м², а вместе с террасой общая площадь составляет 101 м². Просторная гостиная задумана как сердце дома – она объединяет большую кухню, обеденную зону и уютное место для отдыха, а панорамные порталы с тройными стеклопакетами наполняют пространство естественным светом в течение всего дня.
Квартира имеет два функционально расположенных санузла, большую террасу, идеально подходящую для семейных встреч, а также кладовую, которая обеспечивает дополнительное удобство в повседневной жизни. Все комнаты светлые и просторные, с большими оконными порталами, а планировка с выделенным коридором гарантирует полную приватность каждой комнаты.
В строительстве использованы материалы высокого качества – дубовый паркет с благородным теплом и современная керамика премиум-класса, что придаёт квартире особую элегантность и долговечность. В стоимость входят два парковочных места, что делает эту недвижимость ещё более привлекательной.
Это жильё представляет собой идеальный баланс комфорта, стиля и практичности – отлично подходит для семейной жизни рядом со школами, магазинами и всеми необходимыми удобствами.
Для получения дополнительной информации звоните:
063... (prikaži broj telefona)
,
063... (prikaži broj telefona)
Код объявления: 1031167
Moj Dom недвижимость, Новый Сад, Рег. № 174
(Moj Dom nekretnine,Novi Sad,Reg.br.174)
*Sačuvaj oglas uz belešku i primaj obaveštenja o njihovom pojeftinjenju ili pojavljivanju sličnih
Prikaz stana na mapi
Parkovi u blizini
- Park Bistrica28 min
- Futoški park33 min
- Limanski park36 min

Obeležja kulture u blizini
- Jodna Banja12 min
- Dvorac Eđšeg13 min
- Kuća iz 1797. godine18 min

Škole/Fakulteti/Vrtići u blizini
- Osnovna škola (Osnovna škola Jožef Atila)11 min
- Srednja škola (Gimnazija Laza Kostić)5 min
- Vrtić (Dečiji vrtić Zemlja čuda)6 min
- Fakultet (Protestantski teološki fakultet)7 min

- Bolnica (Ginekološka bolnica Ferona)2 min
- Klinika (Poliklinika Consilium)12 min
- Teretana (EMS Studio Maxifit)5 min
- Prodavnica (Supermarket Univerexport)6 min
- Restoran (Caffe restoran Rosetto)7 min
- Kafana (Atos pub)5 min
- Taksi stajalište (Taxi prevoz Novi Sad)20 min
- Autobuska stanica (Feješ Klare - Pravoslavna crkva)3 min
- Banka (Erste Bank Ekspres ekspozitura)6 min
- Pošta (Pošta Novi Sad 21124)7 min
Kontakt oglašivača

Krediti OTP banke
Saznaj više
Prikazana rata odnosi se na maksimalni period otplate. Kalkulator je informativnog karaktera.
* Nakon isteka 5 godina, prelazi se na varijabilnu kamatnu stopu

